
江北核心区,目前南京当之无愧的流量板块TOP,一举一动都牵扯着买房人的心。
而就在刚刚,江北核心区又传来3个重磅消息:
1、区域纯新盘卓越G12项目定案名为卓越大江悦府。项目将打造5栋26-33层高层住宅,面积105-135㎡,十一国庆期间将公开城市展厅,年内开盘,不带地下跃层,价格参考周边新房。
2、区域纯新盘通宇G10地块案名与规划同步曝光,项目定为“通宇林景润园”,将打造9栋17F的高层住宅,具体公开时间待定。
3、江北新区昨日晚间又挂出两幅地块,其中一幅G17地块仍位于江北核心区,毛坯房销售限价31500元/㎡;另外一幅G18地块是非核心区地块,靠近通宇林景熙园,毛坯限价3万/㎡,两幅地块将于10月28日10点开始网上竞拍。
昨天下午,江北核心区板块的纯新盘——卓越新区G12地块项目案名正式对外发布,定为卓越·大江悦府。

2020年6月23日,卓越经过38轮竞价,以总价15.7亿元竞得该地块,楼面价23288元/㎡。
项目动作非常快,拿地仅一个月就火速出了规划。根据规划显示,项目将打造5栋25-33F高层住宅、1栋商业以及相关配套,其中,3#、4#、5#楼为33F,1#楼为28F、2#楼为25F。
项目效果图↓↓↓


最值得一提的是,该项目是不带跃层的!
大江悦府已经是卓越在南京布局的第10个项目,同时也是卓越在江北的第6个项目。

卓越大江悦府就在雅居乐滨江国际和正荣润锦城旁边,地理位置十分优越,项目紧邻七里河风光带,未来拥有七里河和长江双水系景观,妥妥的一线江景住宅。
项目户型面积105-135㎡,将在十一国庆期间公开城市展厅,争取年内开盘,价格将参考周边的项目,相信上市后又是一大“疯抢盘”。
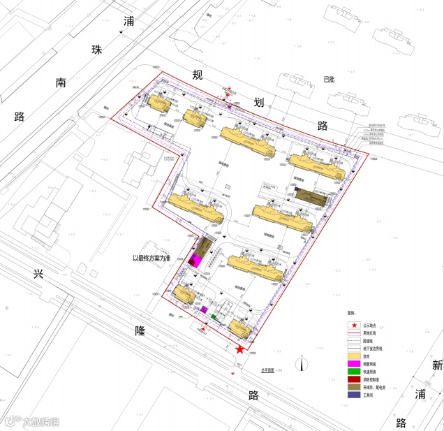
刚刚,我在浏览江北新区官网发现,江北核心区纯新盘通宇林景润园规划方案出炉。

根据方案显示,项目将拟建9栋17F的高层住宅以及相关配套用房。
项目效果图▼



通宇林景润园的前身为江北核心区G10地块,于2019年9月12日开拍,起拍价10.2亿,万科、绿城、融侨、朗诗、国资投资、卓越、海信、深业等开发商参与竞拍。经过37轮竞拍,被通宇以总价13.8亿拿下,楼面地价为22273元/㎡。
“林景润园”的案名也是本次随着规划方案首次曝光。
项目位于浦口区顶山街道,北至四方路,南至兴隆路,西至江北快速路,东临规划绿地及居住中心,规划用地性质为二类居住用地。

项目区位图
项目拟建总建筑面积约90000平方米,其中地上建筑面积约62000平方米,地下建筑面积约28000平方米。

总平面示意图
整体来看的话,通宇的节奏相较于南京近年来的开发商相比较,节奏还是比较慢的,项目拿地至今已经一年多,刚刚公布案名与规划,至于上市时间目前还没有确切的消息。
关于通宇林景润园的具体消息,住在南京网(微信号:zznjw025)将持续关注,最新消息将在第一时间报道。
继9月25日、9月29日相继出让了4幅核心区纯宅地后,昨日晚间江北新区又再挂出了2幅纯宅地。

其中一幅G17地块仍位于江北核心区,且G17地块的毛坯房销售限价提升至了31500元/㎡,比此前4幅地块的30750元/㎡毛坯限价高出了750元/㎡,且与当下板块的精装均价基本持平。
另外一幅G18地块,也是江北新区执行土拍新政后首次挂出的非核心区地块,该地块靠近通宇林景熙园,毛坯限价3万/㎡。
两幅地块将于10月28日10点开始网上竞拍,如触顶最高限价,于10月29日15点现场摇号决定竞得企业。
两幅地块具体详情▼
NO.新区2020G17地块
江北新区新浦路以东、四方路以南14-12地块
出让面积:23192.74㎡
用地性质:R2二类居住用地
出让年限:70年
容积率:1.01≤R≤2.2
建筑高度:50≤H≤80
挂牌起始价:10.3亿
最高限价:11.8亿
楼面起始价:20187元/㎡
最高楼面价:23126元/㎡
毛坯最高限价:31500元/㎡
NO.新区2020G18地块
江北新区浦乌路以西、规划道路以北15-25-01地块
出让面积:27021.5㎡
用地性质:R2二类居住用地
出让年限:70年
容积率:1.01≤R≤2.0
建筑高度:30≤H≤60
挂牌起始价:10.3亿
最高限价:12.2亿
楼面起始价:19059元/㎡
最高楼面价:22575元/㎡
毛坯最高限价:30000元/㎡
【河西】云际花园 | 河西金茂府 | 葛洲坝中国府 | 华新城 | 海玥花园 | 颐和铂湾丨苏宁檀悦丨高力G02丨璞境
【城中】中冶锦绣珑湾 | 绿地海珀紫金 | 银城G38地块 | 绿地紫金中心
【城北】仁恒公园世纪 |燕子矶新城 | 大地伊丽雅特湾 | 尧化门 | 玄武映 | 鼓楼滨江 | 金浦御龙湾 | 江悦润府丨
【城东】复地御钟山 | 龙湖紫金原著 | 麒麟 | 大鱼 | 融信世纪东方 | 紫东核心区 | 深业青珑上府丨
【城南】华著·兰庭 | 仁恒城市星光 | 万科星耀都荟 | 宋都柏悦府 | 宝能翡丽河滨丨明阅府丨金基望樾府丨彰泰G29丨
【江北】江北核心区 | 栖樾府 | 誉江府 | 扬子江金茂悦 | 中北G03地块 | 中交G12地块丨花语熙岸府丨雅居乐·汇港城丨
【江宁】美的建发润锦园 | 龙湖水晶郦城丨融信秦尚栖庭丨朗诗玲珑郡丨联发翡翠方山丨金隅紫京云筑丨








