
土豪们请注意,南京又一豪宅出动!
江心洲仁恒销许已领,目前正在报名!
昨天下午江心洲豪宅仁恒江湾世纪领取了洋房和叠墅(01-19幢、23-26幢、36-50幢)共242套房源销许,销许价格:40863-55425元/㎡。其中人才房73套,无房73套。


部分楼栋情况
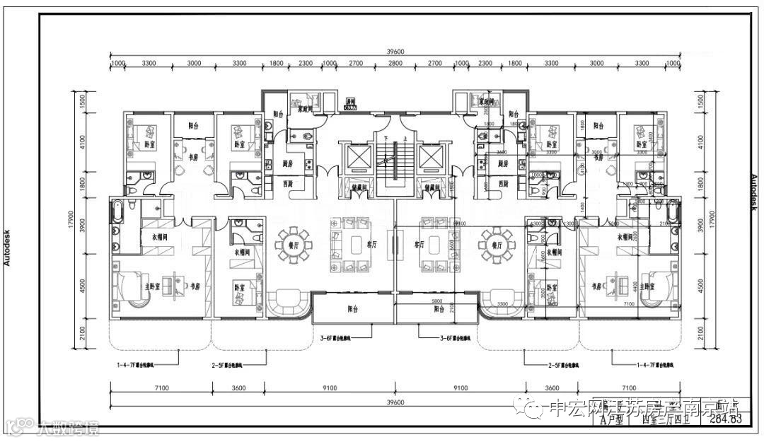
本次加推洋房有114套,建面约200-210㎡,叠墅有128套,建面约300-400㎡。
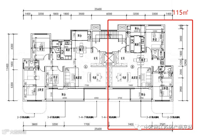
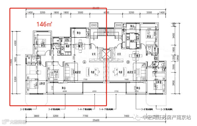
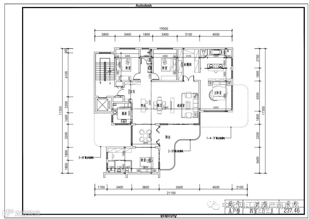
洋房户型:
201㎡三房两厅三卫户型图▼

201㎡四房两厅三卫户型图▼

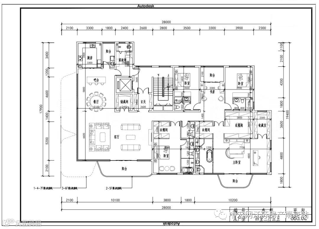
叠墅户型:
这部分户型位于A、E、F地块,以下为下叠户型▼

(下叠地下一层平面图)

(下叠一层平面图)

(下叠二层平面图)
上叠户型▼

(上叠地下一层平面图)

(上叠三层平面图)

(上叠四层平面图)
本次开盘要求需首付5成,验资450万,冻结时间为2020年9月25日-2020年9月29日。
报名时间:2020年9月25日上午9点-2020年9月26日上午9点
报名方式:下载APP“家在仁恒”办理报名登记
心动的土豪们,抓紧行动起来!
在领销许的前两天,仁恒江湾世纪公开了洋房、叠墅的实景样板间,目前样板间仅对一部分意向客户开放,参观需提前预约,同时需要出示购房证明。
住在南京网(微信号:zznjw025)第一时间与置业顾问约了参观,为大家带来第一手谍照!
本次项目一共公开了三个样板间,分别为201㎡的洋房,以及300㎡的上叠、400㎡ 的下叠。
话不多说,咱们一起看图说话☟☟☟
洋房样板间实景图:
南向次卧▼

客厅▼

南向主卧▼

衣帽间▼

主卧卫生间▼

厨房▼

餐厅▼

储藏间▼

北向卧室▼

客卫▼

洋房精装标准▼

上叠样板间实景图:
上叠为3、4楼,其中3楼设计为休息区,4楼包括阳台为会客区。
上叠自带电梯,电梯为日立牌▼

休息区▼

办公区▼

露台▼

餐厅▼

下叠样板间实景图:
餐厅▼

开放式厨房▼

卧室▼

卫生间▼

主卧▼

主卧衣帽间▼

主卧卫生间▼

地下室,采光非常绝▼



同时根据现场可以发现 ,仁恒江湾世纪洋房和叠墅建设进度很快,叠墅外立面已经初显,乳白色墙体+玻璃外立面非常显眼。


除了仁恒江湾世纪之外,住在南京网(微信号:zznjw025)也去到了其他项目进行实探,发现都有了新进展:
1、荣盛江天瓴筑3栋住宅已建到4层高,本周日将公开展厅;
2、江湾时代花园售楼处主体施工中,预计三季度公开售楼处上市;
3、璞境已开始施工,预计三季度公开售楼处上市。
荣盛江天瓴筑
荣盛江天瓴筑前身为江心洲G08地块,于去年4月份以15.6亿元总价被荣盛竞得,竞自持面积13000㎡,楼面价31980元/㎡,创下当年江心洲楼面地价新高。
荣盛江天瓴筑将在明天(9.26)在涵碧楼正式公开城市展厅,目前已经开始接受预约。
据悉,项目售楼处公开时间待定,四季度上市,放风价6万/平。此前曝光,项目将打造户型面积约230-360㎡的洋房产品,仅100余套房源,相当稀缺。
据最新消息, 即将开盘的房源中暂不出售246㎡以下的户型,所开房源为项目将打造246-384㎡平墅产品。





值得一提的是,项目最大的亮点是,项目欲打造全南京都没有的玻璃幕墙外立面,同时还有环形错开的阶梯式观景阳台,充分保证业主在景观上的享受。
而从规划图中也可以看出,楼间距非常大,未来居住舒适度将会很高。
项目效果图▼

根据实探发现,目前荣盛江天瓴筑的施工进度很快,目前已经有三栋楼已经建到三层左右,至于售楼处目前从工地大门口还没能看出售楼处。


江湾时代花园
江湾时代花园的前身为国资G78地块,于去年11月被国资以总价13亿拿下,楼面地价28877元/㎡。项目将由国资与仁恒联合开发,由仁恒操盘。
江湾时代花园预计近期首开上市,推出72套房,精装交付,放风4.5万-5万/㎡,主力户型建筑面积为143㎡、183㎡、203㎡。目前售楼处还未正式公开。
今年3月初,南京市规划资源局公示了国资江心洲G78地块的规划设计方案。根据设计方案显示,国资江心洲G78地块将打造8栋低密度洋房,层高8-9层,另有2栋1层配电房。
项目效果图▼

国资江心洲G78地块与仁恒江湾世纪靠的非常近,地块与仁恒江湾世纪的售楼处仅一条路之隔,几乎是被仁恒包围的状态。

图片来源江苏土地
由于目前国资江心洲G78地块已经全部上了围挡,然后该地块的左边正在进行河道整治,右边则是仁恒江湾世纪的叠墅洋房部分,国资G78地块被包围在中间,很容易被忽视。
目前工地内有三栋建筑在同时施工,包含了项目售楼处和住宅楼栋,进度很快。楼间距约37-39米,层高约3米。(具体信息以开发商公布为准)

璞境
璞境为中南在南京首个“豪宅”系作品,同时也是板块内地价最高,所以备受关注,将由中南、淮安水利、恒通三大房企联合开发!
今年4月29日,江心洲G06地块被镇江中南锦城房地产发展有限公司&江苏水利房地产开发有限公司(中南+淮安水利)以总价30.8亿元拿下,成交楼面价35274元/㎡。

时隔一年,江心洲“地王”正式从荣盛易位成中南水利。
7月份,项目火速出了规划,项目拟建6栋住宅楼栋,层高为25层,主力户型建筑面积约143㎡-200㎡!
根据效果图来看,项目采用了目前市面上很流行的“高窗墙比+大采光”的外立面设计,颜色采用的是高级灰,非常的豪宅范儿!
效果图▼


据悉璞境预计将在4季度正式公开,年内有上市计划!目前项目已经在德基公开了展厅。
项目位置较为优越,距离10号线江心洲站不到400米,东侧是仁恒绿洲新岛和江岛华庭,周边还有仁恒置地广场、江岛智立方和江岛新天地等配套。

项目区位图
目前项目已经动工,但具体还未有新进展,仍为一片平地。
【河西】云际花园 | 河西金茂府 | 葛洲坝中国府 | 华新城 | 海玥花园 | 颐和铂湾丨苏宁檀悦丨高力G02丨璞境
【城中】中冶锦绣珑湾 | 绿地海珀紫金 | 银城G38地块 | 绿地紫金中心
【城北】仁恒公园世纪 |燕子矶新城 | 大地伊丽雅特湾 | 尧化门 | 玄武映 | 鼓楼滨江 | 金浦御龙湾 | 江悦润府丨
【城东】复地御钟山 | 龙湖紫金原著 | 麒麟 | 大鱼 | 融信世纪东方 | 紫东核心区 | 深业青珑上府丨
【城南】华著·兰庭 | 仁恒城市星光 | 万科星耀都荟 | 宋都柏悦府 | 宝能翡丽河滨丨明阅府丨金基望樾府丨彰泰G29丨
【江北】江北核心区 | 栖樾府 | 誉江府 | 扬子江金茂悦 | 中北G03地块 | 中交G12地块丨花语熙岸府丨雅居乐·汇港城丨
【江宁】美的建发润锦园 | 龙湖水晶郦城丨融信秦尚栖庭丨朗诗玲珑郡丨联发翡翠方山丨金隅紫京云筑丨








