
01
刚刚,月牙湖板块纯新盘——钟山峰景四大户型图曝光!户型面积分别为118㎡、128㎡、143㎡以及170㎡,咱们来抢先看下:
户型鉴赏:
约118㎡▼

约128㎡▼

约143㎡▼

户型解析:该户型打造了4房2厅2卫,四开间朝南,极大提升了居住舒适度;客厅与朝南次卧双阳台设计,同时北向的房间也设置了飘窗,整个房型为全明设计,保证了采光与通风。
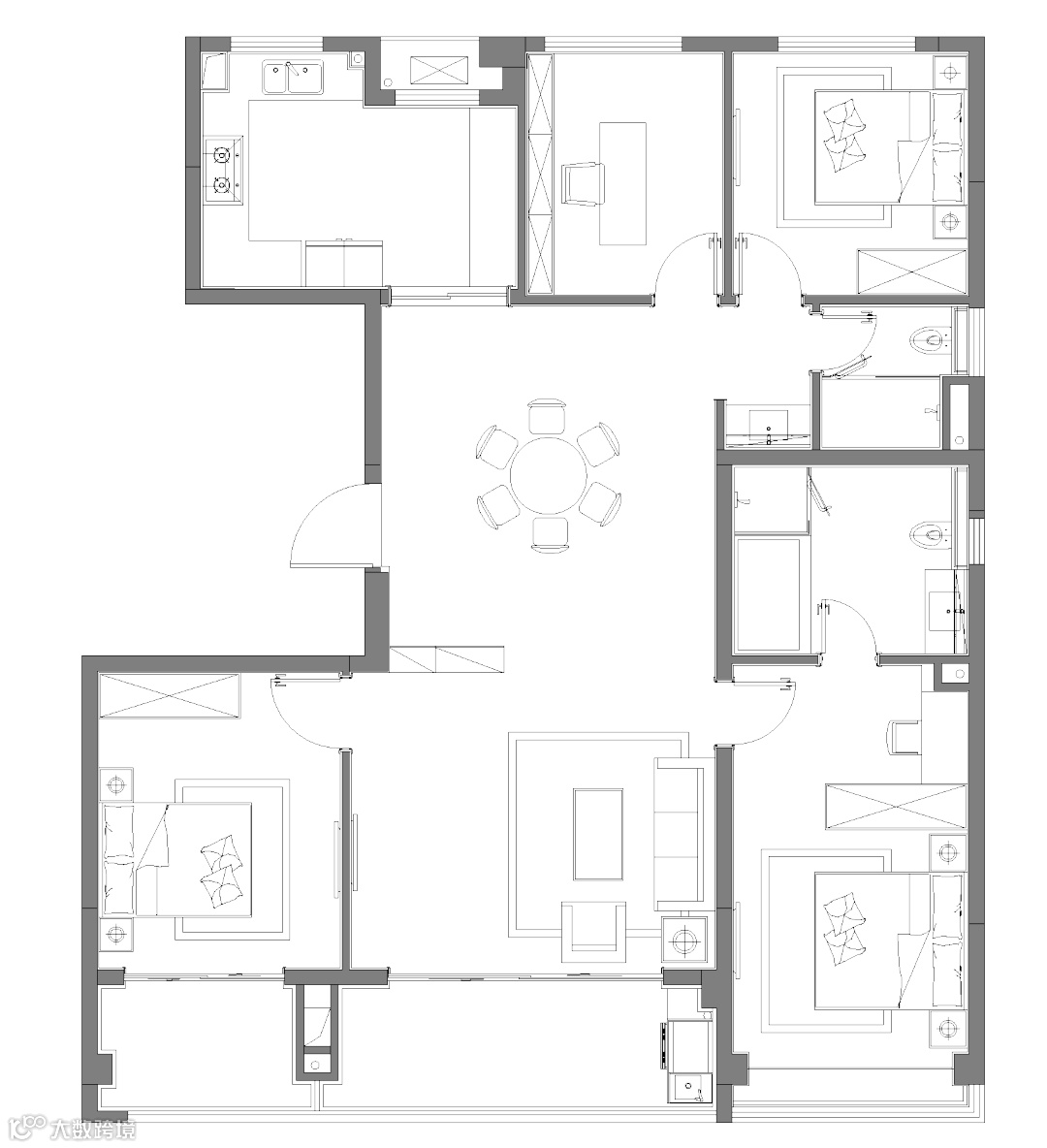
约170㎡▼

户型解析:建筑面积约124㎡户型,整个户型比较方正,四开间朝南,空间尺度上相较140㎡更加的阔绰。朝南的客厅、次卧为双阳台,主卧和南北向次卧则是飘窗的设计,整体舒适度非常高。
从户型上来看,同时北向的餐厅也设置了一个阳台,采光与通风极佳。
其中,项目将拟建20栋住宅,包含一栋人才房,层高为18-20F,总共约1444套。
项目效果图▼

钟山峰景同步规划约3.5万方综合商业,将涵盖超市、餐饮、图书、亲子乐园等多元配套,打造家门口的一站式繁华体验,与光华路北城市综合体,合力焕新城央生活圈。
02
今年4月29日,钟山峰景前身城中G05地块在经过39轮竞价后,被被南京铧得房地产开发有限公司(华发)以总价69.1亿元竞得,成交楼面价29821元/㎡。该地块将由华发和招商联合开发。
华发集团,1980年成立,与珠海经济特区同龄,是珠海最大的综合型国有企业集团。华发股份,2017年首入南京,以先于时代的眼光洞见土地价值,连落八子,抢占南京烫金板块,从燕子矶新城到南部新城,从河西到城东,从江宁到江北新区,每一步都踩在城市发展的热点版图之上。
招商局集团,创立于1872年晚清洋务运动时期,是硕果仅存的百年民族企业。招商蛇口是招商局旗下城市综合开发运营旗舰企业,中国改革开放发源地运营者,上市房企TOP10,履迹全球110城,开发精品项目超500个。
作为最早进驻南京的房企之一,招商蛇口深耕20余载,匠造紫金山1号、方山里、夫子庙花园里等30余个精品项目,深谙南京人居需求,每一次执笔皆是经典,缔造多个人居范本。
钟山峰景区位条件十分优越,地块周边规划有地铁13号线、8号线,未来的交通十分便利。
地块北侧为行知实验中学、南京理工大学、石林百货和规划社区中心、幼儿园,东侧、南侧为城市绿地,公共生活配套较为完善。
该地块的北侧为光华路熊猫LG厂北侧地块社区和幼儿园项目,由南通四建集团承建,目前进度比本案的进度要快些,会先于华发G05项目竣工,日后对房价必然有影响。
据现场实探来看,G05地块应该是有一小半部分借由南通四建集团做办公用地。
03
2018年12月28日,南京云上前身G63地块被南京地铁资源开发有限责任公司以9.4亿元的底价竞得,楼面价为24327元/㎡。
2019年12月20日,南京地铁集团有限公司与保利发展江苏区域公司在地铁大厦101室举行了地铁五号线小天堂站上盖物业项目的签约仪式,并签署合作协议,共同开发该地块。
据规划显示,项目拟建三栋商住混合楼,其中:1一2层为配套商业,3层及以上为住宅,地下为商业、停车配建等。
住宅分成A、B两个地块,A地块住宅最高18层;B地块由两栋住宅组成,住宅最高9层。
地块东侧在建有地铁5号线轨道小天堂站,南侧有规划地铁8号线轨道交通站点(未建),西侧现状为多层住宅和一处已经建成的幼儿园。

在二手房方面,目前以上两个项目周边有银城东岳府、银城东苑、仁恒梅花山庄、德基紫金南苑等高档小区,二手房均价在4.1-5.5万/平左右。

继银城东岳府、中航科技城收官后,月牙湖板块新房市场陷入断供状态。两个新盘上市将为月牙湖板块缓解房荒。



