本次案例为商业案例,设计师以艺术装置与曲线为核心而环绕的场域,作为空间的开场白。承载空间关系的艺术装置,呈现出具有流动性又不失力量的美感。灵动优雅的曲线浮现出活跃的气息与流畅的空间秩序,传递活力向上的韵律感。
This case is a business case. The designer takes the art works as the core and surrounds the field as the prologue to experience the indoor space. The artistic installation carrying the spatial relationship presents the aesthetic feeling of fluidity and strength. The flexible and elegant curve shows an active breath and smooth spatial order, conveying a sense of vitality and upward rhythm.
- 长乐 -

项目名称:凉凉冰饭
项目地址:长乐奎桥
装修风格:现代
主案设计师:郑玉 陈炳
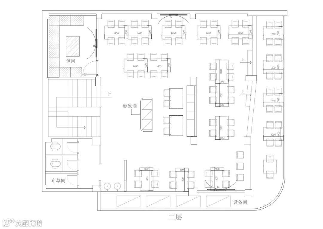
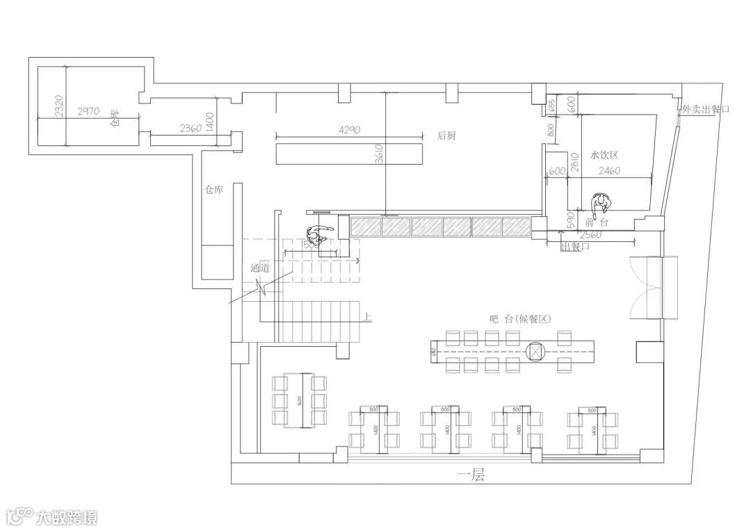
面积:300m²
Project Name: cold rice
Project address: changlekui Bridge
Decoration style: Modern
Main designer: Zheng Yu, Chen Bing
Area: 300m ²
Construction unit: Fuzhou Yiwei decoration design Engineering

Commercial design
凉凉的冰饭
外观设计借用门拱形式,采用叠加式格栅、通透的玻璃,唤醒室内外空间的觉知。透过空间的交互,将光影的变化、流动,平面与感官浑然一体,空间和时间交错瞬间构筑为案例外观。
The appearance design borrows the form of door arch and adopts superimposed grille and transparent glass to awaken the awareness of indoor and outdoor space. Through the interaction of space, the change and flow of light and shadow, the integration of plane and senses, and the intersection of space and time are instantly constructed into the appearance of the case.
The blue luminous metal art device connects the dining table, captures the freeze frame moment of the streamline, and melts the scenery into the country with the light. Designers hope that installation art is not only a visual enjoyment, but also gives space characteristics with art to connect emotionally and spiritually with users.The top arc reflective device surrounds the virtual and real space, and creates a flexible space by light and shadow.
现代艺术空间的美学基因与光影相生、消减复杂,注入简约空间属性。模糊边界,分而不隔。定格空间的魅力,营造沉浸式体验氛围。
The aesthetic gene of modern art space is associated with light and shadow, reducing complexity and injecting the attribute of simple space. Fuzzy boundary, divided but not separated. The charm of freeze frame space creates an immersive experience atmosphere.
YIWEI -- changle

