
首席设计师:郑兰叶
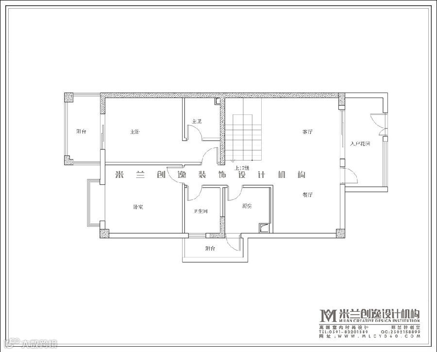
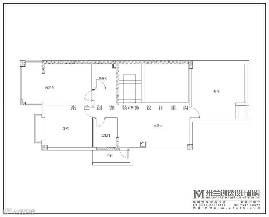
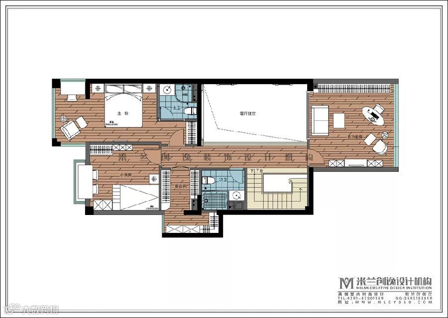
项目名称:普罗旺斯之恋
项目地址:福州江南水都兰邑复式楼
项目面积:190m²
本案设计师采用简欧现代风格,这种风格将现代风格中的明快、简洁、时尚融入欧式风格中,使空间保持了欧式的豪华、优雅、和谐、浪漫特点的同时又兼具现代风格的特点。

在风格上追求高雅,在典雅中透着高贵。客厅的挑高空间,空间立体感强,设计师采用建筑线条的装饰及经典花纹的涂料作为背景,整体画面典雅、大气,客厅拱形带木栏杆的点缀使空间更宽大,呼应庄重优雅的家具和典雅的吊灯,将空间的大气.华丽尽显无遗。

设计师在餐厅中使用整墙镜面,增加餐厅的空间的视觉效果。









首席设计师:郑兰叶(工程师)
手机:18650361899 Q Q:850838899
地址:福州市台江区万达广场C1座六层
知名设计团队 13年设计底蕴
中国建筑装饰协会室内设计分会会员
高级住宅室内设计师(中国建筑装饰协会注册)
承接项目:私宅(平层/复式/别墅) 样板房办公会所商业等
专业擅长:空间规划结构梳理软装搭配质价把控
风格专长:混搭简约简中简欧

如果您想获得更多软装资讯与案例,您可以扫描以下二维码或者加我们的微信号(MLCY360)或点击左上角蓝色字体(米兰创逸)关注我们的微信。

公司地址:
【米兰创逸装饰设计机构】福州台江万达广场C1座六层。
乘车:金融街万达广场公交车站旁(中信银行隔壁)的C1座大堂电梯上六层。
开车:到地库负二楼出口附近,面向出口,左手边通道找C1座电梯上六层。
金融街万达广场站:13、74、16、162、10、88、320、321、15、137。
金融街万达(曙光路)站:51、153、509、39、139。
联系电话:0591-83201389。

