
项目名称:善发•时代广场户型优化设计
设计主创:郑兰叶(设计总监)
设计助理:陈菊超
本套案例是为连江善发·时代广场而做的户型优化设计,设计师的前瞻性贯穿始终,前期户型优化不只是考虑功能是否好用,更多的是优化模数,建立标准,为以后大批量施工减少不能判定的因素。同时,设计中还需根据最终使用者的情况来做前置预案,考虑不同人群的具体需求,提供品质高端的生活配套之余,为使用者自主创新留足余地。
户型一:

户型二:



户型三:


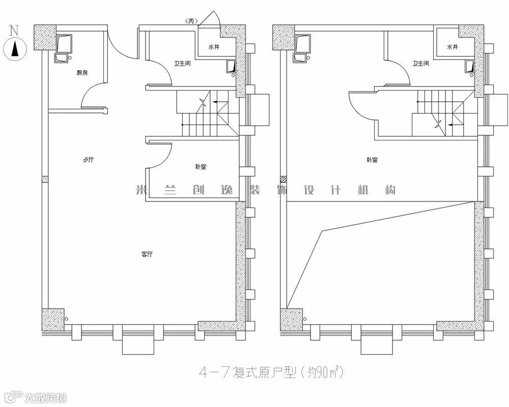
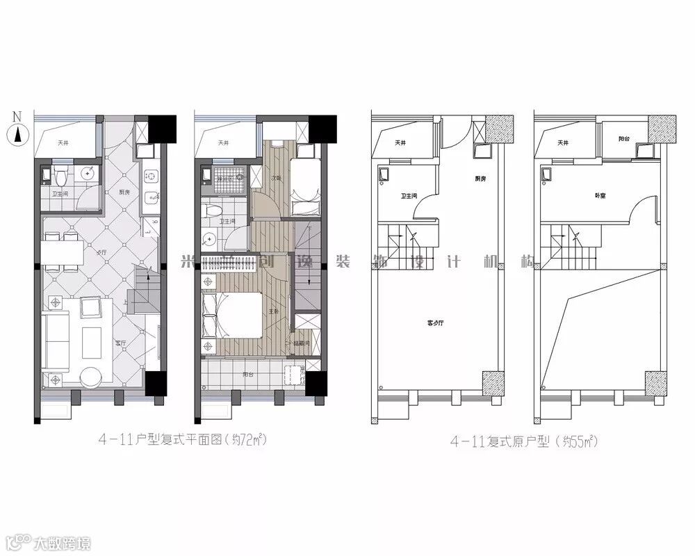
户型四:


户型五:



【米兰创逸装饰设计机构】
由福州知名设计师郑兰叶创立。设计团队专注高端室内设计十六年,作品涉猎别墅、高端住宅、地产样板房、酒店、会所、办公、商业等。设计团队擅长空间规划、结构梳理、质价把控、软装搭配的全案设计。
承接项目:高端住宅 /样板房/办公/会所/商业
专业擅长:空间规划/结构梳理/软装搭配/质价把控
风格专长:混搭/简约/简中/简欧/北欧
首席设计师/品牌创始人: 郑兰叶
手机:18650361899 QQ:850838899
地址:福州市台江区万达广场C1座六层
知名设计团队 16年设计底蕴
中国建筑装饰装修工程师
高级住宅室内设计师(中国建筑装饰协会)
中国建筑装饰协会室内设计分会会员
亚太酒店设计协会会员
福建省室内装饰装修协会常务理事
2003至2009 福建合诚装饰机构 设计师
2009至2013 福建合诚装饰机构 总经理
2014初 创立福州米兰创逸装饰设计机构
荣誉:
曾接受福建新闻频道、福州移动频道、福建东南卫视等多家电视媒体及各大专业网站专访
荣获福州市住宅装饰企业“优秀设计师”
荣获福建省室内装饰装修协会“优秀工作者”
荣获“金羊奖-中国十大室内设计师评选活动”奖项
荣获“福州第三届室内设计大赛家装工程类”奖项
荣获“海峡杯”第四届装饰企业及装饰设计大奖赛家装类——金牌设计师
荣获“海峡杯”第四届装饰企业及装饰设计大奖赛公装类——优秀设计奖
荣获“海峡杯”第四届装饰企业及装饰设计大奖赛——天弼设计奖
荣获“海峡杯”第四届装饰企业及装饰设计大奖赛家装类——设计方案创意奖
荣获福建省室内设计师协会“福州十大别墅设计师”
荣获“国际环艺创新设计作品大赛(华鼎奖)别墅空间方案类”一等奖
荣获“金山红星杯”福建省室内设计大赛银奖——《北欧物语》
荣获“金山红星杯”福建省室内设计大赛铜奖——《闻香墨醉》
荣获“金山红星杯”福建省室内设计大赛铜奖——《晨•谧》
荣获“金山红星杯”福建省室内设计大赛铜奖——《萱•闲》
荣获“金山红星杯”福建省室内设计大赛优秀奖——《邂逅》
荣获“金山红星杯”福建省室内设计大赛优秀奖——《研磨时光》
荣获“2017光华龙腾奖—中国装饰设计业十大杰出青年百人榜”奖项
入选刊物作品:
作品入选《经典户型样板间》
作品入选《样板房新东方主义》
作品入选《中国最顶尖样板房V》
作品入选《样板间Ⅱ——东方风情》
作品入选《国际样板房大观》
作品入选《梦想家居》
作品多次刊登于《百惠家居》《印象家居》《喜盈门》等各类杂志
工程项目:
融侨悦府、建发国宾府、融侨外滩、世欧澜山、世茂上游墅、金辉淮安半岛、居住主题公园、云亩天朗、融汇江山、华润橡树湾、金侨爱丁堡、大洋鹭洲、运盛美之国、中天金海岸、泰禾红树林,泰禾红裕、兰庭西江月、东方威尼斯、财润地产样板房、申发办公室、万达办公室……
如果您想获得更多资讯与案例,您可以扫描以下二维码或者搜索我们的公众号【米兰创逸装饰设计】,点击关注。
【米兰创逸装饰设计机构】
公司地址:福州台江万达广场C1座六层。
联系电话:0591-83201389。
乘车:金融街万达广场公交车站旁(中信银行隔壁)的C1座大堂电梯上六层。
金融街万达广场站:13、74、16、162、10、88、320、321、15、137。
金融街万达(曙光路)站:51、153、509、39、139。
开车:从威斯汀地下停车场入口,到地库负二楼出口附近,面向出口,左手边通道找C1座电梯上六层。

