点击蓝字关注我们


来源:简二家
▼
都说“装修是门遗憾的艺术”,那有没有办法将这个遗憾降到最低值呢?
答案是有的,需求。
简单来说就是在装修前,要先知道自己需要什么样的房子,什么样的房子适合你。
并且不要因为外界的声音从而放弃自己当初的需求。
有一朋友在装修前,本打算打掉一间房来增大公共空间,这样不仅能让整个空间更加通透,后续还能成为孩子游玩的场所。
但当她将这个想法告知公婆时立刻被否定了,公婆硬要装成3房,给的理由是多个房间好,以后客人来住了也方便,而且这本来就是个3房户型...
结果是客人鲜有来临,客厅和主卧都显得非常局促。用朋友的话讲,现在的苦水都是当时脑子不按自己需求做进的水...

图源Amos Goldreich Architecture
所以装修前大家一定要明确好自己的需求,后续装修就跟着自己的诉求走。
今天带大家来看两个户主,他们在装修前提的需求:
第一位:
#尽可能地扩大空间,并使它们的空间平坦感看起来更大!#
第二位:
#有个大房间,有个完整的卫生间和更衣室,有个大的公共区域,可用来工作和待客#
更重要的,它们的可使用面积也就60㎡而已!
所以直面自己需求,单车也能变摩托!


信我
这房真的只有60㎡!
主要原因我觉得有三:
1、色彩搭配得好
2、空间规划得好
3、有自己的需求
客厅地面是白色橡木地板,与墙顶和墙面属于同色系。
整个空间家具以淡色为主,唯一点睛色是紫色,不过配合地毯的菱形也稍有弱化突兀性。
在小空间内,切忌大面积使用深色,一来会显得空间拥簇,二来可能会有些压迫感,深色的话可稍作为点睛色出现。

沙发旁设了一个阅读区,上方的壁龛能收纳,也是白色为主调。
然后用书籍、绿植、台灯来装饰,白色永远是最好搭配的颜色。

小空间建议使用细长家具。
这个建议在这个客厅上就可见一斑。
细长的桌椅瞬间拉长了空间比例,宛若是打直了腿的芭蕾舞少女那样。

上个改造前的图,拥簇、昏暗,老气。
以及中间的四人桌仿佛四缺四的麻将桌,好不热闹,毫无生气。

但经过一番改造后,直接呈现买家秀和卖家秀间的差别。
原来右侧沙发的位置,现换成了一个浮动的收纳柜。
挑高的收纳柜一来减轻了小空间视线的压迫感,而且也令打扫更加方便,以及还让光线更好的发散到各个角落。

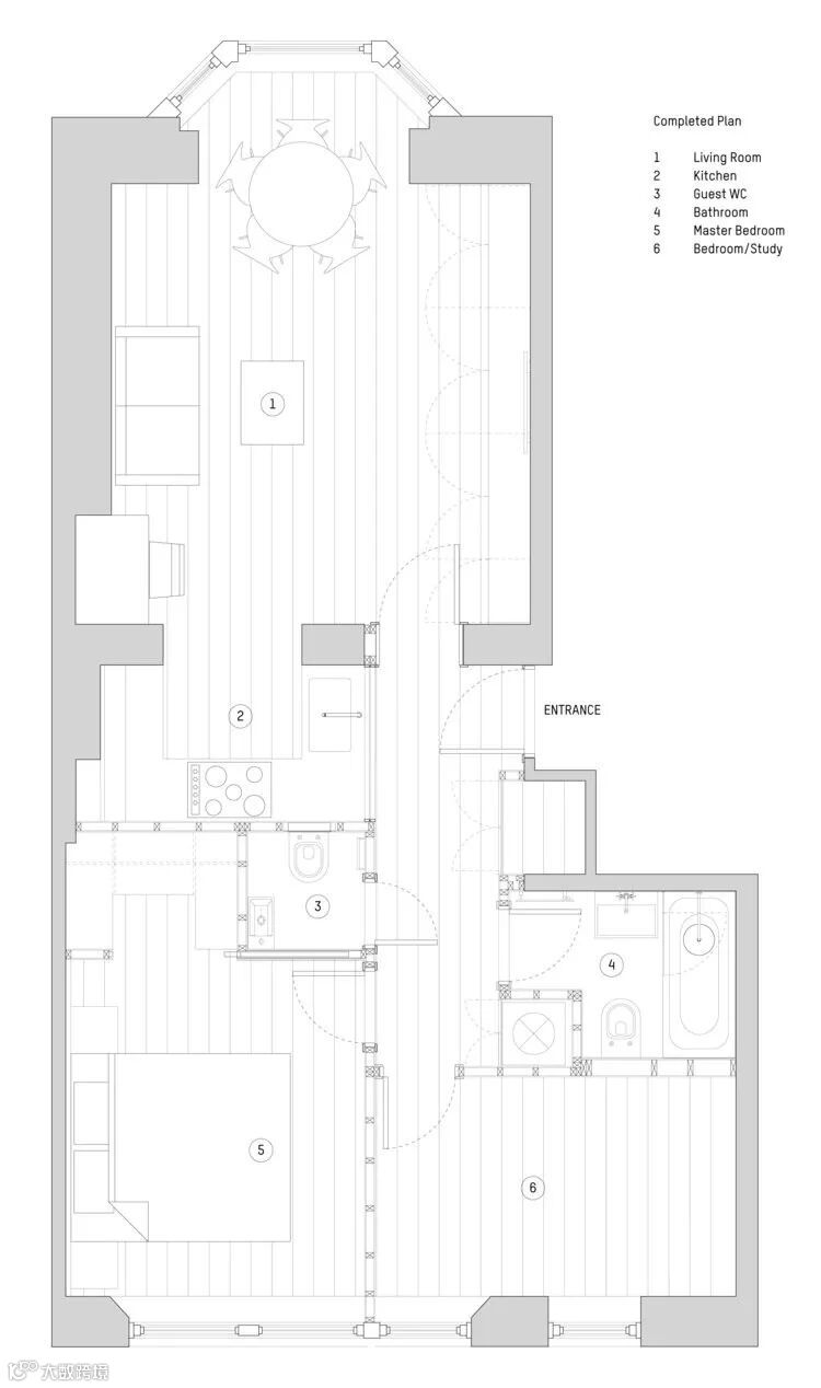
整个空间厨房是收姐最为喜欢,因为设计师将户主的需求铭记在心:
尽可能扩大空间。
为此,设计师改变了原有空间的动线:
一将原先的卫生间改为厨房,且和客厅互通;
二将原来厨房的位置与单间合并。

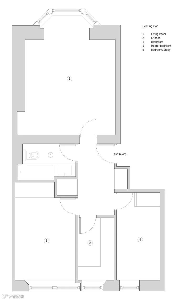
改造前厨房的位置是卫生间,从图中也能感受到卫生间比较局促,还有光线也不是非常充足。

而这儿经改造成厨房后,瞬间发生了一百八十度大转弯。
相比原来的厨房,现这里距离餐厅动线更加合理,收纳空间翻了N倍,使用伸展感也提高了不少。
同时,因为用的统一白色调所以看起来也更加的亮堂。

另外,洗菜区设计师在原来的墙上打了一个开口
玻璃的安置在视觉上更显宽阔,而且对面就是玄关,路过玄关时也是别有一般风景。

收姐甩一张空间平面图给大家康康。
从图中我们能看到:
敲掉了卫生间的一面墙然后改成了开放式厨房;
敲掉了原来的厨房位置的墙面,然后被划分到了卧室。


改造后的卧室一改之前的老派,现在干净清爽,是别人羡慕的家居美图。

而且原先不敢想的步入式衣柜,现在完全不是梦。
可以说设计师彻底做到了屋主的需求——尽可能地扩大空间,看起来更大。
厨房被划分后,卧室的一侧还多了一个卫生间,60㎡的空间有两个卫生间这是不敢想的。


装修的确是件很磨人且很繁琐的事情。毕竟当你面对设计师提需求时,要考虑各个空间你想其承担的功能。
可是也只有经历过这些,你家才能成为你自己想要的家。
甚至,还能将小家爆改出意想不到的惊喜样。

人家的60㎡看起来像120㎡
这个房子坐落在巴塞罗那,是个顶楼。
一般带阁楼的房子总结下来基本都是:
1、没有好好规划空着浪费
2、空间利用率不高
3、颜值不高
所以,当看到这个阁楼改造房子的时候,还是眼前一亮的。

整个空间是流畅型
没有多余的门所有空间都敞开
以及粉色一直以来都是死亡色
毕竟在家装里大面积使用它想要最后好看着实不易
但在这个空间内
淡粉灰+淡粉绿+白色让人好不想多看两眼
简直是太养眼了

以及屋主要求:要有个大房间,有个完全卫生间和更衣室,有个大的公共区域,可以舒适地工作和接待客人。
在这儿也基本实现。
首先是有个小的空间
足够屋主自己在这里度过私人时间

书桌一侧进去是独立的更衣室
满足了屋主需求

而这块可被称之为客厅的区域
也是公共区域
宽敞的空间完全足够来接待客人以及工作
对了,垂直伫立在中间的是承重墙
在这儿也并不觉得它突兀
反而还营造出了一种矛盾的流动性空间

厨房的配色也是同色系
很有春天的感觉

整个空间内只有一扇门
那就是浴室的门
可还是透明的....
据说是为了保持空间的流动性
ok,fine

看完这一套60㎡的空间改造
这哪是阁楼
这简直就是网红打卡的民宿好嘛!
啊,想住~

讲到底,有一个住得舒服的家,爆改得优秀的家,前提还是自己有一个目标,有一个足够清楚的需求。
然后带着自己的需求,带着自己天马行空的想法和设计师好好沟通。
总之,梦还是要做的,万一成真的了呢?
本文资料来源网络
上美设计
About Us
米兰创逸
About Us

