多少60后的翻新梦,居然被这位福州女教授早早实现了,也让不少网友直呼:牛啊!
本期要为大家分享的,是一对福州母子的95㎡家,妈妈年龄五十左右,节俭持家,翻新旧房目的是为方便其子工作需要,且因为房子会有征迁可能,想留住与儿子在这儿的蕞后一段回忆。
户型 | 三室两厅·95㎡
90后设计师,有着丰富的设计现场经验,擅长空间布局规划和意境呈现,并能优化考量设计贴近客户实际需求,服务百余户客户收获口碑具优。
| 户型分析 |
THE PLAN丨设计前·原始户型图
左右滑动看解析


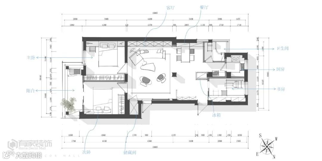
THE PLAN丨设计后·平面户型图


入户玄关空间不大,有家装饰设计师在入户门的正对面,定制了一组嵌入式收纳柜。
玄关左右两边分别连着厨房和餐厅。




▲餐厅实拍图




当然,这个房间还有其它的功能:书房、储物间和客卧,功能丰富又实用。



点赞+在看 支持一下吧









