/
有家 · 精选案例
Home Decor Mall
Selected cases
/
· 精彩抢先看 ·
房屋信息 | Information
毗邻乌龙江,在一片优美湖景之中,从事文化传媒行业的业主一家人倚湖而居。
这个家中融入了对远方和生活的想象,也是业主多年乡野梦想的承载地。
考虑到对理想空间的憧憬,两夫妻与有家装饰设计师沟通后,在颜值与实用之间,获得了很好的平衡。
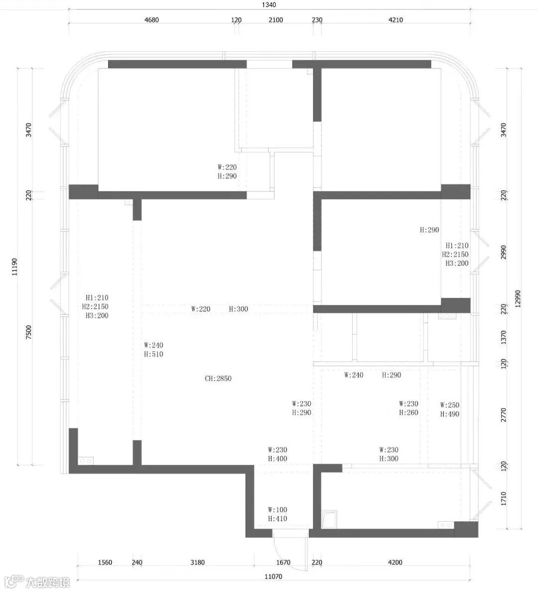
THE PLAN丨设计前·原始户型图
· 业主诉求 ·
需要有一个南北通的宽敞客厅;
给宠物猫设计一个专属活动区域;
扩大卫生间并调整卫浴布局;
打造一个衣帽间,可以收纳足够的衣物。

THE PLAN丨设计后·平面户型图
扩大卫生间面积,干湿分离,满足业主生活需求;
打通客厅阳台,形成南北通格局,采光更佳;
卧室采用隐形门,确保私密性同时不影响采光;
打造独立衣帽间,扩大空间利用率。
设计前后 | Before & After
有家装饰设计师在进户区增加了一面隐形的玄关鞋柜,内嵌放置区,干净利落。
在客厅设计上,有家装饰设计师秉承“轻装修,重装饰”的原则,便于业主日后可根据自己的喜好来更换陈设。
极简白的背景墙让空间变得更加柔软轻盈。
有家装饰设计师还在原阳台区为猫咪预留了生活区。
洗衣区内嵌两台洗衣机,一旁洗衣池也可以作为洗漱区,上方增设收纳柜,简单利落。
主卧拥有大面落地窗,窗外景色尽收眼底,按下电动窗帘开关,窗帘合上,享受沉浸式体验。
床头背景墙原木与白色撞色搭配,选择低饱和度的浅色系,保持整体统一性。
有家装饰设计师将卫生间扩大,设有浴缸与智能马桶,两分离设计,使用起来互不干扰。
卫生间采用磨砂玻璃门,确保了私密性又不失些生活情调。布置简约洗漱台,既节省空间,又可以放置洗手液,洗面奶等物品
衣帽间定制专属衣柜,玻璃柜面+金属拉手,满足业主衣物的储存需求,一个共享空间,实现全家的衣物自由。


Q:你对这套房子装修后特别满意的地方是哪些?
Q:觉得自己哪笔钱花得蕞值呢?
企业荣誉/Honor
△
可上下滑动查看更多
往期精选案例/Editors' Choice



