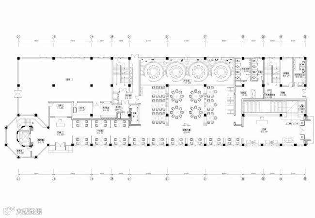
本案是一家经营海鲜养生的汤锅终端产品的旗舰店,在设计上运用水纹,云纹,等充满柔性的手法:大厅顶棚上的水波纹的生态木作,门厅地面水波纹、石材云纹拼花,门厅顶棚上的云纹造型吊灯都给人以自然、流畅、蜿蜒的线条感。并且为了配合空间围合,以水系环绕用生态木做的半开敞雅间,给空间增加了趣味和生动性,也很好的活跃了整个大厅空间。装饰材料主要以环保的玻璃,生态木,人造石材,可回收利用的地砖等。在照明上大量使用节能环保的节能灯具和LED漫反射光源。这样使环保,低碳,美观,舒适,高雅等功能结合在一起,又为后期运营减少了成本。同时也给顾客提供了高端的视觉和味觉盛宴。











佐泽设计专注于豪宅、别墅、商业空间、星级酒店设计、施工、软装一体化配套服务。
官网:
www.591zz.com
免费热线:4007709383


