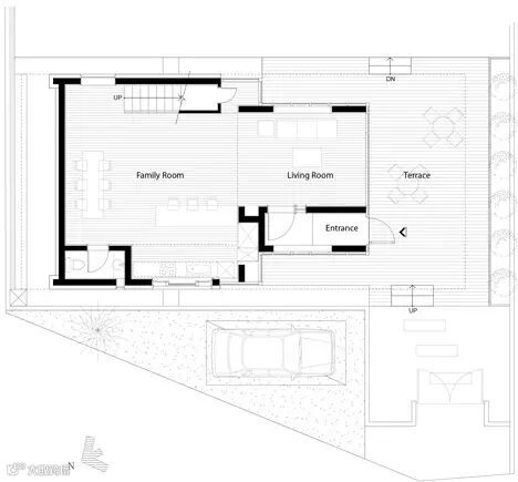
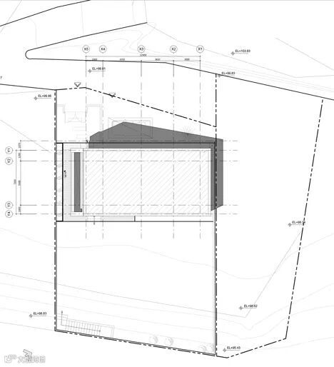
这个建筑靠近Chungpyong湖并且背面靠山,视野面对湖泊。与韩国的大部分山一样,斜屋的地形和方向不是正好匹配。因此,要解决的第一件事就是房子的朝向如何定位有朝南的阳光并且面对着湖。这个设计中的南面的部分被托起,这样房子可以得到来自南方的足够的阳光,而房子本身定向朝东根据地形。通过托起房子,这样可以有一个新的空间用作玻璃盒子的家庭房。这个设计理念源于PRAUD开发建筑语汇“Topology & Typology 拓扑与类型”。 “拓扑结构和类型学”是基于安东尼维德勒Anthony Vidler对类型学理论的理论实验。 现代主义成为建筑语言,而不是一定时间阶段的风格成为建筑语言。
通过将整个箱子托起,就形成了一个全新的第三空间。第三空间使得房子更有层次感。外面的露台既不是完全的敞开也不是完全的私密空间。 另外,里面的客厅也是在一个半公共区域, 这种层次感的变化为这个小型房子项目带来更深层次的空间。锌被选择为整个包住盒子的单一材料,并且它可用于屋顶,板壁和外墙天花板,并且连续横跨封斜线增强框的美感。





















佐泽设计专注于豪宅、别墅、商业空间、星级酒店设计、施工、软装一体化配套服务。
官网:www.591zz.com
免费热线:4007709383


