点击上方蓝色字体 佐泽设计 关注我们
佐泽空间设计顾问有限公司专注于酒店、餐饮、办公、商业地产室内设计的专业机构。为全球的高端酒店业提供建筑规划、室内设计、景观设计、陈设设计、运营盈利等"全方位一体化"的解决方案。
ZZD佐泽设计自创立以来,一直以国际最新的设计理念创造可持续发展的、永恒的、引导潮流的酒店设计为目标。并以设计为龙头,带动酒店产业链的发展,实现酒店产业链资源的高度整合。在成就完美与创意设计的同时,为客户的商业项目增添魅力,提升价值并创造最大化效益。

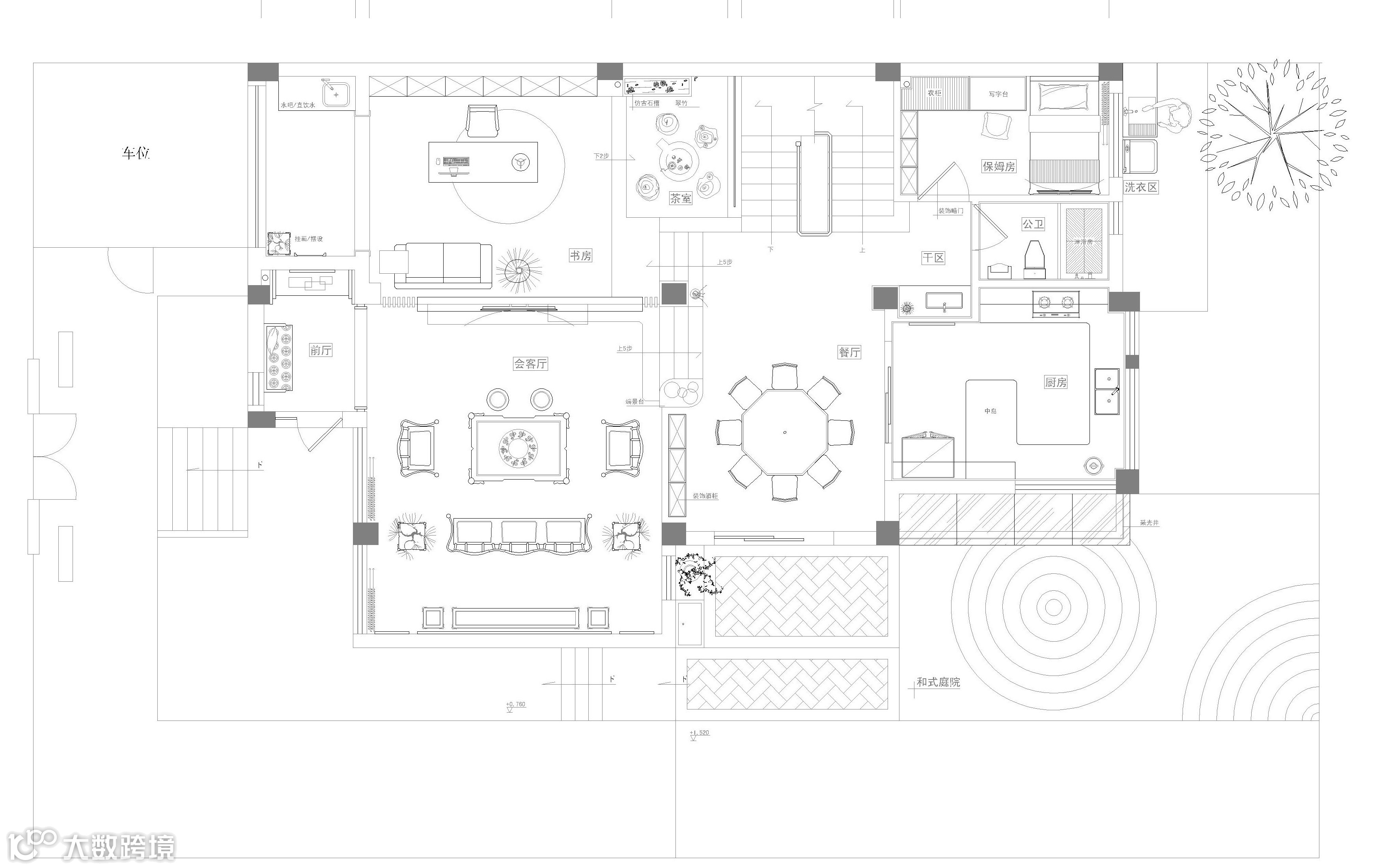
本案设计的风格采用新中式风格,本风格非常讲究空间的层次感,在需要隔绝视线的地方,则使用简约化的中式隔断,通过这种新的分隔方式,一层客餐厅就展现出中式家居的层次之美。再以一些简约的造型为基础,添加了简约的中式元素,使整体空间感觉更加丰富,大而不空、厚而不重,有格调又不显压抑。



客厅:客厅是简化的中式味与现代居室风格的碰撞,设计师以现代的装饰手法和家具,结合简约中式的装饰元素,来呈现亦古亦今的空间氛围。中式风格的简化元素与现代风格的简单素雅自然衔接,使生活的实用性和对传承与改良传统文化的追求同时得到了满足。电视背景墙的造型简洁现代,却在空间层次上采用亲和力的木饰面染色来突出造型,配上简化的中式电视机柜,成为时尚与新古典的柔媚结合。



书房:几乎所有的家居设计中,都未跳过书房这一环节。一方面,固然是因为读书是人类所共有的一种跨越了种族与边界、时间与空间的生活习惯或嗜好。另一方面,当家居设计的大部分环节都只在表现其本身的功能与形态时,书房的设置却总是极有分寸而又极其丰富地传达着家居主人的内心,从而提升了主人的身份与品位。九宫格的顶部造型配上简化中式的书桌,配上满墙书柜、四幅书法、文房四宝,为浓郁的读书营造一种“静”入其中之氛围。




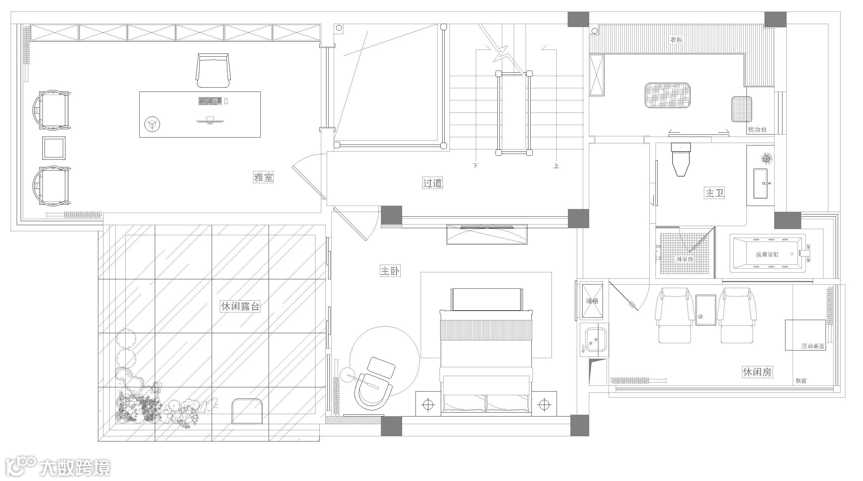
居室:居室在色彩方面秉承了传统古典风格的典雅和华贵,但与之不同的是加入了很多现代元素,呈现着时尚的特征。在配饰的选择方面更为简洁,少了许多奢华的装饰,更加流畅地表达出传统文化中的精髓。为了给居室增添几分暖意,饰以精巧的装饰壁灯和雅致的墙纸背景,使整个居室在浓浓古韵中渗透了几许现代气息。





