
今日,赛虹桥板块将迎来一重磅纯宅地(G68地块)出让!
城南赛虹桥的G68地块面积约5.2万平方米,起拍价为37亿元,最高限价44.3亿元,毛坯房限价为41000元/㎡。
上午10:00,赛虹桥的G68地块正式开拍,经一轮竞价后成交,其中地块被上海铁路房地产开发经营有限公司以总价37亿元竞得,成交楼面价25646元/㎡。

1、赛虹桥G68地块,被上海铁路房地产开发经营有限公司以总价37亿元竞得,成交楼面价为25646元/㎡。
上午10:00,赛虹桥的G68地块正式开拍,经一轮竞价后成交,其中地块被上海铁路房地产开发经营有限公司以总价37亿元竞得,成交楼面价25464元/㎡。

赛虹桥G68地块(雨花台区赛虹桥街道安德门市场(一期)地块)位于城南赛虹桥板块,出让面积51524.88㎡,毛坯房销售限价 41000元/㎡。
地理位置:东至宁芜铁路,南至规划眼香路,西至凤台南路,北至规划观云路
出让面积:51524.88㎡
规划用地性质:R2二类居住用地
综合容积率:1.0<R≤2.8
建筑高度:80m≤H≤100m
建筑密度:≤20%
绿地率:≥35%
起拍总价:370000万元
最高限价:443000万元
起拍楼面价:25646元/㎡
最高楼面限价:30706元/㎡
毛坯房销售限价:41000元/㎡
NO.2020G68地块出让条件
(1)根据《国务院关于改革铁路投融资体制加快推进铁路建设的意见》(国发〔2013〕33 号)和《省政府办公厅关于支持铁路建设推进土地综合开发的实施意见》(苏政办发【2016】162号)文件精神,该地块属于铁路场站综合开发项目,需将宁芜铁路改造工程的铁路站场、线路工程等统一联建,竞买人或其控股股东须具备联建资格,提供相关证明材料。
(3)该地块地上现存10kv、110kv高压架空线,由中国铁路上海局集团有限公司负责落地迁改并实施过轨。
(4)该地块装配式建筑面积比例为100%,住宅建筑单体预制率≥50%,住宅建筑100%实行全装修成品房交付,不享受容积率奖励政策。
(5)竞得人须做好沿凤台南路一侧房屋的隔音降噪措施,通过环境影响评价。
(6)该地块按“限房价、竞地价”方式出让,所建普通商品住宅(毛坯)销售均价不得超过41000元/平方米(装修价格另行核定),最高销售单价不得超过售价均价的110%(装修价格另行核定)。
(7)地块内南唐窑业遗存及南朝佛寺遗存部分单独设宗发证。竞得人须按照文物部门意见编制文物保护方案并完成修复、建设,在商品住宅首次登记前无偿移交雨花台区文物部门,面向社会开放。无偿移交时,所对应土地按文物用地办理划拔、登记手续,出让面积据实核减,出让金总额不作调整。文物遗存部分移交前由竞得人承担保护责任。
该地块地理位置十分优越,周边配套十分成熟,东侧紧邻规划地铁8号线,靠近10号线安德门站,交通非常便利。

小区不远处是大型商业综合体虹悦城,旁边还有一个大型的苏果社区商店,下面底商药店、熟食、菜场等,休闲购物一应俱全。

不过该地块周围也有不利因素,一个是西侧多年搬迁“爽约”的宁芜铁路,一个是东侧的高架。现在周边部分小区还能听到火车鸣笛的声音,不过好在今年年初,宁芜铁路也基本确定搬迁。

继花语江南收官之后,该板块新房市场又迎来了短暂的“断供”,这也导致不少买房人不得不把目光转移到二手房。
G68地块周边有禹洲吉庆里、凤凰和美园、应天花园、亚东国际公寓等,二手房储备还是非常充足的。

目前附近的改善热盘禹洲吉庆里的小区二手房成交价已经达到了51015元/㎡,对比于花语江南此前44515元/㎡左右的收官价格,还是存在一定倒挂空间的。

与G68地块仅一街之隔的凤凰和美,最近一次成交了一套123平的房源,单价近4.3万/平。

亚东国际公寓二手房挂牌价基本也都在3.8-4万/㎡左右,近期成交的房源,价格破了4万/㎡。

赛虹桥G68地块毛坯限价4.1万/㎡,未来也是存在不小的倒挂空间。
除了赛虹桥G68地块外,本次住在南京网(微信号:zznjw025)还去了板块内的仁恒城市星光进行了实地探查,可以看出项目进展还是很快的。

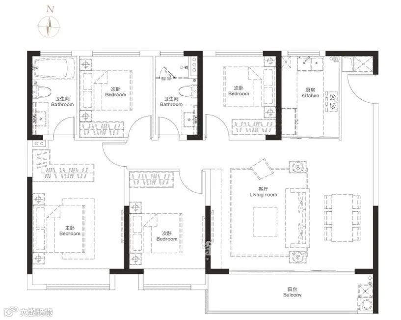
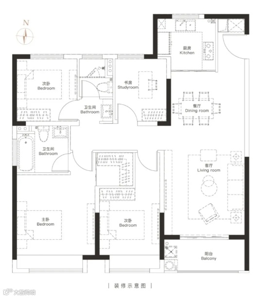
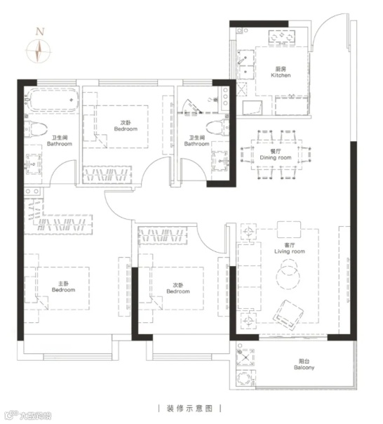
据置业顾问透露,仁恒城市星光将在本月中下旬加推14、15栋,建筑面积约100㎡、110㎡、126㎡、143㎡四种户型。

仁恒城市星光毗邻河西新城,距离地铁10号线小行站800m,距离南京软件谷直线距离约600米,和聚集了阿里巴巴、中兴、华为等产业的新城科技园仅一河之隔。

商业方面附近有楚翘城和雨花客厅,生活气息浓厚。另外,项目还规划有2栋14层办公楼及商业裙房和九年一贯制学校以及幼儿园,可以说配套也是十分齐全。

在仁恒城市星光以首开均价4.38万/㎡的价格售罄后,板块内二手房业主信心提振,尤其是项目旁边的琥珀森林,房价开始逆袭,挂牌价格一路上涨。
在今年年初,琥珀森林二期的二手房成交价是3.2万/㎡。

9月份涨到了近4万/平!不到一年的时间涨了近8000/㎡,且还有上涨的趋势。

此前仁恒城市星光两次加推均当日售罄,仁恒的口碑加上不可多得的稀有区位,预计仁恒此次加推依旧火爆。赛虹桥G68地块最终花落谁家?让我们拭目以待!






