“左岸香颂 · 花窗絮语 · 古韵今绎”
作品名称 | Name/左岸巴黎
项目地址 | Address/福州·榕心映月
项目面积 | Area/97㎡
项目户型丨Project layout/三室二厅
整案花费丨Whole case expenses/40w
项目类型丨Project/毛胚-全案设计+半包施工+主材推荐
创意设计总监丨Designer/姚秋智
项目位于福州金山,位于地铁2号线、5号线交汇的金山站上,占据双地铁资源,项目周边临近公园、景区商圈,宜居宜业,近享吃喝玩乐一站式成熟配套。
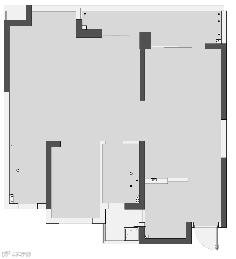
原户型是三房一厨一卫的结构,厨房和玄关面积相对较小,体验感欠佳。阳台及飘窗占据一定空间,次卧及公卫面积较为局促,空间的利用率受到了一定的限制。
本案业主一对年轻夫妻,准备要小孩后期会跟父母同住,需保留三房,想公共区域宽敞明亮,多一些交互空间整体能打造成法式复古的空间氛围。
-
玄关设置洞洞板、全身镜,满足日常出门随手放物的需求。 -
厨房使用平开窗,给厨房赋予一个具有弹性可变的“开放式”功能,加大空间的视觉通透性,餐厅使用圆桌让空间更加柔和,客厅增设6.3米的收纳柜,让每个区域都有对应的收纳功能。 -
主卧拆除原有飘窗,增设一个电脑桌,满足办公和娱乐需求。利用L型衣柜组成衣帽间,弧形转角避免磕碰,弱化直线带来的生硬感。 -
次卧向过道借部分空间,增设一组衣柜,增加次卧收纳空间 -
公卫做了分离式设计,台盆外置,和餐厅背景墙连接,具有延伸性。
收纳体系分配:门口的洞洞板提供模块化收纳,衣帽间实现换季储物,大厅的收纳柜规优化垂直空间利用,洗衣房整合日常洗晒与现代化设备,系统化的储物设计提升了空间效率与整洁度。
客餐一体化结合大面积开窗,最大化引入自然风光与通风;分区设计确保各空间独立采光与空气对流,提升整体舒适性与通透感。
左滑查看更多
设计单位 | Design Company/ 红瓦设计
施工单位 | Construction Company/ 红柱精工
深化表现团队| Deepen Visual Expression/魔方深化团队
策划编辑 | Editor/ 见南风
软装陈设丨Soft furnishings/平日里丨家居软装全案
识别添加客服有礼
延伸阅读/Extended reading
▲实景作品 | 江畔逸境
▲实景作品 | 半糖暖居拾光
▲实景作品 | 光语栖岸
▲实景作品 | 焦糖城堡
▲实景作品 | 花梦卢浮影
▲实景作品 | 晨光暖意融
▲实景作品 | 晚风拂星辰
▲实景作品 | 初晓见如风
▲实景作品 | 观自在云来去
▲实景作品 | 一江秋月照人明
▲实景作品 | 云卷云舒任流年
▲商业实景 | 凡萃咖啡x赴一场春日邀约
▲点击上方,关注我们了解更多详细内容

