“焦糖梦境映现实,白木交织诗意浓。”
作品名称 | Name/焦糖城堡
项目地址 | Address/福州·首开香颂
项目面积 | Area/89㎡
项目户型丨Project layout/三室二厅
整案花费丨Whole case expenses/36w
项目类型丨Project/毛胚-全案设计+半包施工+主材推荐
创意设计总监丨Designer/姚秋智
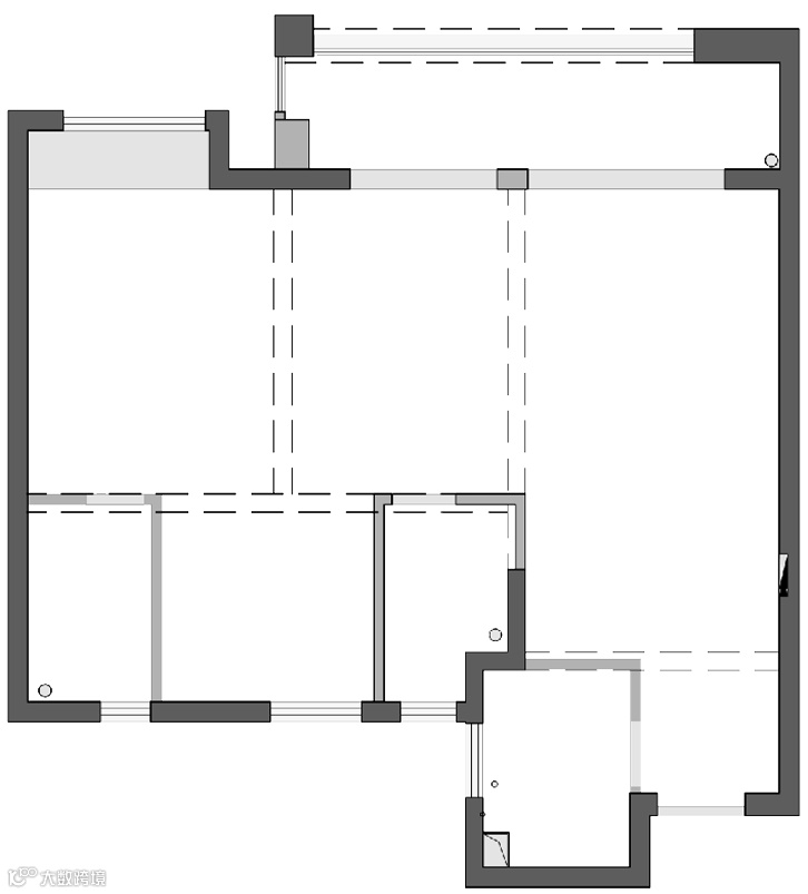
🔘原始户型图
🔘户型分析
原户型是三房两卫的户型结构,每个空间较为方正且独立,入户左侧为厨房,厨房及玄关面积紧凑,整体储物空间相对有限。阳台与主卧飘窗占据部分空间,空间利用率相对有限。
🔘业主需求
本案业主是一对年轻夫妻,有一只布偶猫,他们想要一个复古温馨自然的家,喜欢彼此间能够随时互动交流的空间;一个宽敞通透的客餐空间,需预留两个卧室,一间书房;需有宠物活动的空间和设备;全屋能多一些储物空间。
🔘平面改造方案
平面布置重点分析:
①原户型玄关与厨房面积有限,缺乏储物空间,利用斜切将两个空间形成一个体块面,冰箱位外置,凭空多出一平米使用空间,缓解厨房储物压力同时满足玄关收纳。
②将部分阳台并入客厅,客餐一体,面宽增加视野更开阔,厨房墙面预留窗口,实现餐厨间温情的小互动。
③将原小次卧设为开放式功能房,可满足日常游戏、办公学习,同时也扩大了客厅活动范围,视野更加通透。
④拆除主卧原有飘窗,临窗而设长桌,日常可梳妆阅读、赏景放空。
🔘系统收纳图
收纳体系分配:本案全屋各个空间都设计了大大小小的收纳空间,满足屋主对各个功能分区的收纳需求。主卧设计一整排的衣橱收纳,主卫门口也补充了收纳区域。
🔘采光对流图
原户型考虑到玄关与餐厅部分采光不佳,我们利用斜切的设计手法,将光引入,增加采光照明。每个空间我们均考虑到了采光问题的同时,也满足了每个空间的通风。
玄关的收纳空间由展示柜、鞋柜、开发格、储物柜组成,进门随手置物,出门有矮凳换鞋。进屋像是走进了一座焦糖城堡的密道,满墙的萌宠,治愈一天的疲惫。
将原有的厨房冰箱位外置,利用斜切把两个空间形成一个体块面,使得厨房空间特别从容,凭空多出一平米的收纳空间,餐厨空间凭借一扇折叠窗,实现餐厨空间温情小互动。圆形餐桌边摆放屋主的小水吧,收藏各类马克杯,摆放咖啡机、酒水等;小抽屉则收纳各类餐具。
阳台空间并入客厅,客厅面宽增大,靠窗设计猫猫起居柜,搭配燕子艺术装置,空间更显灵动;客厅软绵绵的沙发搭配黑格子地毯,给人温馨又惬意的感觉,边上摆设木马摇椅,唤起童年记忆。半开放式书房,让客厅的视野更加通透。
悬浮大长桌搭配活动抽屉柜,满足屋主两人同时办公,墙面放置洞洞板,零散物品也能上墙成为艺术品;书桌背面做复古收纳展示柜,满足图书和收纳双需求。
▲客卫
卫生间实现干湿分离,小小的空间也特别从容,马桶边与淋浴间设计壁龛,置物拿取很方便!地面铺贴小花砖,空间更具灵动。
左右滑动,查看图片
左滑查看更多
设计单位 | Design Company/ 红瓦设计
施工单位 | Construction Company/ 红柱精工
深化表现团队| Deepen Visual Expression/魔方深化团队
策划编辑 | Editor/ 见南风
主材物料 | Main Materials/ 华鹏陶瓷、鸣远花砖、德立淋浴房
软装陈设丨Soft furnishings/红瓦设计&业主共建
识别添加客服有礼
延伸阅读/Extended reading
▲实景作品 | 花梦卢浮影
▲实景作品 | 晨光暖意融
▲实景作品 | 晚风拂星辰
▲实景作品 | 初晓见如风
▲实景作品 | 观自在云来去
▲实景作品 | 一江秋月照人明
▲实景作品 | 云卷云舒任流年
▲商业实景 | 凡萃咖啡x赴一场春日邀约
▲点击上方,关注我们了解更多详细内容

