“循一抹绿意,觅一方仙踪。”
作品名称 | Name/绿野仙踪
项目地址 | Address/福州·君兰和鸣
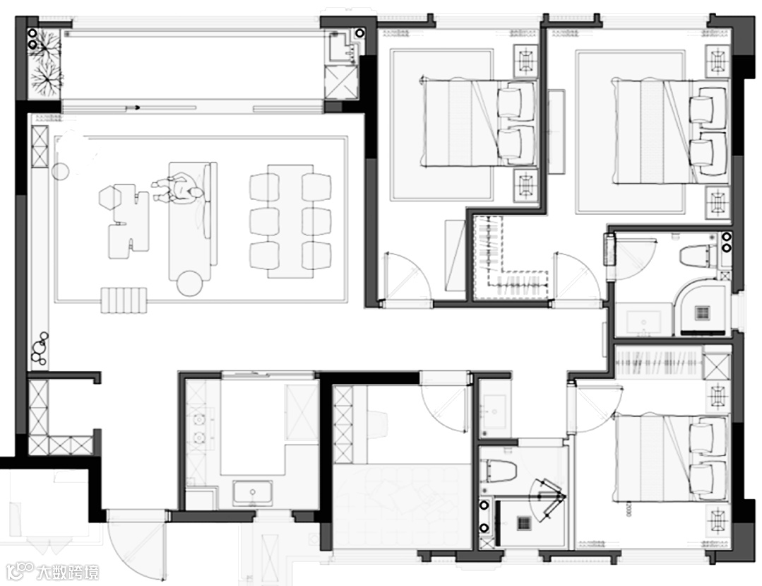
项目面积 | Area/131㎡
项目户型丨Project layout/四室二厅
整案花费丨Whole case expenses/19w
项目类型丨Project/精装-全案设计+全案落地
创意设计总监丨Designer/姚秋智
项目位于福建福州晋安区,紧邻地铁2号线上洋站。北连晋安湖CBD,南接海峡金融街CBD,周边汇聚东二环泰禾广场、宜家综合体等成熟商圈,鼓山中心小学、榕博学校等教育资源密集,福建医科大学附属肿瘤医院等医疗配套完善。毗邻晋安湖公园、牛岗山公园等生态绿地,兼具宜居性与发展潜力。
原户型是四房两厅两卫的精装房,适配多人口家庭。动静分区明确,隐私性佳、公共空间开阔,互动性强、动线设计较为合理,效率高。卧室尺度需要通过软装设计和定制家具来提升空间利用率;收纳规划需要解决多人口收纳的需求。
本案三世同堂,需保留四房,充实收纳,核心是需要解决一狗一猫的舒适居住需求,打造独立的宠物动线,将人宠动线分离(增设狗屋和猫屋与800库收纳),同时整体能打造成为温馨舒适的空间氛围。
玄关设立800库,独立的收纳空间可以解决家里大部分的收纳需求,避免因为储物不足而使家庭凌乱;强化归家仪式感,解决入户穿堂煞的风水问题。
宠物也是家庭的一份子,我们在800库后划分一个独立的猫狗之家,设计了一条专属于猫狗的动线,实现人宠动线分离,半封闭的空间也优化了宠物带来的异味问题。
主卧设计了地台床,优化空间布局,带来了空间的层次感,桌面更能满足办公/学习/梳妆的需求。
老人房为了保证进门视野的开阔性,我们增加衣柜的同时设立通透的净衣区,满足收纳需求,同时也给未来留下充足的收纳空间。
蒙氏儿童房最大限度的打造一个安全、可自由探索的环境,激发孩子学习自驱力,可随着孩子的成长,适配孩子不同年龄阶段的多样化灵活的需求。
收纳体系分配:玄关处800库提供模块化收纳,主卧衣帽间实现换季储物分离,客厅的收纳柜利用垂直空间,洗衣房整合日常洗晒与现代化设备,系统化的储物设计提升了空间效率与整洁度。玄关800库、猫柜与宠物收纳、独立洗衣房收纳、主卧步入式衣帽间+收纳分离,实现 “全屋无死角收纳”,解决三代同堂的储物痛点。
全明空间+分层强化:公区无死角采光形成了横厅级采光面,玄关通过隔断衔接公区,避免入户昏暗又实现风水优化,客餐一体化结合大面积推拉窗,最大化引入自然风光与通风;分区设计确保各空间独立采光、空气对流与定向通风,提升整体舒适性与通透感,实现 “采光无死角、通风全贯通”。
进门即是清新自然的家居氛围
弧形玄关柔和过渡,避免直视
巧妙地化解了风水顾虑,更实现双向通透观景
玄关移门的背后竟藏着一个800库(可作为入户鞋服间),归家仪式感拉满
客餐厅以极简笔触勾勒轮廓
弧形天花柔和淡化承重梁,空间更显开阔通透
过道一侧云石壁灯点缀,光影轻漾,静添一抹诗意氛围
地台床巧妙扩容,极限压榨空间
定制桌造型独特,床头柜功能内嵌其中
步入式衣帽间与附加储物柜相配合
卧室收纳充裕、分离,空间利落、整洁有序
大地色调的卧室氛围更显雅致与沉静
贴心设立了方便长辈使用的独立净衣区
衣物收纳井然有序,取放便捷更显从容
整体为温润质感,为每一天带来安宁与舒适
绿色系次卧作为儿童长大后的预留空间
超大衣橱收纳与书桌设计
满足孩子未来日常读书学习的需求
阳台打造满墙家政收纳,高效归置琐碎
移门轻隔,将生活阳台的杂乱悄然隐于身后
与萌宠专属小屋连接,独立与温情并存
井然有序中亦见家的温暖
左滑查看更多
设计单位 | Design Company/ 红瓦设计
施工单位 | Construction Company/ 红柱精工
深化表现团队| Deepen Visual Expression/魔方深化团队
策划编辑 | Editor/ 见南风
软装陈设丨Soft furnishings/平日里丨家居软装全案
整木定制丨Walking Mountains Wood/与山行丨整木高定
识别添加客服有礼
▲实景作品 | 闲庭观云
▲实景作品 | 隅檀
▲实景作品 | 简木暖居
▲实景作品 | 左岸巴黎
▲实景作品 | 江畔逸境
▲实景作品 | 半糖暖居拾光
▲实景作品 | 光语栖岸
▲实景作品 | 焦糖城堡
▲实景作品 | 晨光暖意融
▲实景作品 | 晨光暖意融
▲实景作品 | 晚风拂星辰
▲实景作品 | 初晓见如风
▲实景作品 | 观自在云来去
▲实景作品 | 一江秋月照人明
▲实景作品 | 云卷云舒任流年
▲商业实景 | 凡萃咖啡x赴一场春日邀约
▲点击上方,关注我们了解更多详细内容

















