
1、百家湖新添3栋高层住宅!刚刚阳光城G62地块规划出炉
2、栖云府!中铁禄口G98项目备案名曝光!
3、龙湖天街来了!雨山路G115规划出炉,拟建20栋住宅
4、刚刚,六合宝龙G98地块规划出炉!区域将添新地标!

百家湖新添3栋高层住宅!
刚刚阳光城G62地块规划出炉
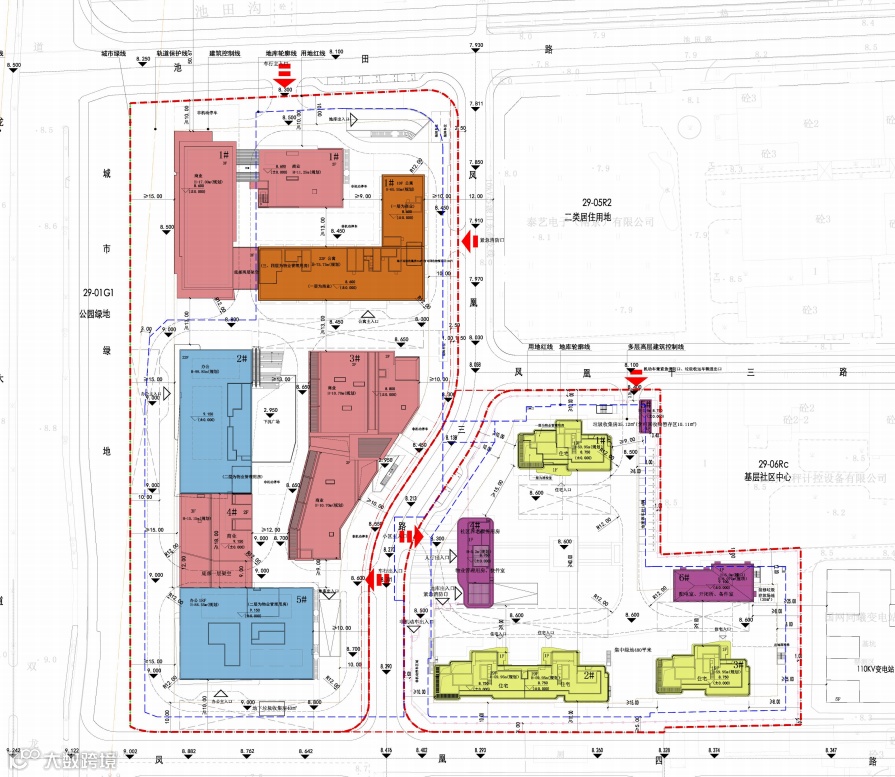
近日,江宁人民政府官网发布了阳光城百家湖G62地块的规划设计方案。据规划显示,项目将拟建栋3栋19F高层住宅、2栋高层办公、1栋高层公寓、商业以及相关配套。

百家湖G62地块南至凤凰四路,西至双龙大道,北至池田路,是百家湖中心区非常稀缺的住宅类用地,也是是近年来推出的距离百家湖湖岸线最近的住宅地块。
去年9月24日,百家湖G62地块出乎意料的是,仅一轮竞价被福建阳光房地产开发有限公司(阳光城)以底价9.3亿竞得,成交楼面价8218元/㎡,毛坯限价3.4万/㎡!

根据规划,项目分为A、B两个地块打造,其中A地块打造2栋高层办公、1栋高层公寓、商业等相关配套;B地块打造2栋19F的高层住宅以及相关配套。

项目效果图:




根据之前的实探,项目大型打桩机器也已进场,正在紧锣密鼓的施工中。
施工现场实景图▼

值得一提的是,项目西侧有白龙广场公交站台,对面即是江宁会展中心、以及白龙广场、凤凰广场,与其仅一路之隔。

凤凰广场实景图▼

不仅如此,项目周边还有江宁金鹰、景枫KINGMO、以及21世纪太阳城、百家湖1912商业街区等商业综合体;还有胜太路站、百家湖站双站地铁,公共生活配套资源、自然景观资源都十分优越。

阳光城G62项目北侧对面就是湖东音乐苑与艺术家园等次新房小区,总体来看周边居住氛围比较浓厚。


而且根据地块北侧的路标指示牌显示,周边有南京爱立信熊猫通信、泰艺电子等公司、以及金钟音乐学院、维也纳酒店等。


栖云府!
刚刚中铁禄口G98项目备案名曝光!
近日,江宁区人民政府官网发布关于同意"栖云府"地名命名的批复。据文件上显示,中铁禄口G98项目备案名正式定为:“栖云府”!


NO.2020G98地块位于江宁区空港新城义庆路以北、朝阳路以西。
2020年12月17日,禄口G98地块,竞价120秒16轮就火速触顶最高限价;被中国铁建以总价4.55亿元竞得,成交楼面价9593.6元/㎡。

项目规划总建筑面积约6.59万平方米,其中地上建筑面积约7.74万平方米,地下建筑面积约1.85万平方米。项目拟建7栋18F高层住宅及相关配套设施。
总规划设计图:

项目效果图:




近日,南京市规划和自然资源官网发布了龙湖雨山路G115地块的规划设计方案。
据规划显示,项目将拟建栋20栋8-11F小高层、3栋公寓、龙湖天街商业以及相关配套。

今年1月份,2020G115地块经过五轮竞价,最终由重庆龙湖企业拓展有限公司(龙湖)竞得,楼面价8572元/㎡,总价26.4亿!

根据规划,项目分为A、B两个地块打造,其中A地块打造20栋8-11F的小高层住宅以及相关配套;B地块3栋公寓、龙湖天街商业等相关配套。
项目毗邻求雨山文化休闲综合片区,紧邻求雨山公园和兰溪公园,自然资源丰富。商办混合用地分区为地铁10号线雨山路站地铁上盖商业综合体,将打造区域内的商业配套中心和社区生活中心,住宅地块分区东侧为教育用地,公共生活配套十分完善。
而且周边有融创臻园、北江锦城等多个建成小区,位于该地块南侧的保利云禧和中海原山都已于去年收官,周边人居氛围成熟。


龙湖G115地块东北侧就是雨山路板块北花园路中小学,拟建6轨36班小学一所,8轨24班中学一所,并且该项目已于今年10月31日施工,预计2022年4月30日竣工,计划总投资约3.89亿元,总占地面积约94亩,总建筑面积约45740平。
据官方消息显示,该项目正在建设中,预计2022年4月30日竣工,将引进市、区优质教育资源,具体招生办法及学区划分待项目竣工后公布。


刚刚,六合宝龙G98地块规划出炉!
区域将添新地标!
刚刚,六合人民政府官网公示了2020G98地块(AB分区)的规划设计方案。根据规划,项目将拟建商业体量9万方,打造集购物、餐饮、休闲、娱乐于一体的商业综合体。
去年12月,六合G89商住混合地块,被宝龙以15.1亿拿下,楼面价5665元/㎡。
根据规划设计方案,项目分为ABCDE分区地块打造,其中,A分区规划建设1幢高层办公楼和1幢商业裙房及地下商业和车库等相关配套设施。B分区利用绿化地下空间,建设两层地下室(负一层为商业和停车场,负二层为停车场)。
A、B分区设计图:

A、B分区效果图:

此前,项目CDE分区规划已于今年3月份出炉,共规划打造了14栋高层住宅,项目由宝龙、旭辉、金地商置、海伦堡联合打造,住宅部分毛坯销售限价19800元/㎡。


