
注意了!禄口两大纯新盘传来新动态!
刚刚,下关城开禄口G01、碧桂园禄口G02地块规划齐出炉,板块将再添15栋高层住宅。


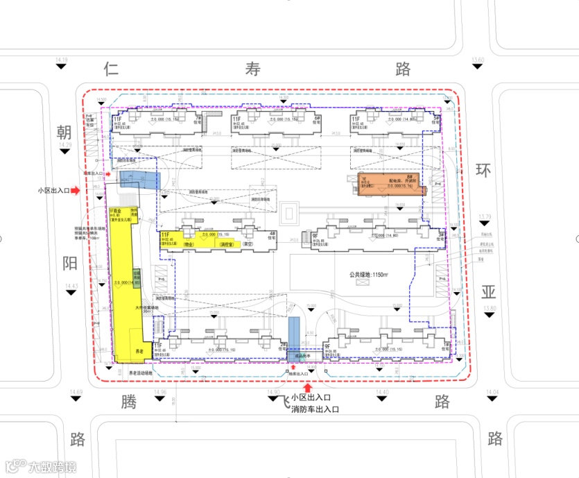
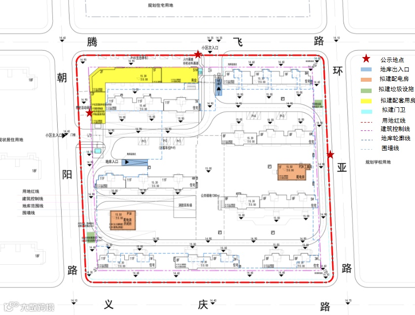
总规划设计图:

项目效果图:



NO.2021G02地块位于南京市江宁区空港开发区义庆路以北、朝阳路以东。
2021年2月25日,禄口G02地块,被碧桂园以3.95亿元竞得,成交楼面价为10261元/㎡,毛坯限价17500元/㎡。


项目效果图:



目前区域内房源比较充足,有恒大林溪郡、中骏融信雍景台、云溪璟园、红豆香江华庭、奥园金基天著尚居等10家楼盘在售。
除了外,禄口未来供货量巨大,分别是红豆香江华府、碧桂园·星语海、中铁栖云府、以及巨无霸”项目——珠江·四季悦城(禄口G104地块、G105地块、G96地块、G97地块、G98地块)。


碧桂园·星语海

中铁栖云府
中铁栖云府前身是禄口G98地块,2020年12月17日被中国铁建以总价4.55亿元竞得,成交楼面价9593.6元/㎡。
根据规划,项目拟建7栋18F高层住宅及相关配套设施。

珠江·四季悦城
禄口G96地块:2019年12月19日,被南京西部路桥集团有限公司以底价拿下,楼面价6884元/㎡。
禄口G97地块:2019年12月19日,被南京乐临商业管理有限公司底价拿下,楼面价9318元/㎡。
禄口G98地块:2019年12月19日,被南京惠宁市政建设服务集团有限公司以总价3.35亿元竞得,成交楼面价为9591元/㎡。
禄口G104:2019年12月31日,被南京市江宁区保障房建设发展有限公司以总价10.5亿元竞得,成交楼面价为6746元/㎡。
禄口G105:2019年12月31日,被南京西部路桥集团有限公司以总价11.9亿元竞得,成交楼面价为6890元/㎡
江宁城建禄口G104项目备案名为“鼎瑞嘉苑”,拟建10栋18F高层住宅、6栋11F小高层住宅及相关配套设施。

禄口G104效果图
惠宁市政禄口G98项目备案名定为“悦鸣嘉苑”,将建设9栋11F住宅及社区配套用房。

2019年3月,全国第13座国家级临空经济示范区——南京临空经济示范区正式获批,禄口进入快速发展时期。

近段时间,禄口各项利好不断落实,商业、教育、医疗等配套也在不断升级。
交通上,区域坐拥S1号线,以及规划中的地铁18号线,周边还有机场高速、将军大道、宁丹大道、天禄大道以及机场西通道,交通便利。
而且去年4月份,《长江三角洲地区交通运输更高质量一体化发展规划》中,在过江跨海通道部分提到推进南京市域快线18号线建设。

江宁区第三医院效果图
商业上,区域未来将建设集商务办公、商业、公交场站、酒店、停车场等功能与一体的城市综合体,比如百利广场、森鲜集市、中南棉花塘商业综合体、多条风情商业街,满足了人们生活的日常所需。









