
拟建11栋高层住宅,刚刚,招商&南通瑞城G26地块规划、效果图曝光!
南京市规划和自然资源局公布了招商&南通瑞城G26项目的规划方案。据规划显示,项目将拟建11栋30-32F住宅以及相关配套。

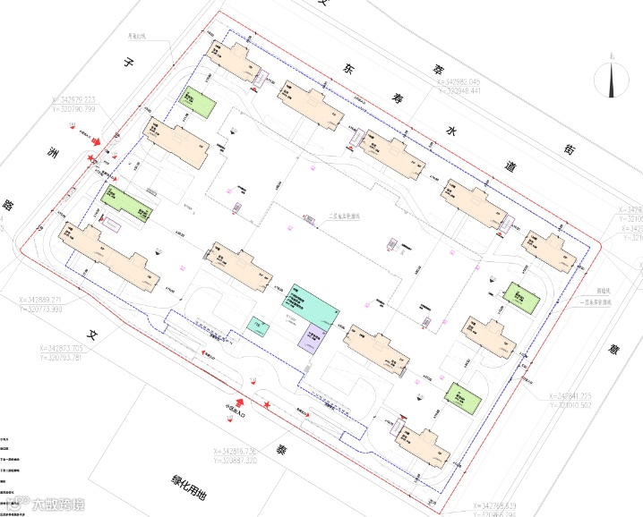
江心洲G26地块东至汇德路、西至梅子洲路、南至文泰街、北至文萃街,总用地面积为44750.21㎡。
今年5月份,江心洲G26地块被招商&南通瑞城以总价37.9亿元竞得,成交楼面价30247元/㎡,最高毛坯限价40783元/㎡!
项目规划总建筑面积约16.88万平方米,其中地上建筑面积约12.53万平方米,地下建筑面积约4.35万平方米。
根据规划,招商&南通瑞城G26地块共打造11栋30-32F的高层住宅以及相关配套。
G26地块,是江心洲的第一幅双限地块,未来全装修均价最高为42783元/㎡,哪怕加个2000元/㎡升级包,在整个江心洲来说还算是比较便宜的(除非加到5000元/㎡的包)。
璞境:前期均价49717.04元/㎡,装修包价格3500元/㎡;
仁恒江湾世纪:前期均价40863-55425元/㎡
G26地块位于江心洲岛南,与河西南隔江相望,可以看见河西地标建筑、南京眼步行桥,环境比较宜居。不过严格说起来,地块附近生活配套比较缺失。
地块旁便是在建中的金陵中学高中部。2018年,金陵中学新校区正式落户江心洲并启动建设,新校区为高中部,并属于直属高中,不设学区。
紧挨着金陵中学高中部的是仁恒两大楼盘——江湾时代、江湾世纪;与仁恒正对着的是青奥森林公园。
地块距离隧道口和五桥上桥口非常近,未来出行河西或者到江北新区,还是比较便利的。
2021年,江心洲全年将出让3幅地块,除了G26地块外,还有岛北的一幅低密度宅地(容积率只有1.8),和G26旁边的生态科技岛18-022地块。
生态科技岛18-022地块,R2二类居住用地,总用地面积2.93公顷,容积率≤2.5。该地块北侧的是生态科技岛三期安置房,预计2023年完工。
目前岛上房源并不多,荣盛江天瓴筑也基本售罄,剩余少量一层房源在售,销许均价4.78万/㎡。其余的就仁恒江湾时代、仁恒江湾世纪璞境。
仁恒江湾时代剩余几套底跃房源在售,建筑面积约190㎡-290㎡,销许均价4.8万/㎡,预计2022年10月底精装交付。
江湾时代花园的前身为国资G78地块,于去年11月被国资以总价13亿拿下,楼面地价28877元/㎡。项目将由国资与仁恒联合开发,由仁恒操盘。
根据设计方案显示,国资江心洲G78地块将打造8栋低密度洋房,层高8-9层,另有2栋1层配电房。
仁恒江湾世纪预计下半年加推叠墅产品,建筑面积约300-400㎡,具体加推时间待定。
仁恒江湾世纪前身是江心洲NO.2016G84地块,在2016年12月27日的土拍中,被仁恒以78.4亿元拿下规划将打造低密度住宅,还有中新生态科技岛文化旅游度假区,包括海洋馆等配套。
璞境预计近期加推最后2栋楼,即2、3#楼,户型建筑面积约143㎡、166㎡,前期销许均价49987元/㎡,有3500元/㎡升级装修包可选。
璞境共打造了6栋住宅,整体楼栋采用了南偏东10°的设计,建筑立面融合灰色铝板、石材、玻璃,拥有高级灰的视觉感。
在室内装修则采用了德系精工,五大科技系统(水暖、中央空调、新风、净水、智能家居),选用了高仪、杜拉维特、西门子、菲斯曼、大金等众多国际一线品牌。
项目自带会所,主要主要功能有恒温泳池、健身、瑜伽、私宴厅、下沉式庭院组成。在交付后一层为物业管家的服务空间、负一层为璞心会的私属尊享空间。
拿地仅一个半月,招商&南通瑞城G26地块规划就已出炉,未来项目将会给我们什么样的产品,让我们拭目以待吧!






