
最新!溧水城南又一重磅新盘又传来动态!
拟建10栋高层住宅,刚刚万科G11地块规划出炉!
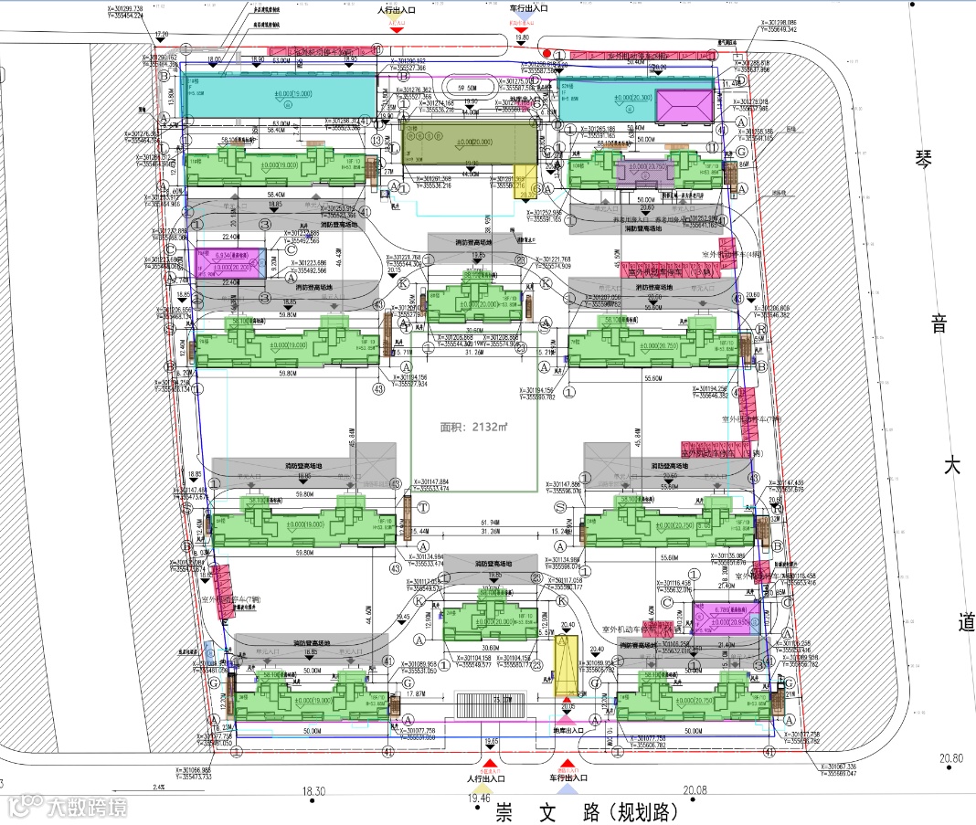
近日,溧水区人民政府网站发布了NO.溧水2021G11地块规划设计方案公示。

溧水G11地块位于南京市溧水区体育公园路以南,琴音大道以西
今年5月22日,溧水G11地块被万科以总价6.978亿元竞得,成交楼面价7617元/㎡,毛坯限价14850元/㎡。

据文件显示,项目占地面积约45805.82㎡,总建筑面积约123525.8㎡,其中地上建筑面积约91611.64㎡,地下建筑面积约31914.16㎡。
根据规划,项目共拟建10栋18F高层住宅、2栋商业以及相关配套。

项目效果图:


商业效果图:

周边有今年5月份刚刚出让的金地商置G08、德信G09、香港置地G10地块,其中德信G09已出规划已出。
除此之外,目前区域内有北大资源颐和翡翠府、三金中粮祥云、佳兆业悦峰府,颐居朗诗紫熙府、弘阳美的昕悦尚宸苑以及纯新盘天安云镜等项目在售,溧水城南新房房源充足。


北大资源颐和翡翠府计划在今年下半年推出一期最后的2栋高层和2栋叠墅,共计246套房源。其中,墅区装修高层房源共计198套,户型建面约128、144㎡,前期均价约15600元/㎡,

佳兆业悦峰府在售带装修房源,户型建筑面积约95、105、110、125、129、140㎡,销许均价约15400元/㎡。

颐居朗诗紫熙府

三金中粮祥云



南京空港会展小镇效果图
在楼市方面,2015年前,溧水几乎没有品牌房企,多是不知名小开发商。而且随着各项利好的不断落实,溧水的楼市也迈向了新的台阶,大牌开发商不断进驻。
除了之前已经进驻的有建发、朗诗、佳兆业、万科、万达、建发、景枫、北大资源的房企外,今年又迎来了香港置地、金地商置等品牌房企,格局大变。

其中,万科城棕榈苑二手房均价为16800元/㎡、蓝湖西岸二手房均价15548元/㎡。就连安置房幸福佳苑的二手房价格都在1.2万左右。


而且根据二手房价格走势整体来看,区域二手房成交价格稳定。

写在最后:
从价格方面来看,目前城南板块新房均价在1.5万/㎡左右,而且区域内楼盘加推,市场反应还算不错,从整体市场来看,已然形成了供需两旺的市场格局。
同时,今年出让的万科溧水G11等四幅地块毛坯均价14850元/㎡,入市后或使城南楼市迎来新的格局。
而万科溧水G11地块又将会给溧水市场带来什么样的住宅产品,我们拭目以待。








