
10.1假期过完了,上班伊始!南京房媒不约而同开始狂喷金九!各种“金九没了”、“金九沉寂”等类似论调刷屏网络!
其实南京楼市的金九还是有可喜的一面!根据南京网上房地产的数据,9月份南京全市共认购商品住宅5362套。
这项数据相比7月份新房认购量5268套,8月份新房认购量5226套,金九认购量还是出现了小幅上扬,但对比成交量而言,南京9月的新房成交下跌还是比较明显。
根据网上房地产数据,9月南京全市新建商品住宅成交量4053套,这项数据对比8月4841套的新房成交量出现了16%的下跌!下跌幅度“狠”!
二手房方面下跌也很明显,9月南京二手房成交6757套,环比8月份的7552套,下跌幅度达到10%!这已经是自7月以来,南京二手房成交量的两度下跌!
这样的跌幅,难免让最为关心南京楼市行情走势的南京房媒人在感情层面难以接受,继而有人开始发布了,南京楼市四季度行情持续下探的“危机论”。
大致意思就是对比9月底南京新房的最新库存量和二手房挂牌量,国庆长假后,两项数据都有增加,其中,新房库存量一周增加了近500套,二手房挂牌量增长超过7000套。

目前南京楼市新房库存情况,来源:网房
如此“天量增长”,“去化乏力”,让南京楼市陷入“两头挨堵”的尴尬局面,于是有人扬言,“预计今年四季度末,南京新房库存量将超过8万套,二手房挂牌量将超20万套。”
如今楼市,唱衰谁都会!但无论盛衰,房地产仍然必须发展下去,毕竟这是一个占据国内GDP7%以上的支柱型行业!既然要发展,压力自然会传导到四季度,尤其是被视作传统旺季的“银十”。
今年9月,南京楼市共有50家楼盘开盘,其中摇号盘只有5家,新盘摇号率仅为10%,其中中签中签率最低的河西南嘉华嘉璟峰,中签率仅为20.55%,其余4盘中签率均在45%以上,两人选一套房成为南京常态,千人摇号行情一去不复返!
在此行情背景下,10月被已于厚望,10.1黄金周南京楼市行情被曝出,听说情况还比较喜人!
有媒体透露相关数据,说是南京7天卖了2000套房!超过了2017年的水平,加之国庆前央行7年来首次下调住房公积金贷款利率(10月9日南京已经宣布执行),居民1年内换房可享个税退税优惠。
诸多利好影响之下,似乎让人看到了楼市回暖的曙光!然而,南京楼市的10月也确实比较给力!目前能确定开盘的楼盘已经多达24家,其中重磅纯新盘多达17家,开年以来盛传上市的“压轴角色”都将在这个月真正与购房者见面。
比如河西南的深业南湾上府、金基中北朗樾府;江心洲“三剑客”奥体建设江尚紫薇、水沐和瑞园、星叶栖悦湾;城南小行的万科朗拾;大校场奥体建设云尚紫薇、琥珀云台;城北尧化门的高科紫尧星苑等等。
似乎南京楼市全年最重磅的戏码都集中在了这一个月!
也许是因为加快上市步伐,筹备银十旺季的销售盛宴,10.1假期之后的首个工作周,不少重磅纯新盘已经接踵亮相!
接续金基中北朗樾府、中海和山等重磅新盘之后,江心洲三剑客之一的星叶栖悦湾也传来了近期即将公开的消息,据悉该项目即将于10月中旬公开售楼处及样板间,随后首开,大量项目图片曝光!
作为今年栖霞建设三大重磅新盘之一,星叶栖悦湾可谓未开先热,原因有三!
第一:项目是国企开发,在这个国央企当道的时代,关注度不言而喻!
第二:项目是洲岛之上的又一座科技住宅
第三:项目户型面积段为119-157㎡,起步户型目前是江心洲三大纯新盘之中最小的一个,总价自然最低!
其实星叶栖悦湾也算是一个“反高周转”的品质型项目,项目坐落地块江心洲G118为去年第三次土拍经过8轮竞价被栖霞建设以15.4亿元拿下,拿地至今已经将近1年。而与其同期出让地块,譬如颐和云台源筑(河西南G114),金鼎湾和禧(河西南G113)纷纷接近尾盘。
星叶栖悦湾位于建邺区江心洲街道文泰街以北、汇德路以东,东邻规划高中,南至文泰街,西至汇德路,北隔东寿水道至文萃街,距离10月15日即将出让的中新大道以东、文萃街以北地块22-007;中新大道以东、文泰街以北地块22-013两幅地块几乎仅一街之隔!
星叶栖悦湾规划5栋17F-26F、共约380套科技住宅,规模并不大!

星叶栖悦湾效果图
结合江心洲优美的洲岛风景,星叶栖悦湾打造的全新的科技人居住宅,项目融入前沿智慧科技,包括有户式空气源热泵系统、毛细管顶棚辐射系统、户式新风系统、智慧控制系统,实现温度恒定、湿度适宜、过滤噪音、净化空气等全维度绿色健康人居。

随之星叶栖悦湾的众多项目细节图曝光。

跨度约51米的气派社区大门

高窗墙比加弧线元素的建筑立面造型

颇具仪式感的社区景观,据说包含5大景观组团
星叶栖悦湾的三大户型及样板间效果图也随之曝光:

建面约119㎡ 三房两厅两卫,星叶栖悦湾的这款户型被誉为江心洲上少见的小三房户型,目前已经是洲岛之上的新房入手门槛!


119㎡户型样板间效果图
该户型虽然面积小巧,但功能性却很强大!三开间朝南,南向双阳台各种流行元素,一样也不少!

138㎡三房两厅两卫

138㎡样板间效果图
可以从户型样板间效果图中看出,在设计方面星叶栖悦湾也植入了不少时下流行元素,比如客厅沙发背后的“X”空间,可以由业主自由安排设计,做成书房、茶室、开放式空间的等等,这种设计在纯新盘万科朗拾、中海和山中都曾出现!

157㎡四房两厅两卫
星悦栖悦湾最大的一款户型:157㎡四房两厅两卫非常有特点,该户型做到了4开间朝南,其中三间卧室均朝南,此外南向的跑道式阳台;联通了客厅和两间次卧,这种设计在市场上并不多见!
157㎡户型只存在于两栋17F的小高层中!
星叶栖悦湾毛坯限价42200元/㎡,预计未来首开价格(含包)48000元/㎡左右,亦算是江心洲单价较低的新房项目。
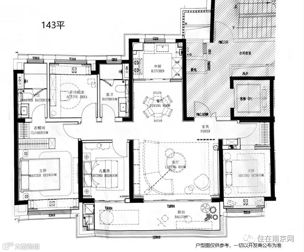
河西楼市,如今就是强速度的时代,10.1国庆长假刚刚官宣案名的河西中纯新盘越秀·和樾府,仅仅过去6天就加紧发布了项目户型,户型建面143、175㎡,“全系四房”,两梯两户,靶向城市中产改善人群。
网友戏称,隔着屏幕都能感受到越秀·和樾府“即将首开”的气息!
要知道越秀·和樾府为今年7月12日,南京第二次集中土拍刚刚拿地的项目!真正走出了“一个月拿地,两个月出规划,三个月开盘”的市场节奏!

那么,广州越秀此次首进南京主城,抢滩河西,两款户型做得如何?一起来看下!


175㎡4房2厅3卫
越秀·和樾府的这款175㎡4房2厅3卫户型设计则更有亮点,主卧除了套房式设计,还植入了270度(约4+4米)全视角飘窗,面宽达约6.2米的大横厅,约8.4米的南向双阳台,活动区的LDKB一体化,东西双套房设计,相信未来开售之后,这款户型会让终极改善客群眼前一亮!
据最新消息,越秀·和樾府最快预计也将于10月中旬公开售楼处!按照6.3万元/㎡的放风价,总价预计900万起。
同时以河西大街、软件大道高架为起点,往西经河西大街,2.4km直通元通商圈,华采天地、国金中心IFC、河西德基、可为未来居民提供“都会级”生活氛围;
写在最后:
“银十开盘潮”已经箭在弦上,各大重量级新盘项目已经纷纷摩拳擦掌,亟待上市,期待市场的检验,究竟银十,南京楼市将是怎样一番的热闹场面,还请拭目以待!
相关图片来源:拼房帝、河西楼市,侵删

