

项目地址:河南郑州
设计单位:河南鼎合建筑装饰设计工程有限公司
设计主创:孙华锋刘世尧
设计团队:孔仲迅李春才安红云
设计时间:2012年5月
竣工时间:2013年3月
项目面积:1400平方米
主要材料:风化木木地板白漆红砖波纹钢板
摄 影:孙华锋


设计师将院落的自然景观与室内相融,减少室内不必要的装饰,让灯光与陈设唱主角。设计师用传统的黑白灰色调,用现代工业的40尺集装箱的概念,营造有创意的办公氛围。

室内外灰空间

接待台

入口
原本担心工业感的外观与庭院景观会有冲突,但实际建筑的形式与自然环境相得益彰,也更加国际化。庭院的设计也基本遵循传统的手法。室内有大面积的开窗,人们在办公的同时可以欣赏室外的景观。室内多用老榆木的底料,给人以自然、朴实、亲切之感。二层工作区则有橘红色日光灯带贯穿四个开间。合理的造价分配,减轻了装修的负担。设计师最大限度地让阳光和自然融入建筑空间,营造了清新自然的办公氛围。

庭院接洽室

庭院接洽室

二层工作区

二层工作区临窗

公共研讨区

办公室

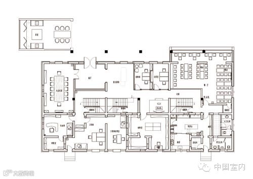
一层平面图

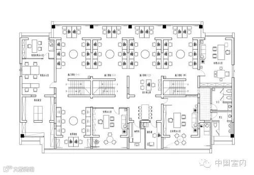
二层平面图
来源:中国建筑学会室内设计分会(CIID)
《中国室内》第86期
您想与全国的一线设计师们分享更多《中国室内》的精彩内容吗?只要加入中国建筑学会室内设计分会,您就会免费获赠中国室内设计界唯一的学术性内部刊物,回复“入会”获取加入CIID的方法,咨询电话:010-88356044


