
高雄简历
高雄,中国建筑学会室内设计分会会员,道和设计机构创始人、总经理、设计总监,2013年荣获“中国五十位优秀青年室内设计师”。
代表作品:成都金牛万达食彩餐厅、菁皇茗茶、宁德万达望江南餐厅、石艺汇
高雄谈设计
伴随民族意识的复苏,“新中式”粉墨登场。中式风格被赋予了浓重的人文色彩并加以渲染,装饰元素层出不穷,不乏动物、人物甚至是灵兽、佛理,有些取其谐音、有些取其神貌,左不过是与意境相辅相成。也似从某种层面上勾勒出古往今来的禅宗思想,这亦是一种态度!“新中式”同样不是纯粹的元素堆砌,亦并非完全意义上的复古明清,而是通过中式风格的特征,表达对清雅含蓄、端庄丰华的东方式精神境界的追求,重视以现代人的审美需求来打造富有传统韵味的事务让传统艺术令后世熟于心,之于设计,之于东方。
高雄访谈
提问:在过去的五年里,发生在你身上最大的改变是什么?
高雄:过去的五年里,最大的改变无疑是创立了自己的公司。在这三年的公司创立初期,遇到了各式各样的考验和学习机会,由最初的个体思维逐步成为现在多元化的思想转换。从初期重视设计感的传达,到如今更愿意去了解设计之于商业中的价值。着重的根本在于如何让设计自身更加柔和地融入商业,同时得到了很多专业上的肯定。
提问:在未来的五年里,你的人生规划是什么?(包括职业、家庭等各个方面)
高雄:平和的人谈到人生规划,首先想到的词应该是“维持”。与其说是人生规划,更直接的说法就是做好自己。做个可以维持平衡的人,平衡自己的家庭,平衡自己的团队协作关系,平衡自己的专业技艺。在“维持”的基础上做好每一件事情,在开拓中把握机遇。相信严于律己所能得到的收获,远远超过预定计划所带来的动力和成就。现在无法断言自己五年后会有怎样显著的变化,但可以肯定的是我会继续带着自己的团队在设计领域里开辟新思路,在设计与文化特色的有机结合中产出更多脱颖而出且符合市场经济的好作品。
提问:对于你今天取得的成绩,有什么心得可以分享?
高雄:入行十余载创立了自己的公司,遇到了各式各样的考验和学习机会,深知装饰设计是一门综合艺术,与其它艺术门类一样,所涉及面较广,因此对设计者的知识需求也相应提高。时代变化造就了社会对视觉艺术的需求越来越高,而设计者不仅仅是通过书面或媒体得到资讯,更应该是迈开步伐、放眼世界,认识和更新观念。设计师所能做的是除了设计方案以外的信息分析与收集,让设计师在市场中的生存力不仅仅是做视觉传达这么简单,更多的是设计师为市场所带来的推动力。
提问:你的生活是什么样子的?工作和生活是什么关系?
高雄:很多人在事业努力的同时往往会忽略生活本该有的惬意,而本人对工作与生活的关系却有不同的看法。首先就设计而言,设计的感悟纯是由生活中的处处细节所得,不懂享受生活的人又怎能领会设计的魅力和价值。反向思考,除了基本的生活琐事外,更愿意走出自己的生活圈子,接触新鲜的人文环境,开拓视野。将平和与自然融入设计中,让设计成为一种享受,而不是吸金的手段。
提问:你如何给自己减压?
高雄:首先我们应该明白压力的来源,压力的产生无非是因事态不随人所愿。其实最好的减压方式就是让不随人愿的事情暂告一段落,不是逃避,而是平复心情后有足够的能量来面对。若说必须要做件什么事情来转移自己的思维,我会选择较为平和的方式。例如书画,在挥笔行云流水间调养生息,配上一壶清茶,小憩之后重拾动力。
提问:如果不考虑可实施性,你最想做的事情是什么?
高雄:想兼职成为一名生活体验师,接触各色的人文环境,并融入它们。将亲身感受用设计这样的视觉媒介与人们分享。这想法中的重点不在于向往不一样的生活,而是重在“分享”二字。可以主动融入他人的生活,再将这种感受以第一人称的方式分享给下一个群体,缩小文化带来的差异是我所向往的。
高雄设计作品展示
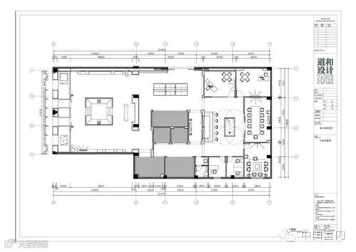
1.石艺汇
项目面积:460㎡
主要用材:黑钛、槽钢、复合石材、方管、木面烤漆、枫木饰面板、硅藻泥

人们在这日趋繁忙的生活中,渴望得到一种能彻底放松、以简洁和纯净来调节转换精神的空间,这是人们在互补意识支配下,所产生的亟欲摆脱繁琐、复杂、追求简单和自然的心理。


本方案为大理石复合板展厅,从其产品的性能特点引入设计思维,为使产品展示全面化并贴合生活,这次的设计中“简约”成为了设计的中心词汇,应用了“面”的区分法,利用黑钛、槽钢、方管、木面烤漆等,将门头及大厅展示墙立体化,即抛开原始的墙面展示,也不采用古板的层架展示,从而更精致的表达产品本身,给人以干净、硬朗的感受;独具匠心的过桥入户水系景观设计,打造“小桥流水人家”的倾心体验。此间应用到了下沉式的方形接待区,另空间赋有层次感;更利用圆形天景引入自然采光,与下沉位置相互呼应,无规矩不成方圆亦是设计精髓所在。



平面施工图
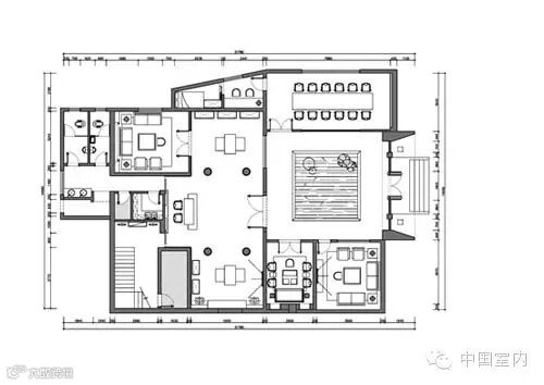
2.熹茗会武夷山店
建筑面积:500㎡
主要材料:白色真石漆、白色烤漆玻璃、水曲柳木饰面染咖色、蒙古黑火烧石

熹茗茶室以现代的格调,融合提炼出的经典中式元素,塑造了一个时尚与文化雅兴并存的雅致空间。空间铺陈灰色仿古砖、刷白的墙面、深色的家具摆设,沉稳的白、灰搭配透露着干净、利落。

空间分割为上下两层,下层主要作为商品的展示空间,上层则是包厢可供客人品茶聊天。开放式的中庭与天相接,透着一抹辽阔感。清淡的简单装修搭配精心挑选的装饰、家具,细节中也饱含创意。茶品的陈列十分讲究,巧妙的配搭让商品看起来更像是艺术品。外观以中式园林透景的手法打造,树木、漏窗,形成独特的风景线,使空间流通、视觉流畅,因而隔而不绝,在空间上起互相渗透的作用。透过漏窗,树枝迷离摇曳,小楼远眺,造就了幽深宽广的空间境界和意趣。品茶是一件让人舒心惬意之事,在熹茗茶室素雅、自然的环境里一杯清香四溢的好茶让人难以忘怀。




一楼平面图
来源:中国建筑学会室内设计分会(CIID)


