
李明简历
李明,中国建筑学会室内设计分会 会员, 上海市全筑建筑装饰集团股份有限公司 第一设计所所长,2013年荣获“中国五十位优秀青年室内设计师”。
代表作品:龙城优山美郡售楼处及样板房 、张家港国泰润园售楼处及样板房、新疆世界公元项目售楼处及样板房、海门翠湖天地售楼处及样板房、常熟尚湖江南府售楼处及样板房、姚记御江湾样板房、南宁大河文化博物馆、 武汉温莎半岛别墅样板房、复地复城国际别墅、汤臣一品公寓、南郊别墅、复地北桥城、西郊庄园、华府天地、华润南通、扬州样板房、张家港国泰润园 、宜兴东氿一号样板房、南京栖霞区商务办公大楼、长三角创新园区富华大厦、张家港国泰商务大厦、威芯视讯上海办公室
李明谈设计

要做一个正确的、好的设计,对设计师本身的要求是非常高的,各种相关学科的基础知识到自身的文化素养、社会学、沟通与交流甚至新科技运用等。从一开始的简单认识到现在越来越复杂的认识,有时候甚至觉得自己是个“局外人”。从“中国馆”可以看到这个行业没有“对与错”从很多“为了设计而设计”式的室内设计,可以看到这个行业没有“丑与美”接下来这个行业要往哪个方向发展或者又流行什么,对我来说已经不重要了,我觉得,普及和提高民众对这个行业的认识和了解才是最重要的,这个行业还是应该走到文化中去,人们可以完全按照自己的理解去安排自己的生活,也许不经意间出现的一个让人感动的场景就是“室内设计”。
李明访谈
提问:在过去的五年里,发生在你身上最大的改变是什么?
李明:时间让我们无法体会到它的存在, 五年前也许是昨天,也许是过去。体验客户的生活轨迹,创造出属于客户自己的空间,抹去设计师的痕迹,体会到设计的本身是“无设计”。
提问:在未来的五年里,你的人生规划是什么?(包括职业、家庭等各个方面)
李明:希望自己的人生节奏能慢下来,有更多的时间和客人交流、沟通、挖掘出客户内心的那个“理想国”。
提问:对于你今天取得的成绩,有什么心得可以分享?
李明:只能说生于七十年代而且还坚持在第一线的设计师越来越少,如果有成绩也只能是对坚持的一种肯定,这个行业既要有斯塔克,也许要有“我”这个“ 我”代表的是广大基层艺术工作者,不一定要成为“名师”但一定要做个“明师”。
提问:你如何给自己减压?
李明:“看书”可以进入别人的内心世界,收获更多的“无设计”心得,“写书法”可以让自己安静下来思考一些事情。
提问:如果不考虑可实施性,你最想做的事情是什么?
李明:用全部的时间去了解和探索创造了自己生命的这颗星球。
提问:目前为止,对你来说最遗憾的事情是什么?
李明:当懂的该怎么思考问题时发现自己浪费的时间太多了。当不知不觉走到这里时,只能寄希望于后知后觉了。
李明设计作品展示
1.乌鲁木齐世界公元售楼处
设计单位:上海市全筑建筑装饰设计公司
设计主创:李明
设计团队:巫超荣、林浩、赖恒伟
设计时间:2013年10月
竣工时间:预计2014年10月
项目面积:1500M2
主要材料:阿曼米黄、黑金花、麦哥利、定制铁艺、特殊玻璃、皮革等

该项目地处乌鲁木齐市一个相对已经比较成熟的居住社区,产品定位以年轻3口之家及准备用来当婚房的年轻白领为主,设计师希望该售楼处除了提供售楼功能外,要以展现企业全心打造一个年轻、高贵社区的意愿为主,加之全力打造的社区景观工程,让客户全方位体验到产品的性价比和产品的附加值。售楼处以延续建筑设计的现代英式风格为基础,但英式传统的特点,厚重、沉闷、木饰面等特点成为了这次设计最大的挑战及障碍,以产品的定位、购买的人群以及业主的意愿,都希望售楼处体现的明亮、现代高贵等特点。所以“十九世纪的英国建筑奇观之一的“水晶宫”成为了设计师重点研究对象,工业革命初期出现的建材,玻璃、铁艺等被重新诠释,融合ArtDec的装饰主义表现和传统英式标志性的设计元素等都被设计师重新以“再设计”的方式出现在空间里,一个明亮、高贵、时尚的”英式ArtDec”的空间一点点被刻画出来了。




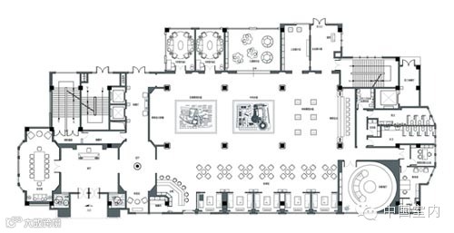
2.太原优山美郡售楼处
设计单位:上海市全筑建筑装饰设计公司
设计主创:李明
设计团队:沈磊、应懿纯、魏晓明
设计时间:2012年5月
竣工时间:2012年9月
项目面积:2000M2
主要材料:意大利木纹石、黄洞石、土耳其灰大理石、鸡翅木、壁纸等

文化与设计的融合一直是我们业界关注的话题,从文化的角度去谈室内、做室内、甚至去评价一个室内设计的好坏等等,被广大从业者和社会所认可。室内设计独特的语言和表达方式展现了文化的多元性和艺术的魅力。

我有幸参与了太原优山美郡项目的室内设计工作,也有幸遇到了室内设计师都想遇到的业主,使得我们在室内设计中有更多的空间和时间去挖掘和展示“新晋文化”的另一面。众所周知,售楼处在设计风格表达上相对比较自由,业主希望售楼处能体现“新晋商”文化的核心内涵,说到新晋商就要了解一下老一代“晋商”的文化了,为此,我们特参观了体现山西“晋商”文化的几个主要景区,秀气的乔家大院、霸气的王家大院和大气的常家大院、很难想象,几乎同一代的晋商建筑竟然给人的印象截然不同体验,可以见得“老晋商”不同家族的文化理念在建筑领域里的影响,共同的地方是老晋商建筑的都融合了南北文化、体现了那个时代的“开放”晋商得以闻名天下的“诚信”在空间语境中处处能够体验到。

回到我们项目上,把“开放、诚信”转换成设计语言成为了我们项目的关键点,首先说“开放”我们希望更多的体现在空间规划方面,为此我们把销控总台布置到了相对次要的地方,客人没有了拘束感,除3D影厅、员工办公区等特殊区域外,其余的空间尽量放开,视觉上不要有过多的遮挡,空间的表达上尽量干净、精确、平易近人。客户洽谈区的地面特别定制了舒适的地毯,地毯图案的选择也特别讲究,此外在空间中引用了两个特别的元素,“栓马桩和饮马槽”这是老一代晋商在招待客人时的细心之处,运用到我们的空间中则有传承老一代晋商理念的寓意,从功能来看,入口的九个“栓马桩”和天花下垂的吊灯,形成了一个虚拟的玄关空间,让客人进来后可稍且驻足。“饮马槽”则和山西大院常见的一种建材“猫头瓦”组成了空间中唯一的写实水景“滴水水景”。温暖、明亮、干净的空间主色调赋予空间足够的亲和力。

相对与“开放”来说,想要在空间中表达“诚信”就没那么容易了,最能代表晋商最辉煌的年代的两件“证物”是“算盘”和“铭章”。也是象征“诚信”的“证物”。“铭章”恰如其分的被诠释成了搜楼中心主背景墙的LOGO标识。“算盘”经过再设计和变异,成了空间的关键元素,多次被利用,算盘本身结构上独特的韵律和变化被多次夸大和深化,如在活动隔墙和主沙盘上方调空区的方案上呈现截然不同的效果,老晋商大院文化的代表元素也巧妙的出现在空间中,丰富了空间的层次感。



来源:中国建筑学会室内设计分会(CIID)


