
许建国简历
许建国,中国建筑学会室内设计分会 会员,合肥许建国建筑室内装饰设计有限公司 创始人及设计主持,2013年荣获“中国五十位优秀青年室内设计师”。
代表作品:北大书吧、意兰亭、梅林阁、祥和百年酒店、寿州饭店、观茶天下、老龚家宴、科隆巴赫音乐餐厅。
许建国谈设计
我的设计理念就是尊重材质反璞归真,别用太多固定化的思想固定你的思维,其实这么多年我对设计的想法源自事物的本真,比如最初的时候我们对材质的了解极其缺乏,导致我们某种固话的印象,设计师就像伯乐一样他要发现他的千里马,就像发现材质一样怎么利用材质的方法,达到他所要表达的情感,其实要说到设计理念,是在设计过程当中不断形成的,我不太相信一个人从起初一开始就有很好的设计理念,不确定性表现在每当我面对不同的案例时我会有不同的设计理念,而这种设计理念是随性的,是由内感而发的,也是我们对事物的基本感官反映,所以长时间做下来以后,不断的通过一个个案例去表达自己,就觉得每一次会缺点什么每次就会去弥补一些,这样充分让它达到自己最初认为的平衡点,其实我始终相信,真正是在做设计的人每次在面临他设计方案的时候是竭尽全力的,但是我不太相信每次在设计完以后在实施过程当中是竭尽全力的。我们很多人是保留余地的,很难尽善尽美,我还是希望走在我们的设计理念所要顾及的时候能去多一点空间完善我们的设计理念,其实总结一句话,好的设计理念来源于实际,她的每次落定,每次不确定性,每次随性,其实恰恰都是她很自然很完美的一种表达。
其实我对设计的理解,说大一点是跟中国人极其相关的,中国人穷苦很困难生活品质差,我是80后,生活过大家庭,住过草屋使用过公厕,我觉得设计能够改变人的很多不文明的现象,让人首先建立从不文明到文明,从不懂得美到能懂得美,如果用文化解决别人的文盲,我相信设计可以改变人的美盲。实际上很多人把设计和美术去比较,因为设计师都是学画画出生,反过来说其实我觉得美术是设计的基础,而设计应该是站在美术的基础之上去表达的,如果让学美术的人去改变人的这种生活观和生活质量的话很难,只有设计才可以达到如此重要的功能,因为设计更像一剂良药,美术只是在很高的生活层面上所要表达的精神层面的物质,但是设计不同,设计其实很草根也很高雅,普通人有普通人的设计,中端人有中端人的设计,高端人有高端人的设计,人们的生活设计是贯穿始终的,因为有时候想想,要我来说如果人一生没有设计,不懂设计,是一件非常恐怖的事情,这将失去对美的识别,无法享受美好空间,对美好事物没有直觉,生活里不会有很好美妙的咖啡厅,不会有很好玩的酒吧,也不会有很舒适的家庭,离开设计以后所有的地方都是枯燥的灰色的荒草的。那我觉得设计的伟大就在此。这是我为什么要做设计的原由,因为我喜欢她,她是我掌握的一个利器,这种利器就是我可以有创造性,让我能愉悦,就像一个军官他可以带着士兵打仗的感觉,我觉得我的士兵就是我的铅笔和电脑,当我想去改变设计的时候,我就可以用我的手把一个个冰冷的案例变成一个个美妙的音符,变成很有感觉的一个场所,让他充满生气,当人再次观赏的时候会由内心而发的一种赞叹,原来设计如此美妙。其实设计师往往是很阳光的、我们的内心并不是人想象的颓废,设计应该是积极向上,应该是通过我们的劳作让生活变得更加美好,更加有生活气息。
许建国设计作品展示
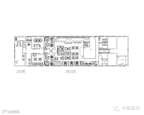
1.科隆巴赫音乐餐厅
项目面积:1300平方米
主要材料:红砖、铁板、水泥板、水曲柳木饰面。

科隆巴赫音乐餐厅整体设计充分利用建筑物自身的结构特点,合理的把握光源的设置跟安排,在空间上采取大面积的压迫式设计。利用简单的材料展现出别样的德国文化。因为餐厅的主打以德国的啤酒为主,所以设计师在力图深挖当代人的一种小资情调。从展现事物的原本状态入手,营造浓浓的异国风情。为了更加彰显浪漫的欧洲小情调,设计师在这里还加入了一些法式餐厅元素。是中国本土设计师对国外设计文化的一次勇敢的探索跟创新。










2.大巢氏展厅
项目面积:90平方米
主要材料:白水泥麦秸秆、原木、石材、毛石、水曲柳木饰面

本案设计秉持自然养生之念,如何保持天然,让一切看起来都自然地那么好,不矫揉造作。
原木,原石,竹子等自然材料,进行巧妙衔接捆绑,分割空间,又使之在情理之中,辗转回旋,烘托出整体环境氛围。入门处本案设计师偶得三把凳子,全由树木自然生长而得来,未经任何雕琢打磨,更好地切入主题,自然的东西如何保持良好的状态,这便是追寻的真谛。






吧台顶部倒挂的是官冒盒,与历史的悄然对话便在形影间。
如此环境,走进去便像是得到自然的洗礼般,身心舒畅,崇尚自然与和谐,实现人与自然的和谐统一,方可达到最好的状态。 这便是设计师所追求的,不娇柔做作,收放自如。





来源:中国建筑学会室内设计分会(CIID)


