

在灯光辉映下,充满了禅意空间的接待大厅
项目地址:福建福州海峡创意产业园
设计单位:中国无印良品空间设计事务所
主创设计:陈绍良
设计时间:2013年8月
开放时间:2014年1月
项目面积:680平方米
主要材料:黑胡桃木塑格栅 灰色硅藻泥 黑镜 素色水泥自流平透明地坪漆
钢化玻璃 黑钛不锈钢
摄影:施凯
本作品获2014年中国室内设计大奖赛办公类金奖
接待区文化石流水景观墙,增添了一丝灵动
初入玄关,一目了然的中式意境就让人颇为惊喜。几簇新绿在大片的黑白之间,带来清新之感。开放式的空间、方正的格局、四平八稳的圈椅,简约凝练的线条。这些横平竖直的元素在不自觉间散发出中式特有的沉稳和泰然。设计师通过块面的结构和传统的文化元素,将实用性的部件化为空间的装饰,细节的有机结合带来挥之不去的宏大气场。空间没有过多繁缛的装饰,看上去简简单单。寥寥可数的布置不仅符合东方“留白”的审美笔法,还透露几许深远的意蕴。
魔幻般的会议室,极富想象力
“坐亦禅,行亦禅,一花一世界,一叶一如来。”从等待区开始,这句耳熟能详的禅语便得到完美的诠释。在未熟悉地形之前,想要进入主体办公区也不是一件简单的事。看似通透近在咫尺的区域,却大有一番玄机。接待台的左右两侧皆是透视的隔栅,呈严谨的对称式布局,中间则是圆形的镜面挖空。圆形的挖空通过空间的穿透成为自然的景框,让观看者将目光穿透至最里层的墙面上,古典园林造景的方式在钢筋水泥的办公室妙笔生花。
大厅的格栅透着光影带来着梦幻魅力,亦幻亦真的弥漫整个空间
过道中静默的石狮,好像在诉说着什么,是一种精神向往
错落有致的书柜与员工办公区的交相辉映
过道的360度旋转格栅门
结束一番惊叹,推开侧边隐形成栅格的旋转门才算是真正进入办公区域。整个办公室拥有诸多的区域,风格上的求同存异则是设计上的巧思。光影旖旎,更是别具一格。大面积的白与黑经典对比,直接而不失委婉,简单而不减浓郁。高纯度的色彩带来最强烈最有生气的视觉冲击。形态不一的栅格,将室内空间一分为二。透过灯光的映射,消除了冷色调的沉重,光斑辉映下,倒是有了一室来自东方的神秘。一面是现代简约的工作台面,一面是古风犹存、气息淡然的空间布局,多面性的办公空间让人惊喜连连。延续古色古香之意,木制镂空的旋转门在开合之间制造空间的变化,巧妙的设计中带着对中国文化底蕴的美好追寻。或穿过忙碌的人群,或看见静默的石狮,将行走变成一种修行,于办公之中获禅意,何陋之有?
穿透力十足的书架
镜中静的接待厅
艺术总监办公室
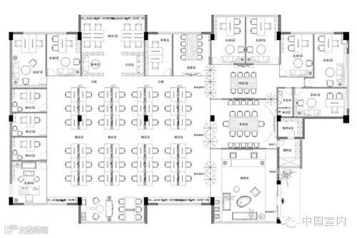
平面图
来源:中国建筑学会室内设计分会(CIID)
《中国室内》第93期
您想与全国的一线设计师们分享更多《中国室内》的精彩内容吗?只要加入中国建筑学会室内设计分会,您就会免费获赠中国室内设计界唯一的学术性内部刊物,回复“入会”获取加入CIID的方法,咨询电话:010-88356044


