项目地址:深圳东部华侨城景区
设计单位:深圳市凯诚装饰工程设计有限公司
主创设计:吴开城
参与设计:林风景、黄海珠
设计时间:2013年1月
开放时间:2014年1月
项目面积:6000平方米
主要材料:新西米黄大理石、雅丽米黄大理石 、金色年华大理石、酸枝木、艺术玻璃、布艺
层数:5层
甲方业主:深圳梓盛发集团
摄影:陈思

名君会由深圳市梓盛发集团投资,位于深圳市山清水秀的东部华侨城景区内,依山傍海,从这里可以俯瞰远处大海,周围环绕着华侨城高尔夫球场,相信没有朋友会拒绝这样的魅力,我也不例外,第一次到了现场就深深被吸引住。
会所定位为生态休闲度假型会所,与优美的旅游度假圣地华侨城景区环境相融合,专门定制于高端人士的健康休闲、商务聚会的私人会所。在功能的设置和空间的营造都围绕着高雅、奢华、浪漫、休闲四个要求宗旨进行。以求慰藉心灵的需求和渴望,展现身份和地位的象征。

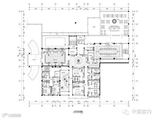
一层大堂

一层大堂
会所功能的设计上放弃了过多的娱乐项目,使会所更为安静高雅,平面功能设计遵循建筑空间结构,因势利导,将动静合理安排,一层为会所大堂及多功能宴会厅,二层至四层为客房,五层为总统套房,负一层为餐饮包房及多功能会议、私人聚会、雪茄和红酒窖等功能。为了让设计不落入俗套,同时融入周围青山绿水的生态环境,设计大胆地运用了奢华与休闲碰撞的方式,将两种不同的风情完美和谐地相融,演绎出浪漫惊艳之旅,让奢华与休闲碰撞出完美的火花。

红酒窖

红酒雪茄吧

红酒雪茄吧

负一层餐厅包房前厅

负一层多功能厅
项目设计风格引用浪漫休闲的地中海风情,展现其独特的异国风情文化,希望用其独特的空间拱形造型、精细的细部和蓝、白色色彩设计元素,来打造出高雅、奢华而不失浪漫、休闲的高品位私人会所。同时结合现代设计精神手法将其贯穿到各个空间。纯净的米白色空间设计师巧妙的通过材质和色彩搭配来营造出会所的高雅、奢华、浪漫、休闲的高端品质。暖色大理石、木材、高贵典雅的家具、布艺、手工地毯、铁艺、艺术饰品、精雕细琢的细部和文化石自然元素材质在灯光的点缀下烘托出一种无法意言的意境。让人们感受到奢华优雅的贵族气息。浪漫奢华而不失休闲风情在整个会所内静静蔓延,让宾客在休闲生态的优美环境中感受地中海异域文化,同时享受着尊贵优质的服务体验。

负一层会议室

一层多功能宴会厅

一层SPA房

三层套房客厅

三层客房

客房走道

特写

特写

特写

特写

特写

一层平面图
来源:中国建筑学会室内设计分会


