项目地址:湖南 长沙
设计单位:长沙鸿扬家装
设计主创:蒋栋梁
项目面积:1000平方米
主要材料:文化石、磨石子、清水混凝土、钢板、生态木、立体绿化
本作品获2014年第十七届中国室内设计大奖赛方案类(生态环保)银奖。
背景介绍:位于长沙市天心区天剑路口一栋废弃仓库。建于1975年,原某建筑企业的设备库房。

改造难点:原本宽敞的空间结构是发挥创意的最佳点,但面对30m*12m*8.3m的“巨大空壳子”,对于私人住宅却显得过于膨胀而矛盾。如何在这种矛盾的对立中寻求中间的平衡点,是本次案例的重点。

改造设计:新的设计尊重了原有建筑结构,通过重塑与再生将整个空间一分为二,并允许各个部份创造新的空间。经过设计师的功能处理、精化细节、现代诠释,为整体改造注入了新的活力。

门厅入口

内院透视

室内大厅

室内门厅

体息室

外观小角

主体外观

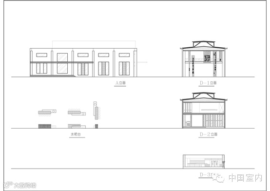
立面图-1

立面图-2

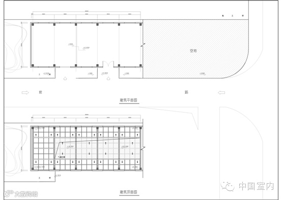
平面布置图

原始建筑图
来源:中国建筑学会室内设计分会(CIID)


