让古老建筑焕发新生,巴西风格建筑与当代生活方式的结合,Three Cusps Chalet -尖顶三连排住宅改造,由葡萄牙 Tiago do Vale Architects 事务所完成。




历史背景:
19世纪后期,大量葡萄牙移民从巴西返回,特别在杜洛河地区和米尼奥省,这些返乡的移民为当地贸易和工业带来了大量财富,而这些新鲜力量正源自于19世纪巴西的经济繁荣和文化融合。与此同时这些葡萄牙北部城市的众多建筑也受到巴西风情的影响。细高比例、高挑的窗户、尖屋顶和屋檐装饰,“Three Cusps Chalet” 便是在这样一个特定环境下,较为典型的受巴西风格影响的建筑。
原始建筑:
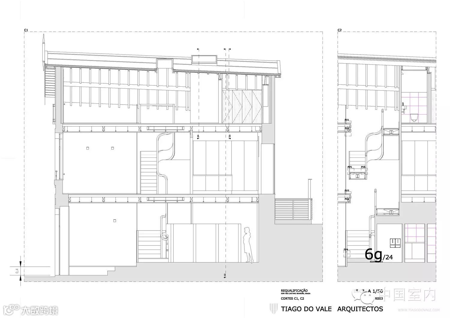
原房屋内部结构并不复杂,位于中心位置的楼梯将整个住宅每个楼层定义为东西两个等大的空间,楼梯顶部天窗让自然光深入建筑内部。楼层功能是由低到高对应由公共至私密的变化。在用材方面,所有石材和外墙采用当地黄色花岗岩,地板和屋顶则采用实木地板和梁。

设计团队首先面对建筑的修复工作,并在阐明建筑空间和功能的同时,使其适合当今生活方式。
设计团队保留了原始的功能划分方式:随着渐渐变窄的楼梯,楼层越高隐私程度也越大。并力求确保建筑内部最大的通透性,允许自然光横向和纵向穿透。



设计团队巧妙利用建筑前后地面的高度差异,在首层东侧规划出一块工作空间,又在住宅背面(东侧)设置了一个小露台,配合细高的窗户让清晨的阳光射入室内,达成处在二层的厨房与外部之间的过渡,并让两个不同功能的相邻楼层拥有差异化的空间个性和光感。

楼梯结构和造型高效的过滤一二层间的视觉联系,同时又确保自然光线能由上而下的传达。

二层被定义为社交空间,中心楼梯则划定了厨房和客厅的各自区域。清晨阳光照入厨房,再通过正对楼梯的天窗,午后到达客厅,自然光在一整天中游走于连贯的通透空间中。

随着楼梯逐渐狭窄来到顶层卧室,设计师保留了屋顶原始结构并漆成白色。



楼梯另一侧的区域被规划为衣帽间和浴室。
整个房子的视觉主题是规律的重复木、白色和大理石的组合,然而衣帽间却大不一样,这里是绝对的私人领域,完全被木材质包围就像一个小木箱。


用材:
为了达成空间最大化的通透和明亮,设计团队简化了材质的种类和形式:大面积白色墙面让空间非常明亮,木质的天然色彩则带来温暖安逸的氛围。拥有优质纹理光泽和颜色的葡萄牙白色 Estremoz 大理石运用于一层地面,厨房操作台面和浴室及洗衣房的墙面和地面。
设计团队完全复原了住宅正面二三层的木质窗框,屋顶结构和屋檐装饰。一层窗框、入口门和住宅背面的门窗经过重新设计,带来更多的的自然光照入。











设计:Tiago do Vale Architects, 葡萄牙
地点:Sé, Braga, Portugal
时间:2012-2013
占地面积:60m2
建筑面积:165m2
摄影:Joao Morgado – Architecture Photography
转载自网络


