项目名称:皇朝休闲足道
工程地点:南通海安
设计单位:威利斯设计
施工单位:威利斯专业施工
摄影单位:金啸文空间摄影
项目面积:1200平方米
户型结构:大型会所
本作品获2014年第十七届中国室内设计大奖赛休闲娱乐类铜奖。

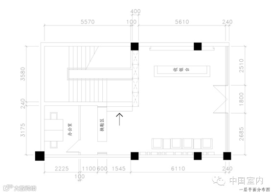
大堂
现代人快节奏的生活步调,缺乏一种"停下来"的姿态。本案中的新中式设计风格,摒弃了现代风格完全简约的呆板与单调,在空间设计、材料、色彩运用和家具装饰品陈设上,对传统文化符号的再创造,使之融入空间,古色古香,简约时尚,没有喧嚣与繁冗,一派宁静悠远。
海安皇朝足道的空间设计融入现代设计语言,为现代空间注入凝练唯美的中国古典情韵,整体空间定制了很多陶罐、铁艺构件,使这个普通空间彰显不平凡的一面。墙面人物线描是本案设计师亲自手绘,楼梯墙面上的荷花与鱼的动与墙面文字的静相结合,营造一种静谧的休闲的氛围,与足道这一主题融合的恰到好处,显得相得益彰,极具艺术效果。整个空间用中式元素来营造丰富多变的空间,达到步移景异,小中见大的设计效果。一个好的设计,是物质与精神融合,是共性与个性的共存。本案的设计用简洁、秩序的外显特征塑造了宁静致远的空间灵魂,回应了现代生活的功能需要;丰富、深邃的内涵感悟满足了现代人的精神需求。正如墨西哥设计师路易斯·巴拉干所说的:“没有实现宁静的建筑师,在他精神层次的创造中是失败的。现在的建筑物不仅缺乏静谧、静默、亲切和惊奇这类概念,连美丽、灵感、魔力、魅力、神奇这类词汇也消失了,而所有这些才是我心灵的渴求。

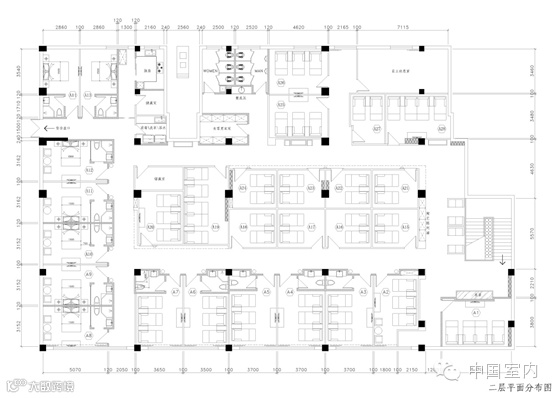
二楼大厅

过道

过道

过道

过道一景

楼梯

楼梯

台阶

休闲区

休闲等候区


来源:中国建筑学会室内设计分会(CIID)


