
项目名称:文昌清澜半岛会所
项目地址:海南文昌
设计单位:萧氏设计
主创设计:萧爱彬
参与设计:张想、何侦辉
陈设设计:LISA LIKAI
设计时间:2013年8月
开放时间:2014年2月
项目面积:2000平方米

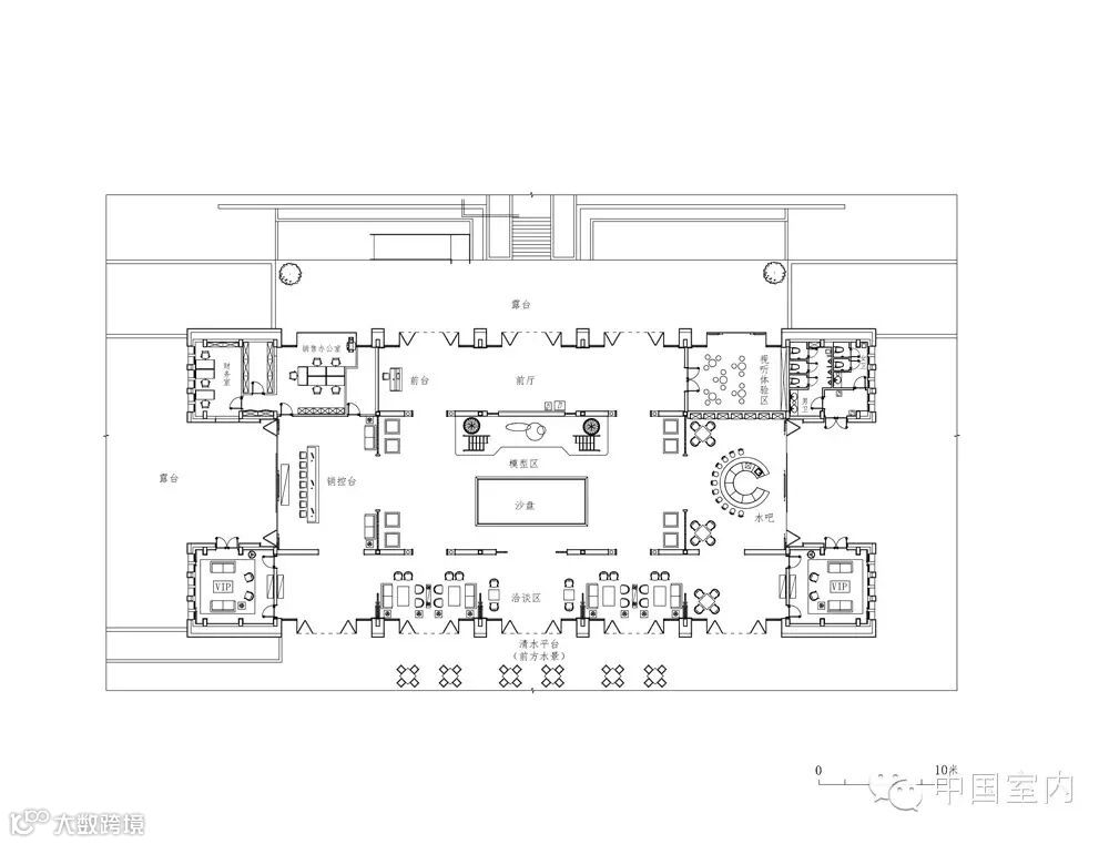
会所外景
所谓半岛即伸入海面的陆地,清澜半岛270度环视海面,拥有无敌海景,本建筑为东南亚风格,室内设计以此风格为延伸,即为东方主义设计理念。

会议区
会所初期做售楼之用,完成使命后可能要作为接待之用,因此采用各功能设计方法,现有的沙盘可以撤换,中厅即为大厅之用。室内设计与建筑设计不同的是第一步常会从风水入手,其实就是从心理感受入手,设计师要从心理学方面考虑空间才有可能做得更好。入口是一个压缩的长廊,这是萧氏设计在处理空间的一贯作风,先抑后扬,不让客人一到入口就一目了然,而是通过曲折迂回,然后豁然开朗。

酒吧区
销控台,不能放在入口,入口处只能是一个笑容可掬的迎宾小姐,这样符合消费心理,客人才敢进去。销控台虽放在第三空间,但当客人经过入口长廊进入沙盘区后,销控人员即可迎接上去,这样的服务方式才是最好的,客人不会感到唐突。

模型区
朝南的一线海景,与入口的长廊形成对称,成为“洽谈区”。这是当客人欣赏完房间、看好楼盘信息后的落定地方,也是开发楼盘的目的所在,最好的位置,优美的海景,最舒适的沙发和座椅,客人一边欣赏美景,一边品茗,合作自然容易成功。家具和配饰都是设计师为此空间量身订做的,椅子是主设计师刚获奖的作品,用在清澜半岛相得益彰。萧氏设计把行为心理和销售心理都完整地体现在设计空间里,这样的成功率一定会达到预期的效果,事实也是这样。

洽谈区
清澜半岛应该是海南文昌不错的楼盘,从开发商的选址,到建筑形式和环境,都投入了巨大的心力,室内设计给了环境最后亮点,使业主和开发商都得到了满意的结果。

水吧区

销控台
平面图
来源:中国建筑学会室内设计分会(CIID)
《中国室内》2015年08月期
您想与全国的一线设计师们分享更多《中国室内》的精彩内容吗?只要加入中国建筑学会室内设计分会,您就会免费获赠中国室内设计界权威学术性刊物,回复“入会”获取加入CIID的方法,咨询电话:010-88356044


