
项目名称:杭州外婆家西湖银泰店
项目地址:杭州西湖银泰
设计单位:内建筑设计事务所
主创设计:沈雷
设计时间:2014年11月
开放时间:2015年3月
项目面积:450平方米
摄 影:陈乙
主要材料:钢 水泥板 地板 瓷砖

“西湖之胜,晴湖不如雨湖,雨湖不如月湖,月湖不如雪湖”。离西湖咫尺的全新版外婆家,与风景保持距离,抽象与西湖相关的元素,再造、解构、重新定义当下的设计流行,餐厅已经成为媒体化的空间网络,体会、品味多时空的文化综合,如舞台多幕剧,晴湖、雨湖、月湖、雪湖兼得,涅槃般的浴火重生中去忘却空间与形式,在三秋桂子、十里荷花中去体验“我家就在西湖边”。

餐厅

餐厅内部

入口走廊

影像张力

细部解构

光影交错

装饰细部

空间衔接

交错的装饰

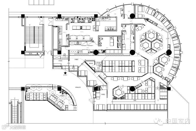
平面图
《中国室内》2015年10月期
您想与全国的一线设计师们分享更多《中国室内》的精彩内容吗?只要加入中国建筑学会室内设计分会,您就会免费获赠中国室内设计界权威学术性刊物,回复“入会”获取加入CIID的方法,咨询电话:010-88356044


