
项目名称:佛山邦华建设办公室
项目地址:广东佛山
设计单位:佛山市城饰室内设计有限公司
设计主创:黎广浓
参与设计:霍志标
设计时间:2014 年10 月
开放时间:2015 年6 月
项目面积:250 平方米
主要材料:水泥砖 不锈钢 艺术涂料 玻璃 木皮 大理石




本案主张减法,抛开实体隔断对空间的硬切割,以简洁的线条与块面勾勒室内,让空间与结构有序展开的同时表达出朴实的素描关系之美。

办公室过道1

办公室过道2
去装饰的开敞与通透处理,如画留白——蕴意于墨外。在满足功能的划分以外,是界线的模糊,“围而合之、透而无界”,空间之外呈现出对话性、互动性、趣味性。

会客室

总经理室

前台背景

前室

卫生间

局部特写

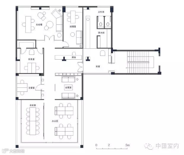
平面图
空间的本质在于有组织的“留白”之中,通过大面积落地玻璃或镂空柜架进行功能分割,彰显其通透性,让自然光线填满,将建筑以外的景色尽收眼底。配合墙体之间的虚实关系,形成独特的视觉张力,让功能性与构造美感成为整个空间重要组成部分。本案例获得2015 年中国室内设计大奖赛E 类(办公类)银奖。
来源:中国建筑学会室内设计分会(CIID)
《中国室内》2016年1月期
您想与全国的一线设计师们分享更多《中国室内》的精彩内容吗?只要加入中国建筑学会室内设计分会,您就会免费获赠中国室内设计界权威学术性刊物,回复“入会”获取加入CIID的方法,咨询电话:010-88356044


