
项目名称:眉山凯旋国际广场c3 户型样板间
项目地址:四川省眉山市
设计单位:深圳创域艺术设计有限公司
主创设计:张书
照明设计:西顿照明
深化设计:创域设计
甲方业主:领地房地产集团
设计时间:2014年3月
开放时间:2014年5月
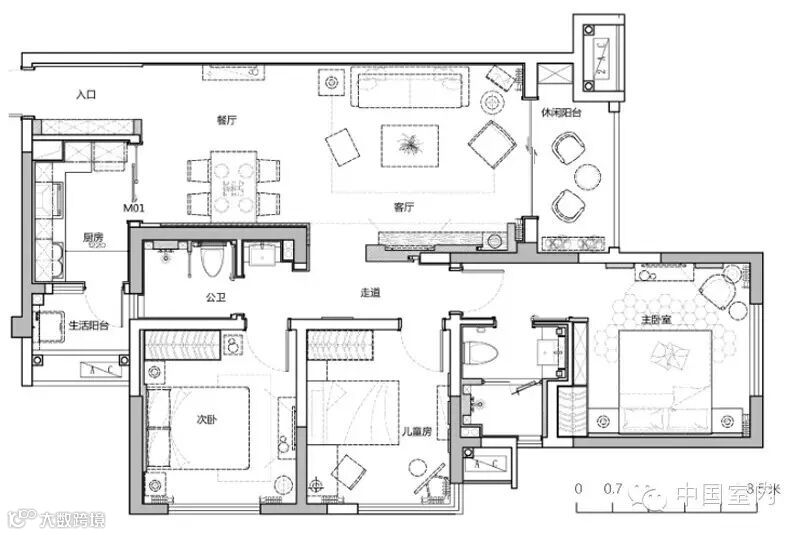
项目面积:97平方米
主要材料:石材 砖 墙纸 木地板 灰茶不锈钢 木施面 皮革

大厅1
都市的忙碌生活,早已经让我们烦腻了花天酒地、灯红酒绿,我们更喜欢一个安静、祥和,看上去明朗宽敞舒适的家,来消除工作的疲惫,忘却都市的喧闹。

大厅2

大厅细部
设计师试图在空间上给居住者营造一种生活和记忆的氛围,以木色和米黄色为主色调,以深色为点缀。优雅简洁的线条比例,及黑白两色的大理石地面相互映衬,再加上家具和软饰的和谐统一,使得整个空间时尚简约但又不失奢华。本案中,设计师对细节上的处理和局部的突出也十分精细,让居住者更舒心,这也是我们实践“以人为本”的设计理念。

走廊
入户后放眼望去,客厅中央淡黄的灯光倾泻而下,其古典韵味的造型,璀璨的灯光让吊灯成了空间中的亮点。白色的纱质窗帘在微风的荡漾下飘逸,宛如流动的色彩,装点生活的每个细节。米黄色的布艺沙发与白色茶几相映相成,彰显气质和视觉的美感,给人眼前一亮的感觉。背景墙上陶瓷搭配铁艺的挂件,活跃着生命律动的韵味与无穷的诗意空间。木色与银白搭配的餐椅在素净中透露出稳重,锃亮的餐桌为餐厅带来了一抹亮丽,平衡了木色与银白搭配带来的沉重感。餐桌中间的蜡烛用以营造浪漫气氛,搭配上淡黄色的背景墙,洋溢出温馨的气息。厅内大面积的色块对比、材质的不同、造型的变化丰富了空间的表现形式。

主卧

浴室
主卧以简约风格打造,基于传统的简约装饰手法,融合现代创作元素,以简单的材质、配饰和形体组合,提炼出经典精华,又不失奢华。诗是有声的画,画是无声的诗,墙面上的山水写意油画将有限表现为无限,百里之势浓缩于咫尺之间,灰茶钢的线条让空间收放自如,营造一种宁静祥和的氛围。次卧首先映入眼帘的是背景墙上的不规则装饰挂镜,线条简约流畅,匠心独具的设计体现时尚与未来的一面。儿童房色调以柠檬黄、新绿为主,整个空间弥漫着明快、轻松的气息,让朝气蓬勃又活泼好动的小朋友在这充满想象的空间里自由舒展身心,快乐成长。

儿童房
整体户型的优化上采用了许多储藏功能和空间活动的展示,更好地体验实用性和合理性。这种设计理念立足于传统写意的色调,但又大胆地利用了材质、灯光、不锈钢材质融合贯通,华丽与最新国际时尚巧妙结合,强调了空间里的意境创造。

平面图
来源:中国建筑学会室内设计分会(CIID)
《中国室内》2015年12月期
您想与全国的一线设计师们分享更多《中国室内》的精彩内容吗?只要加入中国建筑学会室内设计分会,您就会免费获赠中国室内设计界权威学术性刊物,回复“入会”获取加入CIID的方法,咨询电话:010-88356044


