
项目名称:长沙望城靖港古镇改造
项目地址:长沙望城靖港古镇
设计单位:鸿扬家装
主创设计:李宏亮
设计时间:2015 年5 月
项目面积:1000 平方米
主要材料:钢化玻璃 方形钢架 青石板 青瓦 青砖

望景1
随着中国经济的高速发展及城市化进程的加速,人们习惯了大拆大建的简单思维,不少城市为建新城,拆老城也拆老建筑。盲目地拆老建筑,就等于“销毁”一个历史档案。中国的历史痕迹在快速消失,我们的子孙成了迷失、无根的“新”一代。如何使老建筑得到充分的尊重与保护?

望景2

望景3

望景4
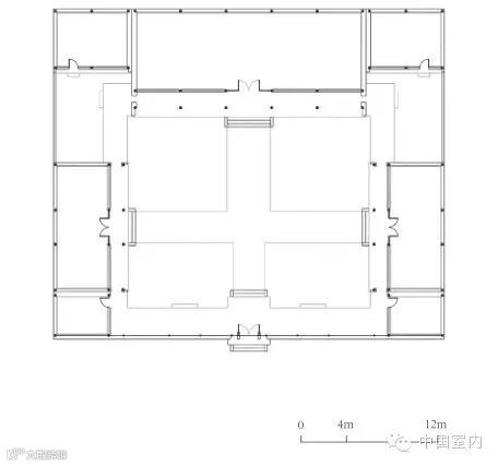
项目位于青山如黛,绿树成荫的湖南省望城县,依山傍水环境优美的古镇。设计本着保护旧建筑,以改造再利用为主。构思去掉墙体非结构体,保留柱顶的纯结构框架,再植入全金属和玻璃等现代材料制作的新盒体,两边的旧建筑做简单的翻新改造,庭院部分改造为本地石与水景的结合。设计手法单纯,没有多余的装饰,旨在体现思想引领文化传承。一百年的历史在这座院落中层累出的时间碎影被尽量保留下来,存储着一个世纪的回忆。玻璃和钢等现代材料贯穿于建筑之中,通过自身的反射性向旧建筑表示着敬意。轻盈而近乎无形的新建筑体植入、穿插、独立于沉重而强势的旧建筑,形成强烈的对比,当代的建筑体与传统的结构得以共生。

角度1

角度2

角度3

角度4

平面图
房檐料峭的老房子,轻盈无形的现代玻璃和钢架,置身其中,仿佛是一场与历史的对话。本案例获得2015 年中国室内设计大奖赛K 类(方案类 文化传承)金奖。
来源:中国建筑学会室内设计分会(CIID)
《中国室内》2016年1月期
您想与全国的一线设计师们分享更多《中国室内》的精彩内容吗?只要加入中国建筑学会室内设计分会,您就会免费获赠中国室内设计界权威学术性刊物,回复“入会”获取加入CIID的方法,咨询电话:010-88356044


