
项目名称:晃岩•53 精品酒店
项目地址:厦门鼓浪屿
设计单位:厦门一亩梁田设计顾问
设计主创:曾伟坤
参与设计:曾伟锋 李霖
设计时间:2015 年1 月
开放时间:2015 年3 月
项目面积:1120 平方米
层 数:3 层
景观设计:厦门一亩梁田设计顾问
甲方业主:林先生
摄 影:刘腾飞
主要材料:素水泥 白蜡木饰面

走道、楼梯C立面图-PL

三层廊道
晃岩•53 精品酒店,是一座拥有着百年历史风貌的砖木混合结构建筑。作为一个改造项目, 为了更好地保护历史建筑,设计师在不改变原建筑结构的前提下,通过保留建筑原有的木质梁结构,运用素色的水泥作为基材来搭配整个空间,旧木与水泥,两种材质的碰撞极大地拉升了空间纬度。

酒店细部

客房1

客房2

一层廊道与上网区

一层廊道1

一层廊道2
整个空间不做过多装饰,运用设计师精心定制的装置画和精工制作的黑漆吊架造型来增强空间感观。摒弃浓郁的色彩,运用素雅的白蜡木饰面来调和空间的灰色调,配合恰到好处的灯光设计,让整个空间温馨灵动又不失亲切。本案例获得2015 年中国室内设计大奖赛A 类(酒店、会所类)铜奖。

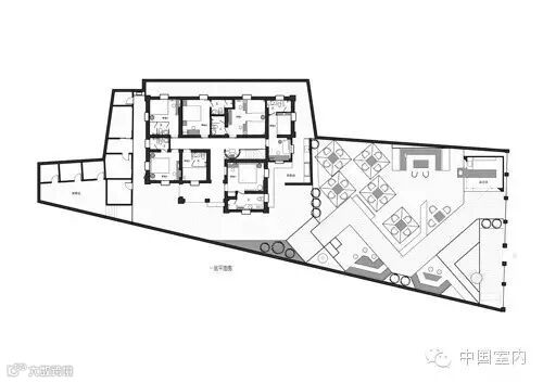
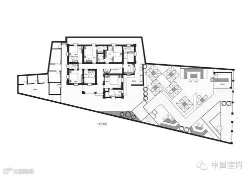
一层平面图

二层平面图

三层平面图
来源:中国建筑学会室内设计分会(CIID)
《中国室内》2016年2月期
您想与全国的一线设计师们分享更多《中国室内》的精彩内容吗?只要加入中国建筑学会室内设计分会,您就会免费获赠中国室内设计界权威学术性刊物,回复“入会”获取加入CIID的方法,咨询电话:010-88356044


