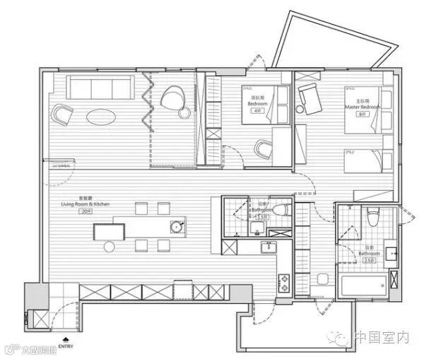
1.围绕孩子与厨房的高雄150平米住宅设计

这是一座位于高雄的四口之家,设计来自非常受欢迎的台湾好设计工作室(HAO Design)。Lucas与Kelly是在海外旅游相识相爱的,目前已经组建了家庭。夫妻俩酷爱烹饪,并有了两个可爱的女儿。女儿们还处在学龄前,所以在设计之初,他们便要求设计师为他们打造一处开敞的厨房,这样就可以在烹饪时给与孩子们更多的照看。起居室目前主要作为孩子们的“游乐场”,所以家具的摆放很随意,圆鼓鼓的懒人沙发很低矮,小孩即使爬上去再掉下来也不会伤到,同时让客厅的视线很通透。茶几也是圆形的,不会磕到碰疼。局部的木框吊顶简单地做了空间划分,随着孩子们渐渐长大,这里将作为他们学习与阅读的区域。
















2.高雄现代简约清新自然的开放式亲子公寓 
家里有了孩子,总是希望家能以让孩子住得安心、也玩得开心为考量。开放式的公共空间可以随时看得见孩子的活动,紧邻的主卧房和儿童房也让家长晚上不用担心,高雄好室设计所分享的这间亲子寓所,就是如此开放又贴心的例子。虽然水泥墙面和中岛厨房走的是工业风格,但全室铺上了温暖明亮的木地板并搭配木板墙和木家具,提升居家温度,也让孩子跑跳更安全。浅灰与绿色的搭配不只在客厅出现,也运用在卧房,与木头质感一同辉映出森林盎然的生气,令人感到平静放松。总是考虑三房两厅,不如少一房作为弹性使用;加大的公领域有一架高、类似和室的空间,那里是电视仅作为辅的客厅,并以拉门稍微间隔出孩子也能在一旁玩耍的共同区域,让大人与小孩的互动空间更大,家人的也关系更紧密了。













3.日本名古屋挑高跃层的梦幻木屋

名古屋 Reno Cube 室内设计公司如何打造跃层的梦幻木屋!还记得小时候,只能拌着厨房传来阵阵香味频咽口水?以开放式厨房为中心,在料理的同时也能看到宝贝,更可享受与小孩一起动手做的乐趣。从地板透过楼梯到墙面,大面积的使用木头元素,餐桌结合中岛,楼梯更刻意做高也可当儿童坐椅,既美观又实用。










4.瑞典房仲 Landgren 新推出的森林系公寓

将餐厅的墙面换成砖墙,选用木质餐桌,角落加上盆栽点缀,是不是让你和孩子有置身度假村的错觉呢?除了餐厅外,屋主在厨房、走廊、客听、浴室等空间皆大方的使用各式盆栽做造景,看到绿意盎然的家,孩子是不是也忘了自己正置身水泥大楼!












转载自网络


