
项目名称:郑州外婆私房菜
项目地址:郑州市金水区太康路丹尼斯百货大卫城11 层
设计单位:上瑞元筑设计制作有限公司
主创设计:费宁 吕恺 叶科
营业面积:735平方米
完成时间:2015年06 月
主要材料:陶土砖 黄泥 老木板 PVC 管材 装饰铁艺

入口
细腻的心遇到似曾相识的餐厅,是酷酷暖暖的乡愁。

用餐大厅


用餐分区
餐厅的“W”形屋顶,有各种暗示和呼应。塑料条制作的稻草灯,铁网制作的云朵灯,蓝紫色灯光透过穿引铁板形成的光线打在泥土肌理的墙上,闪烁魅惑,如漂浮空中。

大厅用餐区
“W”形屋檐下,乍看来整齐的一排座椅,沉稳正经,慢慢观察,却发现一颗调皮的心。有的椅背演变成工作站,有的索性直接成为支撑屋顶的柱子,营造出强烈的戏剧感。


包间
门牌号雕刻在铁板上,很可爱;灯箱指示牌吊在过道顶上,很精致,有怀旧车站的味道。

卡座区

接待处与卡座区
硬朗的线条,棱角分明,空间简洁丰富,颇具建筑感的手法,开朗、阳光的故事就此发生。

走廊

走廊隔断
初次见面却似曾相识:青砖、夯土、石头、茅草、屋舍,所有的意向和元素都纷纷指向一座北方的老村落,一段回忆,一个故事。

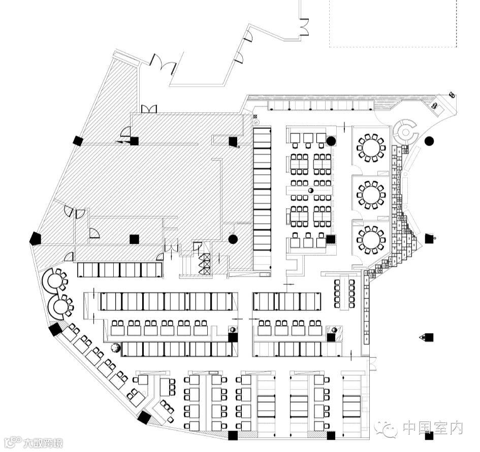
平面图
来源:中国建筑学会室内设计分会(CIID)
《中国室内》2016年7月期
您想与全国的一线设计师们分享更多《中国室内》的精彩内容吗?只要加入中国建筑学会室内设计分会,您就会免费获赠中国室内设计界权威学术性刊物,回复“入会”获取加入CIID的方法,咨询电话:010-88356044


