
项目名称:太原正和养身堂
设计单位:一诺诺一设计顾问有限公司
主创设计:赵鑫
参与设计:田鑫 李经纬 王莉
项目面积:300平方米
照明设计:张斌
建筑单位:博怡轩装饰工程有限公司
摄 影:刘育麟
主要材料:红克隆木地板 灰色花岗岩 铁板蓝色喷塑 榆木原木 麻质地毯 白色乳胶漆

入口望门厅
具有东方哲学思想的养生理疗空间是项目设计之初的理念,融入素简、清逸、静雅的观念,塑造平和安静、不做作的自然空间。雅致轻盈的意境,令人身体得以休憩;万象归元的气韵浑然其中,使人心灵得以洗涤。

公共休闲区

公共休闲区
空间功能划分上移植北方传统民居的格局, 立意明确简单。 入口接待区即为玄关, 转折进入之后,传统建筑的梁柱结构体成为整个空间的主唱,为憩客提供休息、互动、交流的区域,好像在自家的院子里喝茶聊天,其它空间有序分布在主体空间周围。

门厅

门公共休闲区细部

门公共休闲区局部
白色为主基调,古典传统颜色“黛蓝”点缀其间,如纯白宣纸上的一幅水墨画,风格稳重而不失活跃。大量原木围绕在空间之中,自然气息有助于释放生活间繁忙、庸碌的压力与步调,达到极致放松的安逸状态。
在强调自然元素与人文特点的基本框架下,东方哲学思想与室内空间的实物、光影浑然天成,渲染得韵味十足。

休闲区陈设

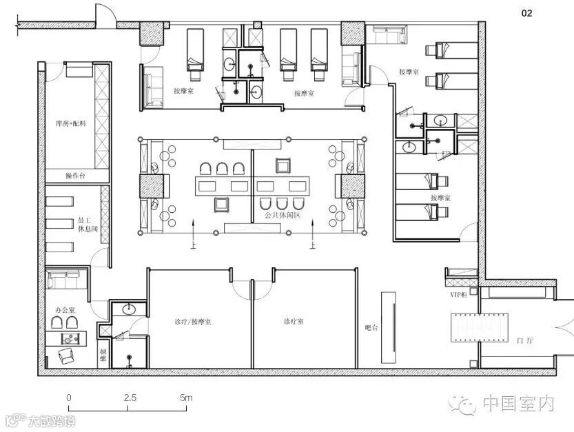
平面图
来源:中国建筑学会室内设计分会(CIID)
《中国室内》2016年8月期
您想与全国的一线设计师们分享更多《中国室内》的精彩内容吗?只要加入中国建筑学会室内设计分会,您就会免费获赠中国室内设计界权威学术性刊物,回复“入会”获取加入CIID的方法,咨询电话:010-88356044


