
住在南京网楼市快讯
近期,南京三大新盘动态曝光,一起来看看:
1、伟星誉璟府,今日公开位于德基广场的城市展厅
2、河西南G72,拟建4栋31层住宅,带下沉式庭院
3、江宁东山中天云来,建面约77-143㎡户型图曝光,预计最快将于4月底上市
大校场伟星誉璟府,位于新街口德基广场的城市展厅今日正式公开!
今日,大校场伟星誉璟府的城市展厅正式公开!位于新街口德基广场二期负一层。

伟星名誉璟府是浙企伟星在南京主城核心大校场打造的“府”系产品首作!
项目规划打造3栋8F洋房以及6栋15-17F小高层,共计9栋住宅,“小高层+洋房”的配置,主城难得的低密社区,同时打造六恒科技住宅,未来业主的舒适度更上一层!

“无会所,不豪宅”,项目还将配置约1600㎡高端会所,配备行政酒廊、恒温泳池、健身会所、意境茶室等高端活动场域。同时还有丹健国际、顺景园林等大师联袂,匠造大宅。

从外立面的效果图来看,项目采用干挂铝板+天幕玻璃的材质,同时搭配米黄、灰色以及香槟色点缀,质感高级,外观惊艳,南京新城的全新封面已然伫立在此。

在产品户型上,项目建面约119、143、196㎡三种户型在此前已对外公开,未来居住圈层高端而纯粹。
建面约119㎡的三室两厅两卫户型:

横厅设计,堪比河西大平层;主卧套房设计,配备独立卫浴,三个卧室均带飘窗。
建面约143㎡的四室两厅两卫户型:

三开间朝南+双阳台设计,采光通风更优越。项目布局宽奢有度,改善属性明显。
建面约196㎡的四室两厅三卫户型:

超级大平层户型,超长跑道阳台,宽奢主卧套房设计,厨房为中西双厨配置。区域终极改善的不二之选。
地理位置上,项目更是位于“主城最后黄金10平方公里”大校场的机场跑道核心,顶级配套集结,地段价值矜贵。
据置业顾问透露,项目预计将于4月公开样板房,5月份开盘。主城核心地段之上,由匠心房企伟星打造的年度爆款之作,值得期待!
河西南G72地块规划出炉,打造4栋31层住宅,带下沉式庭院
近日,南京市规划和自然资源局公示了河西南奥体建设G72地块规划设计方案。
据资料显示,河西南G72项目拟建4栋31F超高层建筑,楼间距大于等于75米,带下沉式庭院。

从效果图来看,项目建筑立面采用大面积玻璃窗加金属线条,超大窗墙比,颜值超高!

该块地是去年10月19日南京第三批次集中土拍时出让的,底价成交,被南京国企奥体建设以总价16.1亿元拿下,楼面地价32233元/㎡,未来不设毛坯限价。
河西南奥体建设G72地块,紧靠2号线西延线天保街站,地理位置优越。项目旁边在售的有枫璟雅园、颐和云台源筑、涵樾府等楼盘。
寸土寸金的河西南与匠心实力国企奥体建设的强强联合,打造的产品值得万众期待!
正值楼市“金三银四”,河西的几大新盘在近日也是动态频出!
除了河西南奥体建设G72项目,同位于河西南的颐居建设G71、建发G73也爆出最新动态。
颐居建设G71:项目拟建5栋小高层,全部17层,预计打造建面约115㎡、135㎡、175㎡三种户型,一梯一户设计。(具体以开发商实际公布为准)

从公示的效果图来看,项目外立面采用大面积的玻璃窗,整体外观时尚又现代。

而据内部可靠消息透露,项目预计在今年上半年入市,值得期待!

建发缦云: 位于河西南的建发G73项目在最近公开全新案名——“建发缦云”。项目拟打造建设9栋楼,均为17F的小高层产品,户型为建面约125、145、180㎡三种主力户型。(具体以开发商实际公开为准)

好盘接连上场,接下来的河西精彩了!
江宁东山中天云来,建面约77-143㎡户型图曝光,预计4月份上市
近日,江宁东山的纯新盘中天云来,户型面积曝光!项目将打造建面约77、88、99、112、115、143㎡六种户型,全生命周期户型,刚需和改善客群一网打尽!

项目的精装放风价3.4万元/㎡,堪称东山目前的最低门槛!预计将于今年4月份上市!
项目前身是东山G90地块,去年10月19日被中天美好以总价6.6亿竞得,成交楼面价15430元/㎡,不设置毛坯限价。
项目拟建设6栋13-18层住宅,其中1栋13层、1栋16层,另有4栋18层。项目的外立面采用LOW-E玻璃,搭配紫磨金色金属线条,造型雅致,质感高级,刷新区域全新封面!

目前中天云来的部分户型图已经对外公开!
建面约99㎡的三房两厅两卫户型:

三开间朝南,全明通透,独立玄关,客餐厨一体,套房主卧设计带独立衣帽间,住在小户型中也有改善般的体验!
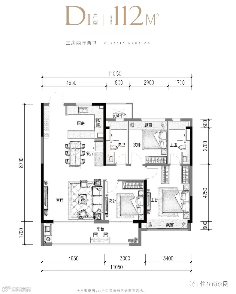
建面约112㎡的三房两厅两卫户型:

三开间朝南,全明双卫,套房主卧,长约7.65米的南向双联阳台,初改人群必选!
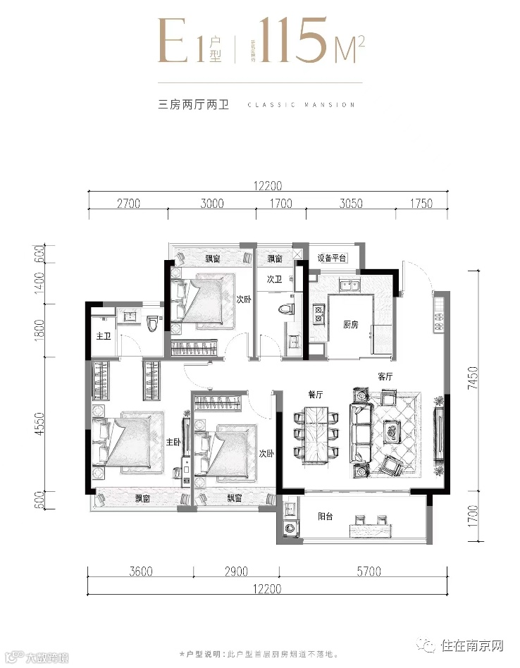
建面约115㎡的三房两厅两卫户型:

独立玄关设计,业主归家更尊崇,LDK客餐厨一体,营造家庭多元社交场所,套房主卧设计,卧室带飘窗,业主居住感升级,270°观景飘窗,视野绝佳!
建面约143㎡的四房两厅两卫户型:

全明通透,客餐厨一体大横厅设计,空间阔绰,套房主卧,带独立卫浴以及步入式衣帽间,270°观景飘窗,南向双联阳台,连通主卧和客厅,让家庭成员享有更多的阳光与清风。
从地理位置上看,项目位于江宁中芯-东山板块,交通、商业、教育、医疗等配套成熟,居住氛围十分浓厚!

其开发者——中天美好,隶属中国500强企业中天控股,国家一级房地产开发资质。此次择址东山打造的“云来”系,则是一次产品的迭代创新,汲取宋韵美学精华,看点十足!
目前东山板块内有朗诗玲珑新亭、海玥华府、万科金域国际等楼盘在售,中天云来预计将于今年4月份入市!敬请期待!
住南快评:
“金三”已经过半,各大新盘动态频出。品相优秀的楼盘同台竞技,对于买房人来说对于买房人来说,可选的楼盘也越来越多。抓住机会,赶紧挑选!









