
内卷时代,南京市场不缺好产品,缺的是一些创意户型产品!
今天,住在南京网就为大家盘点南京即将上市的一些极具设计亮点的户型!一起来看一下吧!

中宁府位于河西南板块,其前身为万众瞩目的能建城发G29地块,预计将打造中国府的升级版。
项目规划8栋26-29层高层住宅,能建城发最高端“国府系”产品,共计433套房源,项目的主力户型为建面约198、248、258、298㎡四种户型以及少量的400-550㎡顶部大平层,专为顶层富豪定制。

虽然项目并未公开,但根据目前释放的消息来看:国际知名设计事务所HZS滙张思操刀,打造巨幕玻璃立面+约270°超大视野,六恒科技住宅,1+N专属高定会所……期待值拉满!

其建面约298㎡的五房两厅三卫户型:

270°环幕观景视野,搭配L型转角观景阳台,打造中西双厨房、双套间等塔尖家庭专属配置。
紫星堂位于仙林湖板块,其前身为仙林湖G38项目,后期将由高科与奥体建设联合操盘。
项目容积率仅为1.2,规划打造11栋5F的低密洋房住宅,也是南京市场中屈指可数的极为低密、纯粹的洋房项目,被市场视为“紫微堂”2.0版本。

据悉,项目将打造建面约215、255、320㎡三种尺度,四种户型,得房率高至91.47%,私属候梯厅,南北双阳台设计。

项目规划打造10栋28-29层住宅,项目将配置会所、露天泳池,提升小区质感!据悉,项目也是燕子矶首家带露天泳池的楼盘!

根据项目最新曝光的户型图,项目将打造建面约89、120、126㎡三种户型,满足不同购房需求!
建面约89㎡的三房两厅一卫户型:

该户型配置约5.3米的横厅,在同尺度户型中堪称无敌。三房间带飘窗,通风、采光效果佳。南向大阳台设计,揽景视野绝佳。
建面约120㎡的四房两厅两卫户型:

该户型竟然做到了四房两厅两卫,横厅搭配大阳台,全屋南北共计6个飘窗,采光、通风效果佳。大横厅设计,跑道式阳台。
建面约126㎡的四房两厅两卫户型:

约6.6米的横厅设计,视野开阔,尺度绝摆!
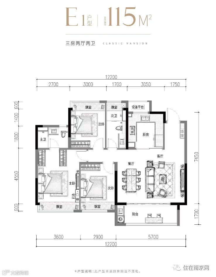
颐和缦山规划打造5栋26F的高层住宅,社区内部以活力星球为社交场景,以新生代氧气生活场为空间功能,规划约4700㎡的中庭景观、儿童主题乐园等。

在产品户型的打造上,项目为建面约89、115㎡两种户型,LDKB一体化设计,户户带飘窗,未来业主的居住舒适度全面升级!

据内部消息预计将于本月下旬首开。
作为国匠海信的南京首子,海信·慧园整体规划5栋17F小高层,整体为低密住宅,进一步提高人居舒适度。

值得一提的是,项目也是板块内首家配置双会所的楼盘,改善属性拉满。


更令人拍案叫绝的是,海信在产品户型上的创新!据悉项目打造89-107㎡的两种尺度,三种户型,其89㎡A户型中1.5卫的首创设计,也是匠心满满!
建面约89㎡的三房两厅1.5卫户型:(A)

此户型最大的一亮点即是创新1.5卫设计,两个马桶共用一个洗漱区实用性更强,大大提高业主生活效率。小户型的生活也能更加从容!
中天云来位于主城东山,与百家湖、九龙湖共享醇熟配套。
项目规划打造6栋13-18层住宅,其中1栋13层、1栋16层,另有4栋18层。项目的外立面采用LOW-E玻璃,搭配紫磨金色金属线条,质感高级,颜值大气,刷新区域全新封面!

在户型设计上,项目将打造建面约77、88、99、112、115、143㎡六种户型,全生命周期,户型尺度张力十足,缓解东山板块的新房荒!
建面约99㎡的三房两厅两卫户型:

三开间朝南,全明通透,独立玄关,客餐厨一体,套房主卧设计带独立衣帽间,住在小户型中也有改善般的体验!
建面约112㎡的三房两厅两卫户型:

三开间朝南,全明双卫,套房主卧,长约7.65米的南向双联阳台,初改人群必选!
建面约115㎡的三房两厅两卫户型:

独立玄关设计,业主归家更尊崇,LDK客餐厨一体,营造家庭多元社交场所,套房主卧设计,卧室带飘窗,业主居住感升级.。
建面约143㎡的四房两厅两卫户型:

全明通透,客餐厨一体大横厅设计,空间阔绰,套房主卧,带独立卫浴以及步入式衣帽间,270°观景飘窗,南向双联阳台,连通主卧和客厅,让家庭成员享有更多的阳光与清风。
美都·星屿熹规划打造8栋18-20层的低密住宅,其中1#、2#、4#、5#、8#号楼为18F,3号楼为19F,6、7号楼为20F,未来业主的居住舒适度会大大提高。

在地理位置上,项目位于仙林中部,公办南外旁,地理位置十分优越。
在户型设计上美都·星屿熹洞察年轻人生活态度,打造建面约75㎡(2+1)房、83㎡ (2+1)房、89㎡3房、89㎡3房,三个面积段,四种户型。
其中建面约75㎡的(2+1)户型,为南京主城目前难得的稀缺小户型,小三房的空间格局,LDKB一体化设计,超大封闭阳台多功能使用,可做书房,年轻刚需客不容错过!

住南快评:
时间不知不觉已经来到四月中旬,楼市一些品质新盘动态频频。对于购房者来说,更是一个能够惊喜挑选的绝佳机会!
楼市“好菜”一一上桌,有你喜欢的吗?欢迎评论区留言!





