
住在南京网楼市快讯
今天,南京又发生3件大事,一起来看看:
1、重磅教育利好落地,鼓楼幕府创新区确定引进拉小,这些楼盘将直接受益
2、江宁东山纯新盘中天云来,今日公开营销中心,项目最快将于4月底上市
3、招商江宁科学园G08规划出炉,项目拟配建13栋14-18F的住宅
重磅利好!鼓楼幕府创新区确定引进拉小,这些楼盘将直接受益
重磅教育利好落地,鼓楼幕府创新区,确定引进拉小!
就在昨日,鼓楼区铁北管委会发布了一则关于“幕府东路以南、五佰村路以西地块及长江悦府、鼓悦兰园等住宅小区义务教育施教学校的函告”,消息一出立即刷爆朋友圈,一批业主沸腾!

给大家划个重点:
1、拉萨路小学教育集团幕府分校(暂定名,以有关部门核定校名为准)作为幕府东路以南、五佰村路以西地块以及长江悦府等住宅小区的施教学校,拉萨路小学教育集团幕府分校由拉萨路小学教育集团直接管理,拉小本部校长兼任总校长,集团内选派执行校长和管理团队,教师在集团内流动。
该分校计划2024年启动建设,力争2026年底完成建设。
2、拉萨路小学教育集团砺志分校(暂定名,以有关部门核定校名为准),即起重机械厂地块配套小学,作为鼓悦兰园等住宅小区的施教学校,拉萨路小学教育集团砺志分校由拉萨路小学教育集团直接管理,拉小本部校长兼任总校长,集团内选派执行校长和管理团队,教师在集团内流动。
该分校计划2023年启动建设,力争2026年底完成建设。
事实上,鼓楼区优质的教育资源一直享誉全城,但是区域内也有明显教育资源分布不均的现象,这次拉小在幕府创新区设立直属分校,不仅补齐了板块的教育短板,板块价值也将大大提升。
虽然板块内目前新盘供应量并不大,目前在售楼盘仅长江悦府一家。

长江悦府目前在售在售A3、A5、A7号楼,户型建面约110、135、142、168㎡,全装修交付,销许均价41475元/㎡,另有升级装修包2200元/㎡,首付3成起。预计2024年9月底交付。
同时,对于刚刚交付不久的鼓悦蘭园的业主来说,也是一大利好,未来孩子的教育不用愁了。


江宁东山中天云来营销中心今日盛大公开,预计4月底上市
继朗诗玲珑新亭后,江宁东山又有新盘爆出最新动态!江宁东山纯新盘中天云来营销中心,今日盛大公开!

售楼处现场人潮涌动,不仅有来自东山的客户还有不少来自江宁百家湖、九龙湖高端改善客,热闹非凡!
众多参观者围在沙盘旁,耐心听现场的置业顾问讲解:


举行的抽奖活动,引得现场气氛热烈空前:

项目拟建设6栋13-18层住宅,其中1栋13层、1栋16层,另有4栋18层。项目的外立面采用LOW-E玻璃,搭配紫磨金色金属线条,造型雅致,质感高级,刷新区域全新封面!


建面约99㎡的三房两厅两卫户型:

三开间朝南,全明通透,独立玄关,客餐厨一体,套房主卧设计带独立衣帽间,住在小户型中也有改善般的体验!
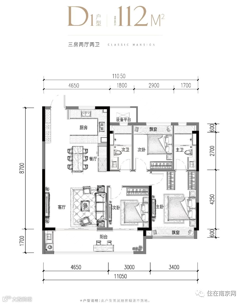
建面约112㎡的三房两厅两卫户型:

三开间朝南,全明双卫,套房主卧,长约7.65米的南向双联阳台,初改人群必选!
建面约115㎡的三房两厅两卫户型:

独立玄关设计,业主归家更尊崇,LDK客餐厨一体,营造家庭多元社交场所,套房主卧设计,卧室带飘窗,业主居住感升级.。
建面约143㎡的四房两厅两卫户型:

全明通透,客餐厨一体大横厅设计,空间阔绰,套房主卧,带独立卫浴以及步入式衣帽间,270°观景飘窗,南向双联阳台,连通主卧和客厅,让家庭成员享有更多的阳光与清风。
从地理位置上看,项目位于江宁中芯-东山板块,交通、商业、教育、医疗等配套成熟,居住氛围十分浓厚!

其开发者——中天美好,隶属中国500强企业中天控股,国家一级房地产开发资质。此次择址东山打造的“云来”系,则是一次产品的迭代创新,汲取宋韵美学精华,看点十足!
项目的精装放风价3.4万元/㎡,堪称东山目前的最低门槛!预计最快将于4月底上市!目前项目的售楼处已经公开,感兴趣的朋友,欢迎实景品鉴!
招商江宁科学园G08规划出炉,拟配建13栋14-18F的住宅
今年首批出让土地动作不断!继伟星河西滨江G03、大校场保利G02之后,位于江宁科学园的招商科学园G08,传来最新动态!
近日,位于江宁科学园的招商G08地块,在南京市规划和自然资源江宁分局官网上公示其项目规划设计方案。
据悉,招商G08地块拟建13栋14-18F住宅,以及其他配套设施。项目拟建总建筑面积约14.41万平方米,其中地上建筑面积约10.42万平方米,地下建筑面积约3.99万平方米,主要功能为住宅及相关配套设施。

根据目前透露的效果图,其建筑立面采用大面积的玻璃窗,顶部造型独特。外观颜值超高。


3月17日南京首场土拍中,江宁科学城G08地块以“黑马”之姿,压轴出场,经过48轮竞价,触顶摇号,最终该地块由招商以18.15亿元竞得,成交楼面价为17145元/㎡!

该地块位于江宁老城区,周边分布不少的厂房,包括南京鑫元机电工业区、金陵金箔股份包装工业园等等。
且区域内缺乏大型商业配套,主要依靠不远处的百家湖商圈、东山商圈以及江宁大学城商圈。教育资源,除了有谭桥小学,未来地块北侧规划有一所小学以及一所幼儿园,西南侧规划有一所小学和一所初中。
值得注意的是,项目北侧靠近天元西路,东侧靠近天印大道,驾车出行十分方便。同时,项目紧邻地铁5号线科宁路站,业主未来出行也十分方便!
而根据此前招商公开的海报来看,江宁科学园G08预计将续写招商百家臻园的神话!招商对此,信心满满!












