
住南快讯
近日,南京市场发生4件大事,一起来关注下:
1、朗拾雨核G05今日公开实景示范区,迭代度假风
2、秦淮金茂府首开售罄,签约率达100%
3、凤凰置业G22地块定名为紫金和旭府
4、交通投资置业南站G86地块:预计7月展点开放
朗拾雨核G05公开实景示范区
今天,万科雨核G05公开实景示范区,一秒走进美学鉴赏人居,随手一拍都是大片的程度!
万科朗拾雨核,作为拾系2.0作品,革新此前的度假风,打造更为静谧高级的归家之旅,此次实景示范区的公开更是所见即所得,无疑是买房人最大的安全感。
主入口设计灵感源于曼谷四季酒店,约6.6米高宝门廊,运用亚马逊绿石镶嵌,堪比五星酒店的选材用料。
再往里走便是未来业主的归家大堂,约8米的层高尽显雅奢气息,细节之处满是万科拾系的迭代升级。
社区共布局5大核心场景,落客庭院、静心庭院、水榭林间、微风草坪、冥想空间等,满足业主全方位的生活所需。
项目规划了8栋高层+5栋低层配套用房,整个小区8栋高层整齐排布,有东西两个大门,人行和车行都能满足,小区西北侧还有个人行单独的出入口,进出还是比较便利的。
万科雨核G05起步户型为建面约99㎡三室两厅,南向三开间设计、约3.4米宽奢横厅、约6.2米双阳台,最大化满足刚需上车人群各类生活所需。
建面约115㎡三室两厅,方正户型三开间朝南、约5米宽奢客厅,且客餐厅LDK一体化设计、约7.7米观景阳台,伫足窗前便可一览四季美景。
建面约139㎡四室两厅,该户型的最大亮点是增加了自定义X空间,业主可根据日常所需自定义空间场景,功能边界不设限,同时打造开放式餐厨,可轻松容纳6-8人用餐,改善人群上车福音。
秦淮金茂府1#楼售罄+100%签约率
有一种热销,叫“金茂府”现象。
就在今天,秦淮金茂府首开1#楼已成功售罄,且签约率达到100%!凭借其自身超强的兑现力、品牌力、产品力、服务力、溢价力,成为2023年南京市场截至目前,中签率最低、去化率最高、签约率最快的项目。
·2023年南京市场截至目前,单户型中签率最低项目——首开1#楼,单一户型(143㎡单户型)单日报名,共511组摇92套房源,中签率18%。
·2023年南部新城市场截至目前,去化率最高项目——6月30日首开当天签约且付首付,首开当场去化率超90%。
·2023年南部新城市场截至目前,签约最快项目——7月3日1#楼成功售罄,且签约率100%。
秦淮金茂府位于南部新城机场跑道公园正核心,机场跑道中轴之上的门户地标,周边有地铁3号线、10号线(二期)、5号线、6号线、13号线(规划)多条地铁线路以及众多文化地标正在加速兑现。
据悉,7月秦淮金茂府热势再燃,3#楼加推在即,143-240㎡智慧科技大宅传奇继续!
紫金和旭府整体规划出炉,共计17栋
时隔数载,本土国企凤凰置业携终极“王炸”产品杀回市场,案名定为紫金和旭府!
去年在南京第二场集中土拍中,位于孝陵卫的城东G22经过7轮竞价,被凤凰置业以23.6亿元总价拿下,楼面价33695元/㎡,毛坯限价49340元/㎡。
凤凰置业G22地块位置绝佳,深居城东孝陵卫双拜岗“腹地”,与钟山风景区直线距离仅约1公里左右,地块周边百余米内又有地铁2号线加持,此外项目周边还拥有龙湖紫金mall、森林摩尔等地标性商业配套,配套高端,生活氛围浓郁。
凤凰置业G22共分为A、B两个地块,打造17栋住宅产品,南边是14栋,北边仅一栋独立地块。其中15栋规划打造为四到七层的洋房产品,较为稀缺!
从目前资料中的效果图可以看出,项目打造的是现代简约风格,立面以灰色为主色调,大面积窗墙比,整体线条流畅,高级感十足。
项目打造建面约130、143、178、249㎡户型产品,采用新装饰的设计风格,玉的元素会比较多一些,整个风格选用更具质感的深色系。
更为惊喜的是,据内部人员透露,凤凰置业G22项目将引入仁恒物业,最大化保障后期业主居住舒适度。
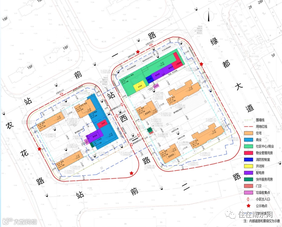
南站G86地块预计7月展点开放
近日,位于南站的纯新盘交通投资置业南站G86地块传出最新消息:预计7月有展点开放。
交通投资置业南站G86地块位于南站西片区,距离南京南站仅300米,周边有万科新都荟、万科都会南苑、旭辉铂悦秦淮等多个已建成小区,据悉该项目将由交通投资置业独自操盘。
G86地块分A、B、C三个分区,整体打造7栋19-27层住宅及部分商业。
A分区用地性质为商住混合用地,拟建4栋高层住宅及1栋基层社区中心、商业;B分区用地性质为商住混合用地,拟建3栋高层住宅及1栋商业;C分区(地下)用地性质为商住混合用地(地下空间出让,停车、人防、配套设施等),拟建地下车库。
其中A分区4栋高层为25-27F高层住宅,B分区则为3栋19层住宅。
目前项目外立面效果图已流出,从图上可以看出,大面积玻璃幕墙配上金属线条,颇具现代美感。
写在最后:
以上就是今天的全部内容,你对哪个楼盘感兴趣?欢迎在评论区留言讨论。









