降首付,降利率,四大一线城市官宣“认房不认贷”……一系列堪称史上最强政策利好接连出台,与购房者而言,史上最为宽松的购房条件,就摆在眼前。
在各大开发商的狂炫产品力的当下,购房者们购房的品质也达到历史高峰。而在南京市场,仁恒就是高品质的代名词。
那句“住仁恒上南外”,已经深入人心。
而继小行的仁恒城市星光收官后,仁恒在南京主城的断供已久,众多“仁恒粉”也只能“望房兴叹”。不过好在,近日有消息传出仁恒要上新了!
据悉,仁恒目前共有6个纯新盘待入市,遍及江北、城东、江宁等板块,而据内部工作人员透露,位于麒麟科创园的仁恒G46(仁恒云谷世纪),将先一步入市。

一起来看一下!
麒麟板块纯新盘仁恒云谷世纪,规划打造12栋16-25F三恒科技住宅。

去年7月份南京第二次集中土拍种,华能以一轮底价拿下麒麟G46地块,成交总价23.8亿元。地块涵盖住宅、公寓、办公等业态,包括12栋住宅、3栋公寓、2栋办公产品以及商业配套等,确定由仁恒操盘。
外立面采用古铜色铝板,银白色铝板、深灰色铝合金材质,窗墙比很高。
在户型设计上,项目预计打造建面约99、105、125、143、165、185㎡六个面积段,7种户型,预计均价在3.5万/㎡,将于10月份前后开盘!
建面约99㎡的三房两卫,南向双阳台,功能性强。

建面约105㎡三房两卫,格局与99㎡户型类似。

建面约125㎡四房两卫,南向宽景阳台,室室带飘窗。

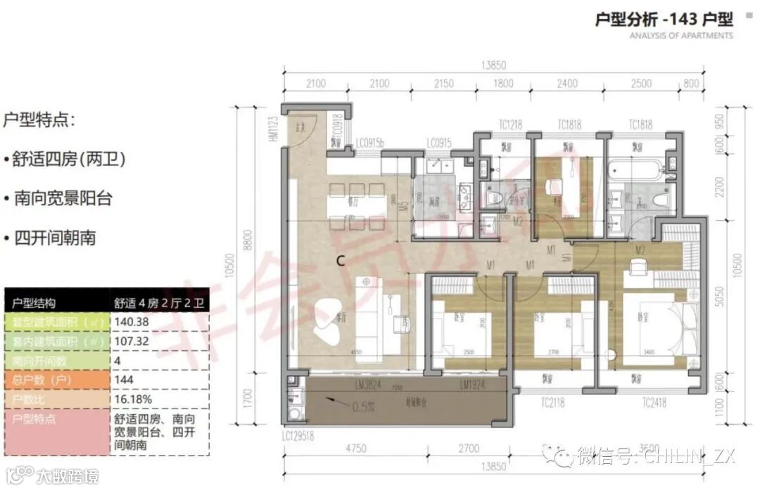
建面约143㎡四房两卫,约76%得房率,南北通透,南向双开间阳台。

建面约165㎡有两种户型,皆是四房两卫布局。


建面约185㎡四房三卫户型,豪华四房,大宽厅,双套间。

据悉,项目预计均价在3.5万/㎡,将于10月份前后开盘!

上周六,仁恒位于江北虹悦城负1F中庭的城市展厅正式公开(江核G03、江北研创园G10、江北城南中心G59),仁恒江北三子梦幻联动,引发市场热议。
江核G03:143-219㎡江核科技大宅,
江核G03此前备案名流出为“江和花园”,项目分为A、B两幅地块,案名分别为江和花园畅园、以及江和花园朗园。项目规划是11栋15-16层的小高层,打造南京江岸的科技大宅。

去年4月土拍中,江核G04地块被颐居以25169元/㎡的楼面价拿下,毛坯限价为4万/㎡。
从目前释放的效果图来看,项目采用的是首层局部架空设计,预计将会用来打造社区泛会所。同时项目配置下沉庭院,估计会打造会所,妥妥的豪宅标配配置。

从外立面效果图来看,玻璃幕墙点缀香槟金线条,还疑似配置270度的转角阳台。

据悉,项目要打造的纯粹改善大平层,户型从建面约143-219㎡不等,直指江北住宅户型天花板!大平层+科技住宅+仁恒品牌的组合,可以预见江核新一代标杆豪宅即将诞生!

有媒体预测,江核G03未来的开盘价格预计将达到4.5万+/㎡,总价预计超千万,江核又一个千万豪宅,值得期待!
江北研创园G10:区域首个科技住宅
江北研创园G10,案名流出为仁恒城市星皓,规划打造5栋25-31层的高层住宅,同时项目引入六恒科技系统,也是江北研创园板块内首个科技住宅、

去年7月,江北研创园G10地块,楼面地价16132元/㎡,最高毛坯销售限价33500元/㎡,由南京新居集团和仁恒置地共同开发,
在户型设计上,将打造建面约108㎡三房两厅两卫和138㎡四房两厅两卫的产品。
建面约108㎡三房两厅两卫户型:

建面约138㎡四房两厅两卫户型:

江北城南中心G59地块:14栋24-26F高层住宅
江北城南中心G59,备案名为城市星瀚,规划打造14栋24-26F高层住宅。

去年7月,城南中心G59地块被浦口国资以23.8亿元拿下,楼面地价15469元/㎡,上市毛坯限价3.05万/㎡,将拟建14栋24-26F高层住宅。

从效果图来看,外立面采用了大面积玻璃幕墙,中间与两边带有格栅,北侧有连廊。

从地理位置上看,项目紧靠江北核心区,项目北侧就是中华中学浦口城南中学,靠近在售的星河时代、金陵星图等楼盘。
值得一提的是,这块地内不设置商业,另外配建社区养老服务用房、快件服务用房。

2022年10月19日,江宁杨家圩G93地块最终被南京金融城建设以266500万元拿下,底价成交,楼面地价18459元/㎡。仁恒将操盘G93地块的住宅部分,商业部分主要由金融城负责。


目前项目已经进入施工阶段,具体细节还未透露,但仁恒的产品力已经吸引市场众多关注。
住南快评:
总的来看,仁恒这六大新盘,涵盖全体客户群,无论你是刚需还是改善亦或是终改客群,总有一盘适合你!
仁恒作为在南京口碑影响力独一档的房企,不仅其自身楼盘较之周边其他楼盘有很高的溢价能力,且曾经凭借一己之力带动燕子矶、小行等板块的房价上涨,对南京市场的影响力,不容小觑。
而接下来,仁恒将迎来阶段性的“供应小高潮”,让我们一起拭目以待!









