南京的产品迭代,比想象中的还快。
今年伊始,先是下沉式会所席卷整个南京市场,目前会所俨然成为高端盘的标配。而后,装标又迎来升级,从材质到品牌,统统卷出新高度……
到如今,南京改善产品迭代,迎来全新的细分领域。最近我们就发现,南京一些新人气爆款项目开始聚焦于户型布局、功能的提升。
比如位于河西南的纯新盘颐和铂樾府。
●颐和铂樾府示范区实景图,以实际交付为准
此前,项目公开全新实景示范区,河西南也迎来一场有关产品力的品质“大秀”。其建面约115㎡科技房,配置约5.9米的客厅大开间,更是让前来参观的购房者们,叹为观止。
●颐和铂樾府建面约115㎡样板间实景图,以实际交付为准
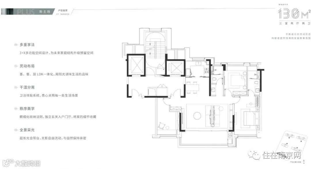
而今,其建面约130㎡的三房两厅两卫户型,将于近期首开!该户型,宛若建面约115㎡户型的Plus版。
约6.8米的客厅大开间,河西南稀缺舒适横厅大三房;灵动岛设计,个性化的空间布局;配置三恒科技系统+超高装修标准,舒适度拉满……
更为关键的是,这款打破常规的硬核户型,全盘仅有68臻席,买少见少,注定是少数人才能拥有楼市“限量版”!

约6.8米开间+创新灵动岛
被这个建面约130㎡的户型狠狠拿捏!
一个好的建筑空间,会基于完善的功能和舒适的体验,赋予家更多深层次的意义。
换言之,户型的空间艺术,带来的是生活方式、生活品质的引领。
颐和铂樾府建面约130㎡的户型,从楼栋布局来看,位于5#楼,两梯两户配置,类私梯入户。值得一提的是,整栋楼仅有建面约130㎡的一种户型,户型设置的唯一性,赋予业主居住圈层的纯粹性。
●颐和铂樾府鸟瞰图,此效果图仅为示意,实际以交付为准
有颐和铂樾府建面约115㎡户型这个“珠玉”在前,人们对于此次颐和铂樾府全新推出的建面约130㎡户型,抱有很强的期待感。
但不得不说,当走进颐和铂樾府建面约130㎡的升级样板间后,还是被“狠狠”惊艳到了!
●建面约130㎡的户型示意图
这个户型做得也太“秀”了吧!每一处空间,都藏着惊喜等待人们去挖掘!
先看整体,约13.4米的IMAX级南向采光面,身居室内也能沐浴阳光,让光影成为生活的点缀。
●颐和铂樾府建面约130㎡样板间实景图,以实际交付为准
而据网上房地产数据显示,项目建面约130㎡户型的得房率高达约78%。同时典型的飞机户型设计,减少过道浪费,业主将获得更多的家庭实用空间!为生活预留多种可能,创造出惬意、愉悦的居住体验!
约3.1米层高搭配约6.8米宽的大客厅,市场同面积段中罕见的朗阔空间,为业主增添“超配”的生活松弛感。
●颐和铂樾府建面约130㎡样板间实景图,以实际交付为准
同时,经典的LDK设计,则让客厅、餐厅、厨房空间连为一体,为业主打造家庭超级聚厅,日常多元生活场景在此皆可满足,绰绰有余!
当然,颐和铂樾府既有经典,必然也有创新。在颐和铂樾建面约130㎡舒适宽厅中,就藏着一个大胆的创新!
众所周知,被颐和铂樾府圈粉的客户,多因拥有相同品位而相聚。但即便如此,作为城市高端买家,他们的生活方式,都千人千面。
如何让业主,拥有定制化的空间?让每个人踏入其中,就萌生各自理想化的生活场景?
在建面约130㎡的阔绰客厅内,颐和铂樾府融入创新“灵动岛”设计!(温馨提示:灵动岛涉及改造部分为非交付标准,需交付后自行调整)
●颐和铂樾府建面约130㎡样板间实景图,以实际交付为准
3+X灵动岛的布局,在X空间内,空间是可随心定制的,生活场景亦是灵活自由的。
热爱生活的社交达人,可将其作为会客的吧台,或三五好友小聚,或家庭聚会,让日常生活氛围,多一份温馨,多一份自在。
文艺青年们,也可打造成家庭的展厅,臻藏的手办、古玩藏品,皆有容身之处。
有孩子的家庭,也可将其作为独立的小型活动室,或是琴房,伴随儿童快乐健康成长。
……
空间布局多一份灵动优雅,家庭空间互动、独立两相宜。
此外,客厅连通约6.8米的跑道级阳台,搭配约1.6米进深的阳台尺度,也将室内公区进一步延伸。
近乎落地效果的阳台,除了满足日常基本的晾晒,在天气晴好的午后,踱步至大宽面阳台,阳光拂过脸庞悠然且惬意。
盛放家庭烟火气的厨房为U型设计,开间约3.25米,进深约2米,开阔的空间尺度,更加方便日常烹饪,一眼便能俘获家庭掌勺人的心!
●颐和铂樾府建面约130㎡样板间实景图,以实际交付为准
进入建面约25㎡的主卧套房内,开间约3.5米,搭配独立卫浴,给业主留足居住的舒适感与安全感。
用匠心探寻舒适的边界,这才是品质改善住宅有的素养。颐和铂樾府建面约130㎡的灵动户型设计,就向业主展示一种进退自如,从容随心的自在生活。

科技赋能,高定装标
焕新演绎河西南精奢改善
作为全南京“内卷”最为严重的超一线板块之一(数据来源:克而瑞),河西南聚集了行业TOP级的龙头房企及其稳定输出的高标产品系,河西南每一个全新的项目亮相,必定要接受城市居者的苛刻检验。
因此,在优秀的户型骨架之上,还需要充盈着卓越品质感的细节,用出挑的产品、诚意的细节,牢牢锁定品质买家的目光,方能“卷”出重围。
那颐和铂樾府,是如何演绎的呢?
科技赋能舒居,熨烫生活中的每一处褶皱
首先,颐和铂樾府植入三恒科技系统,恒温、恒湿、恒氧,感受科技带来的舒居生活。
●示意图
南京的夏季闷热,冬季阴冷,科技住宅“四季如春”的居住效果格外让人心动。
颐和铂樾府则通过空气源热泵系统调节,实现制热、制冷、分户式控制调节温度,采用顶棚以及部分墙面铺设毛细管辐射调温,有效减少冬季暖气太干、夏季空调噪音太大的新中产人居痛点。实现四季如春的室内效果。
南京的梅雨季节,潮湿粘腻,往往让人苦不堪言。
颐和铂樾府通过新风热交换除湿技术,对室内进行加湿除湿,有效保持室内控制恒定范围的湿度状态。解决潮湿天气困扰的同时也能有效降低冬季流感等病毒活性,守护业主舒适健康生活。
针对日常烹饪的油烟以及二手烟等家庭生活中不易忽视细节问题
颐和铂樾府采用全屋置换新风系统以及新风除霾系统,通过除霾过滤层、温湿度调节层装置对新风过滤除霾,提升室内空气的品质,居住环境相当Nice!
隐奢的细节控,值得人静心慢品
走进颐和铂樾府的样板间内,不仅能看到简约雅致的室内装修美学,还能感受到各种匠心、透露出质感的装修细节。
独立入户玄关,除了为家庭营造附加的收纳空间,也减少了邻居的影响,人居的私密感与归属感,让人一见倾心。
入户门采用子母铸铝门,南京市场同面积段户型中较为罕见。同时兼具耐腐蚀、保温、隔音等效果,性能稳定,为业主营造静谧舒适的居家环境。
玄关处采用活动式层板设计,增加收纳空间,让业主不必做到“断舍离”,生活也能井然有序,毫无杂乱感。此外,玄关柜内设计鞋柜、配备了智能鞋柜精灵,有效杀菌、消毒、除异味,贴心又实用。
客、餐厅地面采用大面瓷砖通铺,雅致灰的纹路瓷砖与冰裂蓝岩板背景墙相互呼应,色彩运用和谐统一,呈现高级质感,整体空间也更为奢阔大气。
●颐和铂樾府建面约130㎡样板间实景图,以实际交付为准
客厅顶部采用无主灯设计,顶部磁吸灯条,搭配游艇风格的弧形吊顶堪称点睛之笔。成本高昂、造型灵动美观,在细节处彰显项目的隐奢质感。
阳台墙面采用艺术漆,漆面柔和、平滑、细腻,相比于一般涂料,更具耐磨、耐湿、耐污染等效果。
主卧卫生间还精心配置了美妆冰箱,适宜的温度环境保障女性业主的面膜、精华等化妆品、护肤品的鲜活。此外双面镜柜,操作方便,美观且实用,让业主早起晚归的状态调整到最佳。
高标装修品牌,征服改善圈
在装修的品牌上,颐和铂樾府也耗费了不少心思,样板房内目光所及的是:
松下智能化四合一门锁,便捷又安全;厨房内,油烟机、三眼灶台来自欧洲百年品牌雅士高;博世洗碗机;铂浪高大单槽花岗岩水槽和抽拉龙头;
●颐和铂樾府建面约130㎡样板间实景图,以实际交付为准
卫生间内,高仪的墙出龙头和顶喷花洒;唯宝的马桶和台盆……以高标品牌,呈现超凡的住宅品质,征服挑剔的改善客群!(特别提醒:实际交付房屋配备以上品牌或者同等档次品牌的家装产品。)
●颐和铂樾府建面约130㎡样板间实景图,以实际交付为准
此外还有,入户无门槛、客卫三段式干湿分离、独立扫地机器人工作仓……多个基于人居习惯的细节质感,构筑一种更纯粹、更平衡的空间艺术。
老实说,如颐和铂樾府这般,细水长流的打磨,充满人性化的细节,还有一丝不苟的匠心,真的很难不让人心动!
拒绝“画饼”,实景呈现
所见即所得,值得亲临品鉴
更为重要的是,相比目前大部分项目的“画饼”,颐和铂樾府的品质感,是看得见、摸得着的。
楼盘的质感仅凭图纸无法精确传达,更需要“眼见为实”的亲身体验。前不久,恰逢颐和铂樾府实景示范区正式公开!
小区归家大门、建筑立面、泛会所、南入户大堂、样板间(部分)等实景,堪称楼市产品力的一次伟大炫技!
1、恢弘归家大门
跨度约50米的府院大门,臻选蓝眼睛花岗岩等高档石材,恢弘归家气场,扑面而来!
●颐和铂樾府示范区实景图,以实际交付为准
从府院大门踱步至仪式水景而后到四季花园最后到阳光草坪,层层递进的四进式归家景观,将度假感融入归家日常,让业主的归家之旅也成为宁静惬意的归家之旅。
●颐和铂樾府示范区实景图,以实际交付为准
2、“小而美”稀缺泛会所
此外,项目还打造了“小而美”的泛会所空间,基于业主生活习惯,保留了业主真正需要且会高频次使用的功能,如会客、健身房、学堂、茶室、下沉庭院等功能场域,将生活、艺术、社交等功能融于其中,满足不同年龄段的业主的生活需求。
让会所空间成为家庭空间的美好延伸。
●颐和铂樾府示范区实景图,以实际交付为准
3、“金属感”铝板高颜值立面
小区整体建筑立面以金属光泽感的大面铝板为主要材质,搭配简洁流畅的线条,呈现高级简约的城市美学封面。
●颐和铂樾府示范区实景图,以实际交付为准
4、典雅高级公区呈现
目前颐和铂樾府的入户大堂实景已经呈现:约5.8米的双层挑高大堂,气派非常,墙面由岩板、金属、木纹铝板、大理石等材料组成,高档材质传递的高档质感已经归家的排面,已经提前兑现,只等买房人前去品鉴!
●颐和铂樾府示范区实景图,以实际交付为准
住南快评:
此前,颐和铂樾府堪称不可能的建面约115㎡的科技三房,就为河西楼市注入前所未见的新鲜活力,南京品质购房者们也因此有了全新的寄托。👉:超配享受!河西南新晋“综合型学霸”,出场即出圈!
而今,颐和铂樾府建面约130㎡的灵动岛户型,又再度以打破常规的创新设计,焕新河西乃至整个南京市场对舒适人居的注解。
进化的空间艺术,带来进阶的舒适享受。
值得惊喜的是:近日,颐和铂樾府官方宣布将即将首开,且诚意推出建面约130㎡的楼市值得甄藏的“限量版”户型,首付(最低)仅需约180万起,圆“家住河西”的终极置业理想!数量有限,真“手慢无”!
免责声明:本项目推广名为“颐和·铂樾府”,地名办核准名/备案名为“颐和铂樾府”;开发公司为:“南京颐铂居置业有限公司”;2、本资料为要约邀请,不作为要约或承诺;3、相关宣传内容不排除因政府相关规划、规定及出卖人分期规划、未能控制等因素而发生变化;4、买卖双方的权利义务以双方签订的《商品房买卖合同》及其补充协议、《全装修交付标准确认书》、附件等书面文件为准;5、本资料发布的内容为2023年9月30日前的信息,敬请留意最新资料。






