作为传统销售旺季,“金九银十”是房地产市场难以回避的话题。楼市新政揭开了传统销售旺季的序幕,9月已接近尾声,各项政策利好已接二连三落地,新盘入市亦加快脚步。
“金九银十”不仅是一年中房地产销售的重头戏,同时也是开发商心目中“必争”的“黄金时间”。
接下来,住在南京网带大家一起来了解一下南京近期各盘的“大动作”,建议大家买不买房都来看看!
1、仁恒云谷四季周五公开售楼处!
南京地产一哥仁恒爆出大动作,位于麒麟板块纯新盘,仁恒云谷四季预计周五公开售楼处!
去年7月份南京第二次集中土拍中,麒麟G46地块成交总价为23.8亿元。
项目打造12栋住宅、3栋公寓、2栋办公产品及商业等配套。其中,项目住宅部分由仁恒操盘,将打造三恒科技住宅。
据网传,外立面采用古铜色铝板,银白色铝板、深灰色铝合金材质,窗墙比很高(最终以开发商公布为准)
在户型设计上,项目预计打造建面约99、105、125、143、165、185㎡六个面积段,7种户型,预计均价在3.5万/㎡。
建面约99㎡的三房两卫,南向双阳台,功能性强。
建面约105㎡三房两卫,格局与99㎡户型类似。
建面约125㎡四房两卫,南向宽景阳台,室室带飘窗。
建面约143㎡四房两卫,约76%得房率,南北通透,南向双开间阳台。
建面约165㎡四房两卫,四开间朝南,改善优选。
建面约185㎡四房三卫户型,豪华四房,大宽厅,双套间。
2、瑞香园周六公开实景示范区!
“奥体粉”请注意!奥体建设G11瑞香园本周六即将公开实景示范区,一切美好眼见为实!
据悉,这是奥体建设首进江北的“植物园”系作品,值得期待!项目打造6栋住宅,包括17F小高层以及30-32F高层住宅。
瑞香园将打造江北核心区首家7.2m挑空双泛会所,高端改善属性拉满,另外这个项目在出让时就要求,不可以配建社区底商,所以居住氛围会比较浓厚,整个社区更纯粹。
建筑立面采用红棕色、深灰色铝板一体板及铝单板,加之超大窗墙比,强调简约大气又灵动有力的建筑造型,设计线条简洁明快,体态挺拔,充满现代科技感。
在户型设计上,项目打造建面约109㎡、117㎡、143㎡,为改善客群量身打造,且项目为全系奢华精装,不卖升级装修包!
建面约109㎡的三房两厅两卫户型:
建面约117㎡的三房两厅两卫户型:
建面约143㎡四房两厅三卫户型:
3、都会峯范预计国庆期间公开实景示范区!
燕子矶新核卷王来了!金地35年来最高端的峯范产品系——都会峯范,预计十月一期间公开实景示范区!
据悉,金地峯范在都会紫京基础上7大升级,该项目为南京三万品质巅峰,具有划时代意义!
同时,金地在“都会紫京”的基础上进行了7大升级,包括升级外立面、升级装修标准、升级户型、升级会所、升级独家微气候系统、升级智能化、升级产品系……
外立面采用大面积玻璃幕墙+局部铝板线条的建筑立面,颜值高、品质高!
项目升级会所效果图如下,光看效果图就已经将期待值拉满,这个国庆小长假可以去打卡拍照了!
项目共打造三大户型产品,面积段为89、111㎡,其中89㎡将打造两种不同户型,给不同需求的买房人更多选择。
建面约89㎡的边户三房两厅一卫户型:
89㎡为南北通透的边户户型,卧室飘窗到阳台全部设计有玻璃窗转角,更大程度扩大采光面和增加视野感。
建面约89㎡的三房两厅一卫户型:
户型方正,大面宽双联宽景阳台,三开间朝南,阳台270度转角窗,全大面积玻璃外立面,U型厨房设计,三段式分离卫生间。
建面约110㎡的三房两厅两卫户型:
三房横厅设计,客厅的开放区可作为书房使用,整体户型内部开放空间很大,最大亮点即是,G型厨房设计,相当于自带餐边柜,空间利用率高。
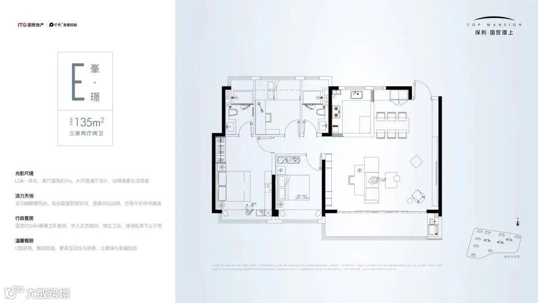
4、保利·国贸璟上近期将公开实景售楼处!
燕子矶重磅纯新盘,又出全新动态!保利·国贸璟上,近期将公开实景售楼处!
项目是由厦门国贸携手央企保利,带来全新的“上”系产品,值得期待!项目拟配建11栋29-32层住宅,预计将打造89-135㎡户型,自带下沉式庭院。
其建筑立面采用大面积玻璃落地窗搭配简洁金属线条,整体呈现出现代简约的高级建筑质感,丰盈城市天际线。
在户型设计上,保利·国贸璟上打造的是建面约89-135㎡的五种全生命周期户型,将购房者一网打尽!
建面约89㎡的三室两厅一卫户型:
LDK一体化设计,双联宽景阳台,卫浴干湿分离,U型厨房设计。
建面约99㎡的三室两厅两卫户型:
南向双阳台,两个卫生间均为全明设计,主卧套房带飘窗。
建面约115㎡的三房两厅两卫户型:
面宽约5.2米的横厅设计,搭配约8.2米的南向双阳台,尺度优越。双卫带飘窗且为全明设计。
建面约135㎡的三房两厅两卫户型:
LDK一体化设计,客厅面宽约7米,主卧套房开间约3.6米,U型厨房设计……细节舒适度拉满,适合追求生活一步到位的高改客群。
5、建发璞云本月底公开实景示范区和样板间!
雨核人气新盘建发璞云最新动态曝光,预计本月底公开实景示范区和样板间!
距离项目一街之隔,就是约55万㎡的华润万象系综合体项目(在建中),包含万象系商业、Block商业街,以及约200米地标写字楼,预计将于2024年正式开业。
建筑立面设计上,璞云项目采用飞檐屏塔冠和超大窗墙比,映射出天青色天空。同时采用金色勾边宋韵杆件,既再现宋韵建筑,又复现宋代天青汝窑镀金边。
此前,建发璞云户型已正式亮相,分别是:99㎡、106㎡、115㎡、128㎡、143㎡,另还有178㎡户型暂未公布。
建面约99㎡三房两厅两卫:
拥有双阳台设计,S墙收纳功能,以及270°景观飘窗以外,另外,其北次卧飘窗设计,是目前南京在售项目同面积段中唯一一个采用270度转角飘窗设计的户型。
建面约106㎡三房两厅两卫:
客餐厅开间约3.9米,进深近6米,整个餐客厅面积达到了约24㎡,阳台开间约6.7米,阳台联通南向次卧空间,极大的延伸了南次卧空间的边界感。
建面约115㎡3+1房两厅两卫:
户型方正,三开间朝南,整个餐客厅采用LDKG一体化设计,空间上可以功能独立、自由搭配,无论是采光、通透性、舒适度、功能合理性都做到了极致。
建面约128㎡3+1房两厅两卫:
户型方正,客餐厅开间约6.4米,进深近7.7米,整个餐客厅面积约50㎡,这种尺寸基本秒杀市面上所有同等户型产品,舒适度非常高。
建面约143㎡4+1房两厅两卫:
南向近15米超大开间,四开间朝南,户型方正,整个餐客厅采用LDKG一体化设计,要知道,这个采光面,在南京市面上同等产品几乎绝版。
6、象屿华发铂萃云湾预计国庆节后公开入市!
百家湖“爆款”上新啦!象屿华发铂萃云湾预计国庆节后公开入市!
铂萃云湾拟建9栋小高层住宅及相关配套设施。其中,1栋17F住宅产品,以及8栋18F住宅产品。从效果图来看,项目外立面以咖色金属线条搭配上蓝灰色LOW-E中空玻璃,简约大气又不失高雅美感。

住在铂萃云湾,向北驱车5-10分钟左右,即可享受南站众多大型商业综合体带来的休闲、购物、一条龙生活体验;向南驱车5分钟左右,就可到达百家湖商圈;向东步行5-6分钟,即可达到江宁大润发,日常休闲购物都能满足。

社区内部打造双轴、一园、双会所、一环、高定花园的空间格局,以丰富功能为前提,场域灵魂与美学生活为目的,给业主更尊崇的归家体验。




住南楼评:
两个字形容现在的楼市政策一一给力!
金融端很给力,LPR降至低位,部分城市更是下调首付比例,一定程度上减少了上车的难度!政策端也很给力,目前楼市迎来多组政策红包。
政策支持+金九银十传统销售旺季,“憋”了几个月干劲儿的开发企业们也加快了推盘的速度,你对哪个新盘感兴趣?这个十月一准备好去看房了吗?欢迎在评论区留言讨论。






