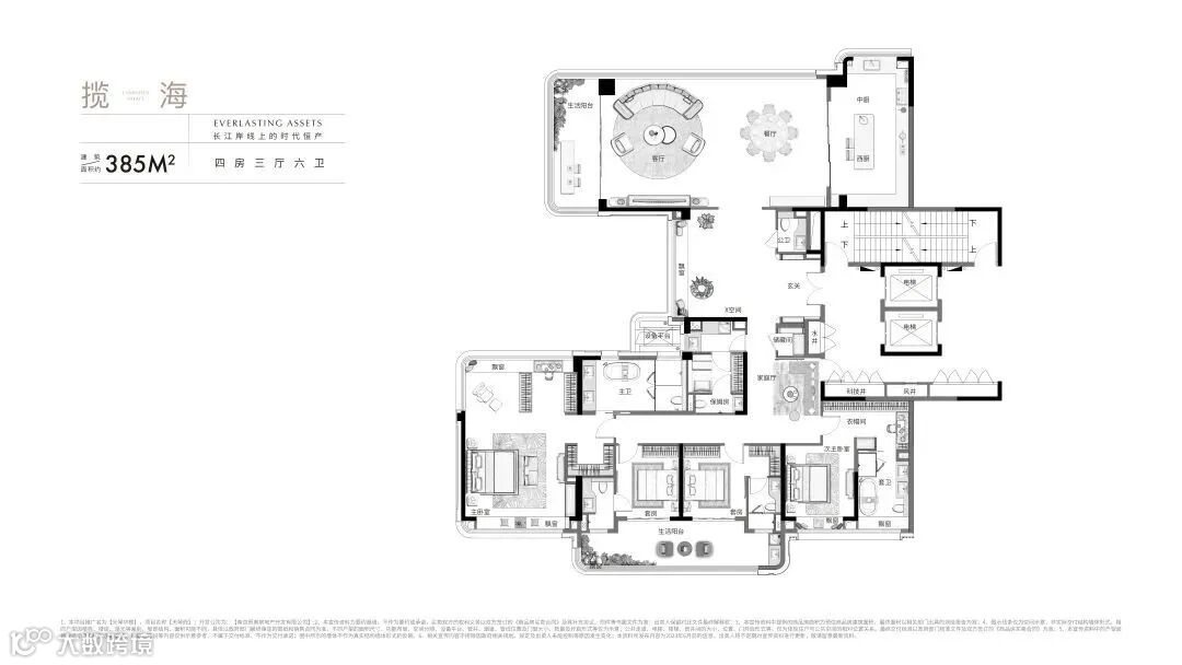
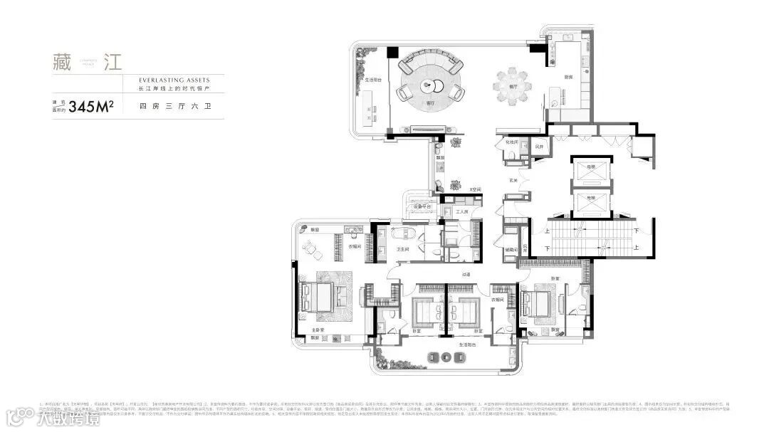
长江岸线上的时代恒产——天琴华樟,海上森屿主题示范区即将公开;
“站在巨人肩膀上”的中宁府,开放工地,无惧“素颜”亮相;
打破河西不可能的115㎡科技房,颐和铂樾府高奢实景公开;
誓要刷新河西顶豪天际线的伟星长江之歌,月底公开示范区;
河西第二座丹若园——源尚丹若府,蓄势待发……
天琴华樟,海上森屿主题示范区即将公开!
天琴华樟位于河西青奥滨江,与长江岸线最短直线距离仅约400米,是当之无愧的长江岸线上的时代恒产。
项目周边还有江东中路,德基广场、IFC、河西中央商场,河西金融城,河西儿童医院,鱼嘴湿地公园等等……各项生活配套应有尽有。
NO. 2|河西青奥滨江-中宁府
中宁府,“央企匠筑 透明工坊”开放品鉴日活动于近日盛大开展!
通过工地工法样板间的实景展示,将项目“素颜”曝光!不加装饰与掩饰,将本真展示在众人面前,迎接大众审视的目光,需要强大的实力和底气。
中宁府,做到了。
中宁府号称“中国府”的2.0升级版,由能建城发(原葛洲坝)倾力打造的最高端“国府系”产品。项目规划规划8栋26-29层高层住宅。

“长江水晶瀑布”曲线立面,中宁府打造建面约3000㎡的会所以及建面约900㎡6个泛会所,创新“1+N”会所体系,为塔尖圈层营造的高端场域!
建面约198㎡四房两厅三卫:

建面约248㎡四房两厅三卫:

建面约298㎡五房两厅三卫:

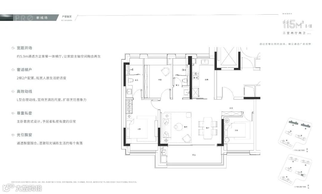
NO. 3|河西南-颐和铂樾府
颐和铂樾府,实景示范区目前已经公开!
颐和铂樾府规划打造5栋17层的小高层,共计306户。在户型设计上打造建面约115、122、130、175㎡的四种户型,为改善客群量身定制。

其中建面约115㎡的三房两厅两卫户型,更是打破河西不可能,给予购房者以“超配享受”!

板块目前罕见的小户型三恒科技房;两梯两户配置,相对独立门厅;约5.9米的客厅大开间;装修标准同频千万级豪宅,首付仅需150万起步,让河西南的门槛变得亲民至极!
建面约115㎡户型,两梯两户的配置,每户拥有类独立的入户门厅,私密感和尊崇感兼具。
层高约3.1米,板块内罕见。约5.9米的客厅大开间,搭配同尺度阳台,营造整体约25㎡体量的多元社交场所。

客厅、餐厅地面采用大尺寸瓷砖通铺,菲格罗亚灰的自然纹路,搭配贝加尔湖冰裂蓝的客厅岩板背景墙,营造出流畅的大气空间感。
主卧卫生间还精心配置了美妆冰箱和双面镜柜,细节妥帖。
在装修标准上,厨房油烟机、燃气灶来自百年品牌雅士高;博世洗碗机;铂浪高大单槽花岗岩水槽和抽拉龙头;卫生间使用高仪的墙出龙头和顶喷花洒;唯宝的马桶和台盆,品质与细节兼得。
同时项目打造4重归家礼仪以及泛会所空间。从目前项目已经公开实景示范区中,可窥见一二。


NO. 4|河西青奥滨江-伟星长江之歌
伟星长江之歌,月底公开实景展示区
伟星长江之歌,其前身为伟星G03地块位居南京城市艺术文化地标聚集区——青奥滨江板块,立于南京湾区,地处长江岸线之上。
目前项目虽然并未正式亮相,但已有瞩目惊世细节露出,势必刷新河西顶豪天际线。
根据规划,项目打造6栋23F高层住宅。
其外立面首创360°环幕立面,寓意为南京新天际线曲谱,城市之歌;据悉北立面也全部运用玻璃打造幕墙,弧面转角,搭配香槟色金属线条,外立面流畅而高级,现代又摩登,与长江呼应,营造流动美学。

值得一提的是伟星还将与朗绿科技合作,打造先进的六恒科技住宅,用科技点亮舒适人居。
而在户型方面,长江之歌打造建面约248㎡、315㎡、397㎡、498㎡的滨江大平层,总价预计1500万起步。
建面约248㎡户型:
入户双开门,玄关处带储藏室,未来业主可收纳更多的鞋子与衣物。公区为LDKB一体化设计,约6.5米的横厅直接于阳台互通,超大的落地窗,豪奢气场拉满!主卧大套间内,配置步入式衣帽间+主卫双台盆+浴缸,在细节处盛放主人的尊奢居住体验。
NO. 5|河西南-源尚丹若
作为河西第二座丹若园,源尚丹若继承了“植物园”以人为本的产品设计理念,延续丹若园科技大宅的标准,匠心打造契合国际滨水人居的生活范本,势必续写丹若传奇!

项目联手南京邦建、上海魏玛景观、香港郑淑芬室内设计三家大师设计团队,以大师手笔,匠心设计产品细节;
此外,还打造约1800㎡高定宝格丽酒店风格会所,内含健身锻炼、品茗静读、涵养意趣等等多功能空间,为业主定制丰富多彩的高品质生活。



项目仅规划4栋楼,围合式布局,约9000㎡大面积中央景观,打造森系生活;公建化立面,铝板搭配金属格栅,配以大面积玻璃窗,外观大气优雅,融合阳台圆角设计,便于未来南向观河景。地上挑高入户大堂预计层高超6.3米,彰显豪宅仪式感。

项目打造建面约198㎡四房户型(还有少部分建面约165㎡以及172㎡两种户型),最大程度保障圈层的纯粹性,专为改善需求定制。
今日,官方公布的户型图如下:

四开间朝南,约9.35米的跑道级观景阳台,约6米的大横厅设计,LDKB一体化设计布局;
三套房设计,四卫全明,全屋带飘窗,让每一位家庭成员的生活极致的舒适。
超36㎡的超级大主卧,独立衣帽间、双台盆、270度的转角飘窗搭配浴缸,纵享尊奢生活。







