搜索
首页
大数快讯
大数活动
服务超市
文章专题
出海平台
流量密码
出海蓝图
产业赛道
物流仓储
跨境支付
选品策略
实操手册
报告
跨企查
百科
导航
知识体系
工具箱
更多
找货源
跨境招聘
DeepSeek
首页
>
疯抢38轮,南部新城爆了!南京土拍揽金84.63亿,多家民企首进!
>
0
0
疯抢38轮,南部新城爆了!南京土拍揽金84.63亿,多家民企首进!
启明星楼市
2025-04-23
0
刚刚,
南京
成功出让9幅地块,其中涉宅地块8幅,
共揽金84.63亿
。
今日出让地块中,南部新城G09地块竞争最为激烈,引发38轮竞价,溢价率7.12%。
来看具体成交信息:
南部新城G09
地块历经
38轮竞争
后,由
宸嘉发展与南部新城会展中心
竞得,成交总价
11.14亿
,楼面价
32309元/㎡
,
溢价率7.12%
;
雨核G09地块
由
南京十朝春置业
底价
竞得
,
成交总价
10亿
,楼面价
16513元/㎡
;
雨核G10地块
由
南京十朝春置业
底价
竞得
,
成交总价
0.06亿
,楼面价
1402元/㎡
;
桥林新城G11地块
由
浦口经济开发
底价
竞得
,
成交总价
5.12亿
,楼面价
6086元/㎡
;
浦口城南中心G12地块
由
浦口国资
底价
竞得
,
成交总价
14.06亿
,楼面价
10311元/㎡
;
浦口高新G13地块
由
江北城投
底价
竞得
,
成交总价
8.39亿
,楼面价
10030元/㎡
;
江核G02地块
由
江北建设投资
底价
竞得
,
成交总价
11.22亿
,楼面价
18017元/㎡
;
江核G03地块
由
扬子江置业
底价
竞得
,
成交总价
14.3亿
,楼面价
17912元/㎡
;
江核G04地块
由
新居置业
底价
竞得
,
成交总价
10.34亿
,楼面价
17904元/㎡
。
01.
溢价7.12%
南部新城G07地块竞价38轮成交
南部新城G07地块是板块内首幅低密度宅地,稀缺程度可想而知,拍地之前就备受关注,今天竞价38轮才成交,
由
宸嘉发展与南部新城会展中心
共同竞得。
据了解,宸嘉发展
专注于做高端豪宅
,在
上海
等城市皆有布局,此前
已接手泰禾的路子铺地块
,非常有魄力和胆识。
而今进入南部新城板块,结合地段优势,其产品已十分令人期待!
上海隽嘉会
在位置上,G07地块位于南外南部新城校区的西北侧,南侧紧邻南部新城会展中心、奥体建设共同开发的G77地块,南侧与南外南部新城校区仅隔两条街道,位置很优越。
这几年,南部新城的规划配套逐渐兑现,堪称兑现程度最高的板块之一,全民健身中心、活力水环、中分国际交流中心、
京东
Mall等公共配套已经落地兑现。
未来,南
京首座万象城预计在2026年开业;5号线北段已开始全线跑图,今年通车。
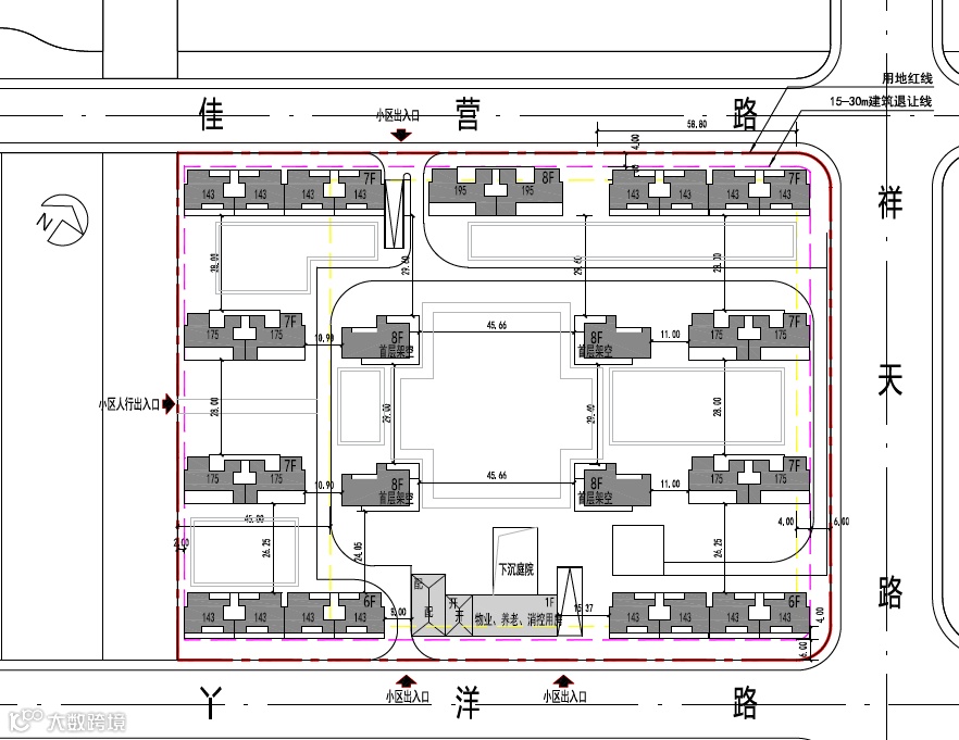
据江苏土地发布的
可研方案,
该地块可排布2栋6层、6栋7层、5栋8层的洋房产品
,户型为143㎡、175㎡、195㎡、210㎡共四种
,叠加四代宅的露台,实际空间感和居住体验感会更高。
再搭配以
下沉庭院
、
首层架空、集中式绿地
等,将会是南部新城难得的低密住区。
仅为方案示意,最终以规划设计方案为准
除去南部新城以外,城南雨核今天也出让了一幅宅地,一年多未上新的雨核将迎来新项目。
此外,今天出让的地块中,有6幅位于江北,其中仅江核就独占3幅宅地,都是容积率为1.8的低密地块,
未来江核仍然是江北的新房供应主力军
。
02.
民企频频进入南京
南京近期新房市场热度很高
从4月2日珠江路地块到今天南部新城低密宅地,一个显著的变化就是:
民企开始纷纷到南京拿地,持续看好南京的发展
。
细数今年以来在南京拿地的民企有:
南通
亚伦竞得鼓楼滨江G96地块,溢价16.24%;
杭州
房企长住集团竞得珠江路G05地块,目前已官宣将与中堃置业合作开发;
宸嘉发展联合南部新城会展中心竞得南部新城G07地块。
同时,今天竞得雨核G09地块的
南京十朝春置业
,也是民企,
G09地块是其首次落子南京
。
在南京土拍很长一段
时间
都是由国企、城投托底的情况下,民企纷纷进驻南京,意味着开发商逐步恢复信心,看好南京的新房市场。
而最近,南京的新房市场也确实十分令人惊喜。
南京新房价格已经实现五连涨
据国家统计局
发布的2025年3月全国70城住宅销售价格
报告
,3月全国70城有24座城市新房价格环比上涨,其中
南京3月新房价格
环比上涨0.1%
,同比下跌2.1%
。
至此,从去年11月以来,南京新房价格已经连续5个月上涨。
今年首个开盘日光的项目已诞生
4月15日,鼓楼滨江洋房沁百合首开
1、2、3、7号楼,
均价53259元/㎡,34套房
开盘当天全部卖光!
这是今年首个开盘日光的项目,
给市场注入了一针强心剂。
Hot articles
热文推荐
六合一景点被拍卖抵债!
南京2025年500个重大项目名单公布!
负债1300亿破产重整?苏宁回应!
南京春节长假接待游客1690万人次!
Contact us
商务合作
转载|爆料|买房|洽谈合作
欢迎联系我们:状元楼(jiapuyixing)
Firstar Media family
启明星新媒体矩阵
-END-
热点话题:
两会定调:促进楼市止跌回稳!
欢迎关注视频号
“住在南京网”
留言讨论
【声明】内容源于网络
0
0
启明星楼市
住在南京,看启明星。专注地产一线20余年的资深媒体大V,为您实探有趣、有料、有态度的楼市新鲜事儿。
内容
2152
粉丝
0
关注
在线咨询
启明星楼市
住在南京,看启明星。专注地产一线20余年的资深媒体大V,为您实探有趣、有料、有态度的楼市新鲜事儿。
总阅读
65
粉丝
0
内容
2.2k
在线咨询
关注