项目名称:北京保利We Do教育机构
项目地址:北京市朝阳区
设计单位:建筑营设计工作室
主创设计:韩文强
参与设计:王莹 李云涛
建筑面积:1300平方米
设计时间:2015年10月至2016年1月
施工时间:2015年12月至2016年3月
摄 影:夏至

项目旨在挖掘和培养孩子在音乐方面的天赋和潜能,提高综合艺术修养。设计思考的首要问题是突破固化的结构限制,实现开放、自由、灵活的现代教学环境,让孩子与空间产生亲密感。

私教区

走廊

音乐教室
项目空间分布于商场一层七个柱跨之间,基本结构是框架+剪力墙,附带约300平方米的地下室。首先尽量拆除所有砌块墙体,打通原本封闭的房间,用一条走廊连接教室及公共空间,音乐教室、私教室、接待厅、剧场和排练厅等所有教学空间向商场中庭水平展开。

舞蹈教室

图书区
坡折的屋顶延伸至墙面和地面,构成连续的教室和公共区域。整个教学空间好似一座半透明的“室内村落”,根据使用需求呈现出多样的尺度与质感空间,让孩子在亲切、自然、舒适的环境中演奏和学习。


中庭
引入绿色景观柔化结构墙体的限制,让教学与自然时刻保持接触。竹庭院构成入口大厅的景观焦点,同时是上下层交通转换的节点。中庭局部拆除了楼板,竹庭院延伸至地下的舞蹈教室、瑜伽教室和办公空间。利用教室之间的墙体空隙创造景观区,形成室内的“室外”空间。植物与书架结合,让孩子的阅读与休息轻松、自然地发生。

排练厅

小剧场

小剧场舞台
音乐教室墙面采用三层中空玻璃进行隔音,吊顶采用木纹转印铝制格栅和铝板,坡屋顶的形态和格栅的起伏表面,起到混音作用。小剧场空间高度有限,不设吊顶,仅在人的尺度范围内采用木质吸音板,在视觉上让空间变高,同时取得良好的声学效果。

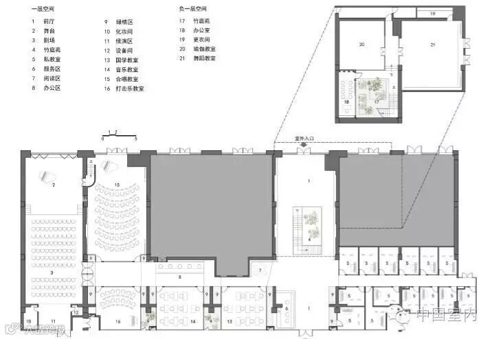
平面图
来源:中国建筑学会室内设计分会(CIID)
《中国室内》2016年10月期
您想与全国的一线设计师们分享更多《中国室内》的精彩内容吗?只要加入中国建筑学会室内设计分会,您就会免费获赠中国室内设计界权威学术性刊物,回复“入会”获取加入CIID的方法,咨询电话:010-88356044


