

隐
蔽
与
通
透
的
完
美
结
合
这是为一对从事娃娃艺术的夫妇设计的工作室和住宅。
工作室不光要能进行工作会议,
还要如同画廊般展示娃娃艺术品。
这里应该是一个可以和朋友聚会的愉快空间。
工作室和住宅都需要具有开放感,
同时拥有恰当的隐私。
建筑师在春天到达这里的时候,
感受到这个城市的葱郁,
在大阪府箕面市,
城市地区绿化覆盖率达到40%以上。


既然要营造一个开放也保护隐私的建筑,
外围建造围墙和栅栏是不可取的。
建筑师设置了两条漂浮的墙带
(住宅外围一条,工作室外围条),
墙带让绿色保持连贯,同时界定空间。


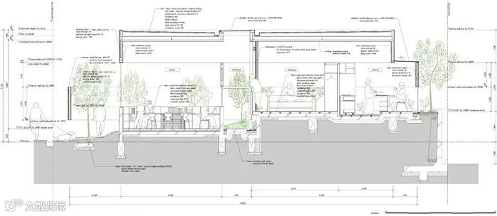
工作室的地面和住宅的地面有1.2米的高差,
两个面之间通过一个斜坡相联系。
住宅里面设置必要的功能盒子,
并通过衣柜这样的家具划定空间。
整个区域就像是一个临街自由阳台。
边界模糊的开放性建筑,
实现了城市中没有围墙和围栏的建筑,
与景观产生了新联系。









图文来源于网络

欢迎关注
欢迎转载
欢迎点赞

